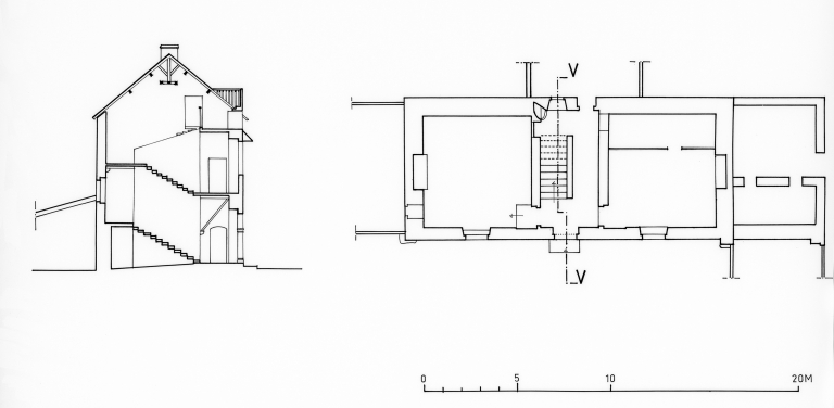
Manoir, le Penquer (Saint-Nicolas-du-Pélem),
Plan au sol - coupeImmatriculation
IVR53_19832200028P
Auteur de l'illustration
Copyright
Diffusion
reproduction soumise à autorisation du titulaire des droits d'exploitation
Type
phototype argentique
Besoin d'informations sur cette illustration ?
Nous contacter
Informations techniques
-
Technique de relevé
- relevé manuel