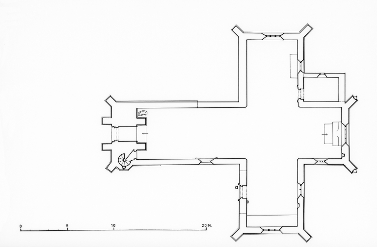
Chapelle Saint Eloi (Saint-Nicolas-du-Pélem),
Plan de localisation des entraits, sablière, blochets et abouts de poinçons sculptésImmatriculation
IVR53_19832200025P
Auteur de l'illustration
Copyright
Diffusion
reproduction soumise à autorisation du titulaire des droits d'exploitation
Type
phototype argentique
Besoin d'informations sur cette illustration ?
Nous contacter
Informations techniques
-
Technique de relevé
- relevé manuel