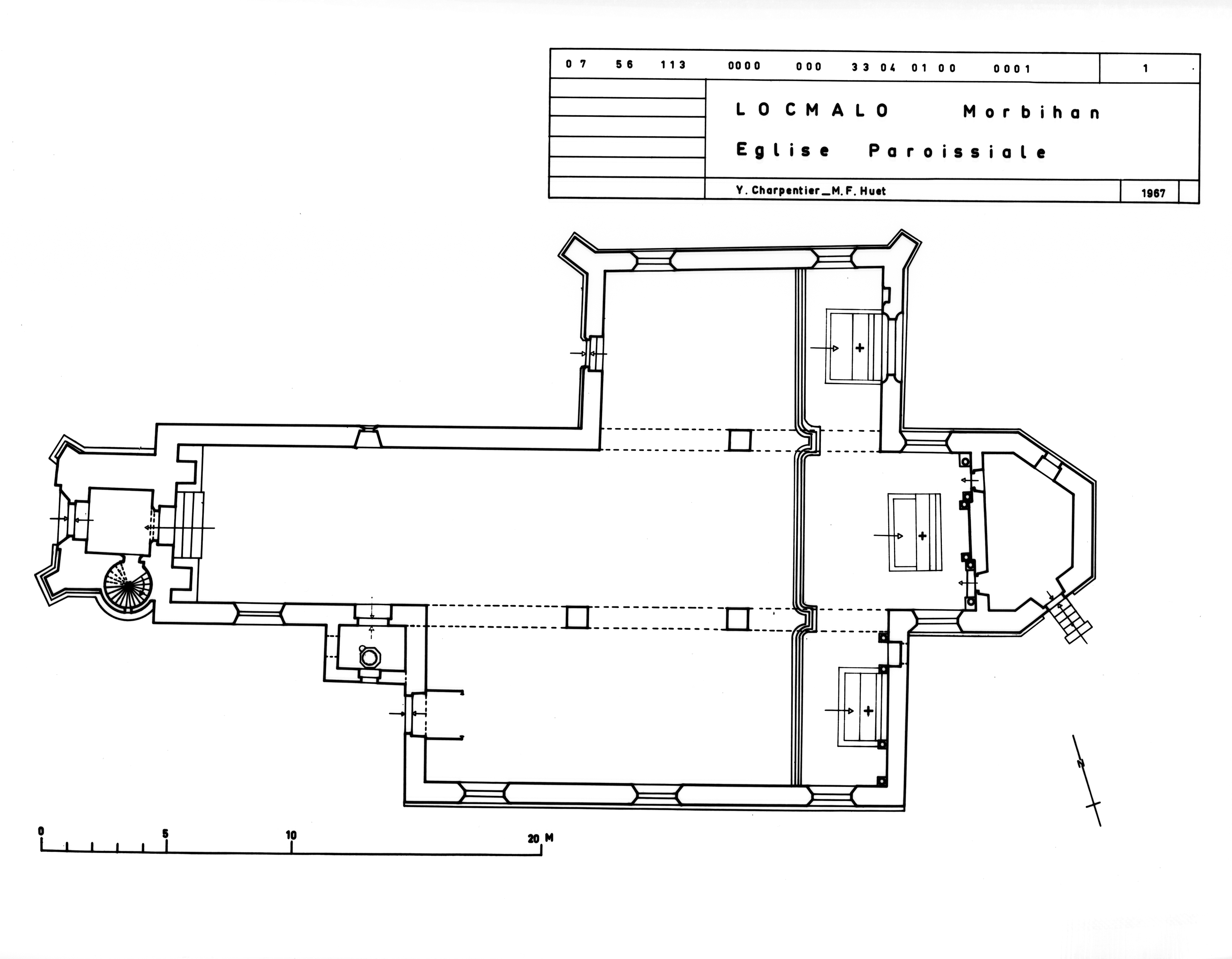
Eglise paroissiale Saint-Malo (Locmalo),
Plan au solImmatriculation
IVR53_19785600006P
Auteur de l'illustration
-
Dagorn François (reproduction)Dagorn François (reproduction)Cliquez pour effectuer une recherche sur cette personne.
Copyright
Diffusion
reproduction soumise à autorisation du titulaire des droits d'exploitation
Type
phototype argentique
Besoin d'informations sur cette illustration ?
Nous contacter
Informations techniques
-
Technique de relevé
- relevé manuel
dessinateur