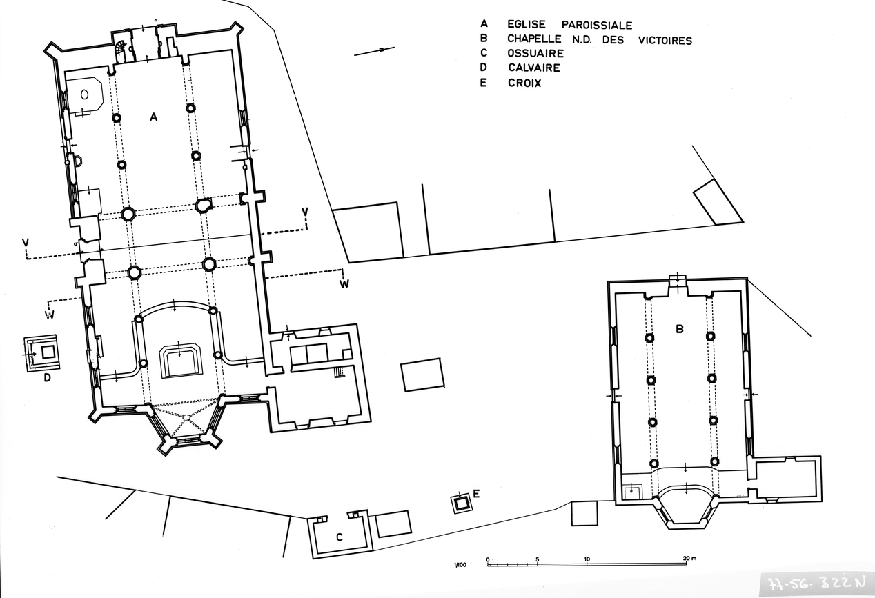
Eglise Saint-Pierre-Saint-Paul, Chapelle Notre-Dame-des-Victoires et ossuaire, place de l'église (Gourin),
Plan au solImmatriculation
IVR53_19775600322N
Auteur de l'illustration
Auteur de l'illustration
(reproduction)
Copyright
Diffusion
reproduction soumise à autorisation du titulaire des droits d'exploitation
Type
phototype argentique
Besoin d'informations sur cette illustration ?
Nous contacter
Informations techniques
-
Technique de relevé
- relevé manuel