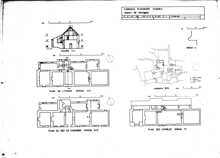
Manoir, Kerniguez (Carhaix-Plouguer),
PlansImmatriculation
IVR53_19672900030V
Auteur de l'illustration
Copyright
Diffusion
reproduction soumise à autorisation du titulaire des droits d'exploitation
Type
phototype argentique
Besoin d'informations sur cette illustration ?
Nous contacter
Informations techniques
-
Technique de relevé
- relevé manuel