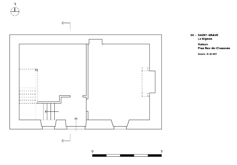
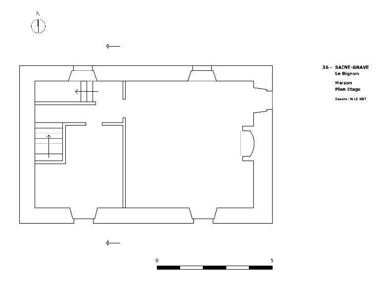
La maison du Bignon construite au tout début du 18e siècle, appartient à un modèle peu représenté sur le territoire dont la structure s’apparente à celle des maisons de retenue du pays de Rennes : dotée d’un étage, elle possède deux logements, l’un au rez-de-chaussée pour le fermier, le second à l’étage, plus confortable (lambris, lave-mains), pour le propriétaire. L’escalier qui occupe une place importante dans l’angle sud-ouest du logis contribue à mettre en valeur le logement lambrissé de l’étage. Il serait intéressant de connaître le propriétaire lors de la construction : un bourgeois de Redon ?
- inventaire topographique, communes riveraines du canal (Nantes à Brest)
Dossier non géolocalisé
-
Aire d'étude et canton
Communes riveraines du canal de Nantes à Brest - Rochefort-en-Terre
-
Commune
Saint-Gravé
-
Lieu-dit
Bignon (le)
-
Cadastre
2010
ZE
129, 130
;
1840
B3
51, 52, 49, 50
-
Dénominationsmaison
-
Parties constituantes non étudiéespuits
Au village du Bignon demeurait en 1427, Jehan Haudier, homme d'armes du duc pris au siège de Bouvron, exempté du fouage par le duc. Est-ce à cette exemption ancienne qu'est due le caractère inhabituel de cette construction ?
Construit au début du 18e siècle (peut-être vers 1710, date gravée sur le cadran solaire au-dessus de la porte), la ferme du Bignon est restée relativement intacte depuis cette époque, y compris dans son aménagement intérieur. Seule la partie basse à droite a subi des remaniements aux 19e et 20e siècles qui empêchent de comprendre comment à l’origine fonctionnaient les deux parties entre elles. On note cependant une reprise dans la façade à droite de la travée est des fenêtres. Le cadran solaire fixé au-dessus de la porte d'entrée porte la date : 1710 et l'inscription partiellement lisible: A MARIE(?) B(?)ALAVENNE.
-
Période(s)
- Principale : 1er quart 18e siècle
-
Dates
- 1710, porte la date
La maison est construite en un appareil mixte de schiste, granite et grès relativement inhabituel à Saint-Gravé au sous-sol plutôt de granite. Orientée au sud, de plan massé, elle possède un étage carré avec une élévation à deux travées. Si au rez-de-chaussée les deux niveaux sont éclairés, sur la façade nord, seul l’étage est percé de deux fenêtres, confirmant le statut différent de l'occupant de cet étage, dont la pièce principale était lambrissée, lambris dont il ne reste que des vestiges. Par une porte en arc surbaissé, on accède à un vaste escalier en équerre qui occupe l’angle sud-ouest du bâtiment, éclairé par une grande fenêtre au rez-de-chaussée. A l’étage, un second escalier en équerre mais beaucoup plus petit, démarre du palier contre le mur nord pour desservir le grenier.
Chacun des niveaux est occupé par deux pièces :
Occupant la partie est, deux salles superposées sont chauffées chacune par sa cheminée, engagée à linteau de granite au rez-de-chaussée, adossée à l'étage à linteau et piédroits de granite lambrissés contre le mur pignon est. Dans la salle du rez-de-chaussée, au sol de terre battue, une armoire murale est creusée dans le mur nord. Un porte-fusil est fixé sur le manteau de la cheminée.
A l’étage, une ouverture en pignon est pouvait être soit un lave-mains surmonté d’un jour, soit une communication avec la partie voisine sans étage.
La seconde pièce n’est pas chauffée : au rez-de-chaussée, il s’agit d’un cellier occupant l’angle nord-ouest éclairé d’un jour percé dans le mur nord. A l’étage, une petite pièce est établie au-dessus de la première volée de l’escalier : son usage reste inexpliqué.
Un puits en moellon de granite, couvert de dalles de schiste est à demi-encastré dans le mur d’enclos.
-
Murs
- granite
- schiste
- grès appareil mixte
- moellon sans chaîne en pierre de taille
-
Toitsardoise
-
Étages1 étage carré
-
Élévations extérieuresélévation à travées
-
Couvertures
- toit à longs pans
- pignon couvert
-
Escaliers
- escalier dans-oeuvre : escalier en équerre en charpente
-
Typologieslogis à deux pièces par niveau ; lave-mains ; armoire murale ; puits couvert en dalles
-
Statut de la propriétépropriété privée
- (c) Conseil général du Morbihan
- (c) Région Bretagne
- (c) Région Bretagne
- (c) Région Bretagne
- (c) Région Bretagne
- (c) Région Bretagne
- (c) Région Bretagne
- (c) Région Bretagne
- (c) Région Bretagne
- (c) Région Bretagne
- (c) Région Bretagne
- (c) Région Bretagne
- (c) Région Bretagne
- (c) Région Bretagne
- (c) Région Bretagne
- (c) Région Bretagne
- (c) Région Bretagne
- (c) Région Bretagne
- (c) Région Bretagne
- (c) Région Bretagne
- (c) Région Bretagne
- (c) Région Bretagne
- (c) Région Bretagne
- (c) Région Bretagne
- (c) Région Bretagne
Documents d'archives
-
Archives départementales du Morbihan : 3P 260
AD Morbihan. Série P. 3P 260. Plan cadastral 1840. Tableau d'assemblage et feuilles par sections.