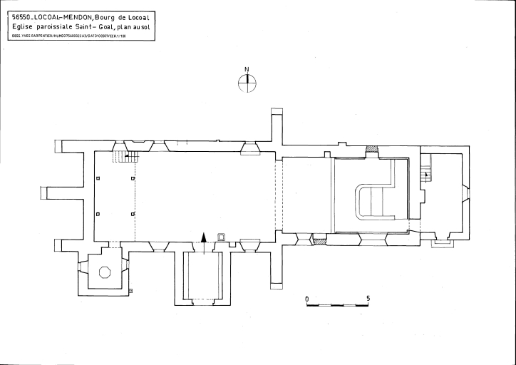
L'ancienne église paroissiale de Locoal est construite à l'endroit présumé de l'hermitage de saint Goal. L'emplacement de sa tombe est signalée par une pierre gravée située devant le choeur. Le monastère du saint détruit puis restauré par les Normands fut ensuite cédé en 1037 à l'abbaye Saint-Sauveur de Redon. Les Bénédictins de Redons en firent un prieuré et un fief, future paroisse de Locoal. De la première chapelle prieurale construite au 11e ou 12e siècle par les moines bénédictins, il subsiste quelques vestiges : sur le mur ouest une petite fenêtre cintrée ; un contrefort vertical placé contre le mur nord, au niveau du choeur ; les anciennes arcades en cintre brisé visibles sur les murs nord et sud. Elles reposent sur des piles carrées à simple tailloir au sud, tandis qu'au nord, les piles et les tailloirs moulurés ont probablement été repris en sous-oeuvre en 1614, lors de la restauration de l'édifice. En effet, au moment des guerres de la Ligue, l'église et le couvent qui la flanquait au nord furent incendiés en 1572 par les Espagnols cantonnés au Port-Louis. En 1614, l'église est restaurée par les soins de Jean Bouchard, prieur commandataire de Locoal qui la prolonge vers l'est en pierre de taille. C'est de cette période que semble dater l'arc diaphragme en plein cintre qui ouvre sur le nouveau choeur. Un ossuaire est édifié au sud à peu près à la même époque. L'église comportait également, au sud, à hauteur du choeur, une chapelle de Saint-Jean-Baptiste qui fut démolie en 1657. A la suite d'un second incendie en 1765, les bas-côtés sont supprimés et les arcades de la nef bouchées. Des fenêtres en arc segmentaire sont ménagées à l'intérieur de ces anciennes arcades. A l'intérieur, devant le choeur, le mausolée, élevé en 1666 sur le tombeau de saint Goal, est détruit également car il gêne le déroulement des cérémonies. Le porche sud date peut-être du 18e siècle, sa façade est démontée en 1908 et son arcade surélevée. La sacristie jadis appuyée contre le mur nord, est transportée en 1858 contre le chevet. D'autres restaurations ont lieu : au début du 19e siècle, le choeur est lambrissé ; en 1910, l'intérieur des fenêtres est régularisé avec une base en forme d'autel pour recevoir des statues. C'est à cette époque que l'ancien ossuaire est converti en chapelle des fonts baptismaux. La reconstruction envisagée en 1931 n'a pas abouti.
- inventaire topographique
Dossier non géolocalisé
-
Aire d'étude et canton
Ria d'Etel - Belz
-
Commune
Locoal-Mendon
-
Lieu-dit
Locoal
-
Cadastre
YX 15, 59 ;
1810
M2
248
;
1845
N2 419, 420
-
Dénominationséglise paroissiale
-
VocablesSaint-Goal
-
Parties constituantes non étudiéescimetière, enclos, tombeau, fontaine de dévotion, croix monumentale
-
Période(s)
- Principale : limite 11e siècle 12e siècle
- Principale : 1er quart 17e siècle
- Principale : 2e moitié 18e siècle
- Principale : 1er quart 19e siècle
- Principale : 3e quart 19e siècle
- Principale : 1er quart 20e siècle
La chapelle de plan rectangulaire à chevet plat comprend deux parties bien distinctes : à l'ouest, la nef dont on a bouché les arcades ; à l'est, un vaste choeur plus étroit. Le mur sud du choeur est édifié en pierre de taille tandis que les autres murs sont recouverts d'un enduit. D'épais contreforts en talus soutiennent tous les murs à l'exception du chevet contre lequel est adossée la sacristie axiale à étage, couverte en croupe. Le mur sud est flanqué d'un ossuaire en appentis et d'un porche en pierre de taille ouvert en plein cintre. Un clocher de charpente, fait d'une base en tronc de pyramide et d'une flèche polygonale, est placé un peu en retrait du pignon ouest. Les anciennes arcades des collatéraux disparus (deux au sud, quatre au nord) apparaissent dans les murs, en forme d'arc brisé reposant sur des piles carrées à simple tailloir, au sud, à tailloirs moulurés au nord. A l'intérieur de ces arcs ont été ménagées des fenêtres à linteau segmentaire. Dans l'édifice, on trouve la même division en deux parties bien distinctes. L'arc diaphragme en plein cintre qui repose sur des piles engagées à tailloir sépare ces deux parties et ouvre sur un choeur très profond.
-
Murs
- granite
- enduit
- pierre de taille
- moellon
-
Toitsardoise
-
Plansplan allongé
-
Étages1 vaisseau
-
Couvertures
- toit à longs pans
- appentis
- flèche polygonale
- pignon découvert
- croupe
-
Typologiessacristie à étage
-
Techniques
- sculpture
-
Représentations
- saint Gildas
-
Précision représentations
La niche située sur la façade du porche sud abrite une statuette de saint Gildas.
-
Mesures
- h : 64
- la : 44
- pr : 15
-
Statut de la propriétépropriété de la commune
-
Intérêt de l'œuvreà signaler
L'église de Locoal a conservé son cimetière et son enclos. L'ensemble forme avec l'ancien presbytère le coeur historique du village.
- (c) Région Bretagne
- (c) Inventaire général, ADAGP
- (c) Inventaire général, ADAGP
- (c) Inventaire général, ADAGP
- (c) Inventaire général, ADAGP
- (c) Inventaire général, ADAGP
- (c) Inventaire général, ADAGP
- (c) Région Bretagne
- (c) Région Bretagne
- (c) Région Bretagne
- (c) Région Bretagne
- (c) Région Bretagne
- (c) Région Bretagne
- (c) Inventaire général, ADAGP
- (c) Inventaire général, ADAGP
- (c) Inventaire général, ADAGP
- (c) Inventaire général, ADAGP
- (c) Inventaire général, ADAGP
- (c) Inventaire général, ADAGP
- (c) Inventaire général, ADAGP
Documents d'archives
-
Archives départementales du Morbihan. Cadastre ancien, série 3P.
Bibliographie
-
LE TALLEC, Frédéric. HENRIO, Mériadec. Locoal-Mendon, "L'île du bonheur". Imprimerie de la Rivière, Belz, 1994.
p. 7, 8 -
DANIGO, Joseph. Eglises et chapelles du doyenné de Belz. Imprimerie Régionale 29114 Bannalec, 1986.
p. 61-65 -
LE MENE, Joseph-Marie. Histoire archéologique, féodale et religieuse des paroisses du diocèse de Vannes. Vannes : Imprimerie Galles, 1894, t. II.
p. 472 -
DUHEM, Gustave. Les églises de France, Morbihan. Paris, 1932.
p. 94
dessinateur