Maison construite vers 1650 par Noël Caro et sa femme sur un emplacement acquis par eux auprès de Jean Le Meilleur, sieur de Kerhervé, "premier acquereur du dit fond par acensement avec le passage pour aller à l'eau de lestier du moulin" d'après les sources. Les ouvertures à l'étage sur rue ont été en partie modifiées au 18e siècle. La maison a été transformée intérieurement en 2000 : l'escalier a été remplacé, les cheminées masquées. Elle possédait une aile en retour côté nord sur la façade postérieure, dont la première partie a été reconstruite vers 1900. La maison en prolongement de cette aile, cadastrée en 1844 parcelle 1816, date également du 17e siècle. Son toit, probablement un appentis, a été brisé au 19e siècle pour créer un étage de comble. Elle a été augmentée au 19e siècle d'un corps à l'ouest placée entre cette maison et l'aile en retour reconstruite au 20e siècle. Côté sud existait une autre maison, cadastrée en 1844 p. 1817, dont ne subsiste qu'une cheminée adossée au mur sud, près du rempart. Cette construction du 17e siècle fut par la suite reliée au corps principal sur rue par une série d'habitations secondaires aujourd'hui ruinées. A étage avec cheminées, elles étaient couvertes en appentis. L'étage était desservi par un escalier extérieur droit figurant sur le plan de 1844, qui subsiste. En 1840, un des propriétaires indivis de la maison donnant sur la rue (monsieur Gaucher) fait une demande à la ville de création de devanture de boutique en menuiserie ; laquelle est accordée l'année suivante : cette devanture n'a pas subsisté.
- inventaire topographique, ville de Vannes (secteur sauvegardé)
-
Toscer CatherineToscer CatherineCliquez pour effectuer une recherche sur cette personne.
Dossier non géolocalisé
-
Aire d'étude et canton
Vannes
-
Commune
Vannes
-
Adresse
12 rue Saint-Vincent
-
Cadastre
1844
K8 1815, 1816, 1817 ;
1980
BS
115
-
Dénominationsmaison
-
Parties constituantes non étudiéesboutique
-
Période(s)
- Principale : milieu 17e siècle
- Secondaire : 1er quart 20e siècle
- Secondaire : 4e quart 20e siècle
-
Auteur(s)
- Personnalité : commanditaire attribution par source
- Personnalité : propriétaire attribution par source
- Personnalité : propriétaire attribution par source
-
Personnalité :
Tanguy Jean-Pierrepropriétaire attribution par sourceTanguy Jean-PierreCliquez pour effectuer une recherche sur cette personne.
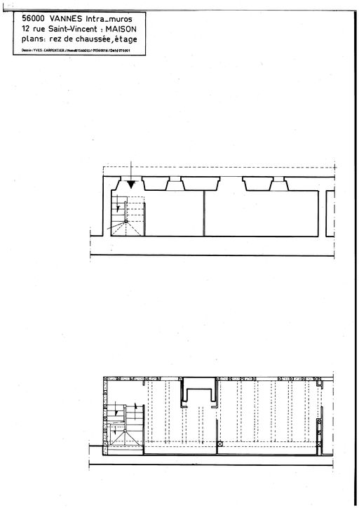
Maison principale sur rue avec soubassement en granite, enduit aux étages. Elle possède deux étages carrés et un étage de comble. Un couloir latéral dessert l'escalier qui occupe l'angle nord-est du bâtiment et est éclairé par une série de jours irréguliers ouverts dans la façade postérieure. L'escalier d'origine était à retours avec jour avec balustres moulurés et desservait également l'aile sur cour. L'habitation sur la cour, en pan de bois avec encorbellement, possède un étage carré et un étage de comble. L'étage est desservi par un escalier droit en bois occupant l'extrémité est du bâtiment dans une cage en pan de bois. Le conduit de la cheminée de l'étage, sur le gouttereau sud, interrompt l'encorbellement du pan de bois en façade.
-
Murs
- granite moellon enduit
- pan de bois
-
Toitsardoise
-
Étages2 étages carrés, étage de comble, 1 étage carré, comble à surcroît
-
Élévations extérieuresélévation à travées
-
Couvertures
- toit à longs pans
- appentis massé brisé
- croupe
- noue
-
Escaliers
- escalier dans-oeuvre : escalier droit en charpente
-
Typologiesen alignement sur rue ; parcelle laniérée ; jardin postérieur
-
Statut de la propriétépropriété privée
-
Sites de protectionsecteur sauvegardé
Cette maison est établie sur une parcelle laniérée au contraire des hôtels du côté ouest de la rue Saint-Vincent. Elle est cependant dotée, comme beaucoup de maisons de la rue d'un corps sur cour qui agrandit sa surface habitable. Celui qui subsiste offre l'intérêt de n'avoir subi aucun remaniement autre qu'une surélévation au 19e siècle, époque où il devint un logement secondaire.
- (c) Inventaire général, ADAGP
- (c) Inventaire général, ADAGP
- (c) Archives départementales du Morbihan
- (c) Inventaire général, ADAGP
- (c) Archives départementales du Morbihan
- (c) Inventaire général, ADAGP
- (c) Inventaire général, ADAGP
- (c) Inventaire général, ADAGP
- (c) Inventaire général, ADAGP
- (c) Inventaire général, ADAGP
- (c) Inventaire général, ADAGP
- (c) Inventaire général, ADAGP
- (c) Inventaire général, ADAGP
- (c) Inventaire général, ADAGP
- (c) Inventaire général, ADAGP
- (c) Inventaire général, ADAGP
- (c) Inventaire général, ADAGP
- (c) Inventaire général, ADAGP
- (c) Inventaire général, ADAGP
- (c) Inventaire général, ADAGP
- (c) Inventaire général, ADAGP
- (c) Inventaire général, ADAGP
- (c) Inventaire général, ADAGP
Documents d'archives
-
Archives départementales de Loire-Atlantique : B 2340
A. D. Loire-Atlantique. B 2340 : Déclaration et dénombrement du 6 mars 1677, de Jacques Gillot Sr de Treoguer et Marie Caro sa femme, d´une maison.
-
Archives municipales de Vannes : 1 O 216
A. M. Vannes. 1 O 216, 1840-1847 voirie alignements rue Saint-Vincent.
dessinateur