• inventaire topographique, Pluméliau
Ferme, Cosquer Keraudren (Pluméliau fusionnée en Pluméliau-Bieuzy en 2019)
Œuvre étudiée

Dossier non géolocalisé

Localisation
  • Aire d'étude et canton Baud - Baud
  • Commune Pluméliau-Bieuzy
  • Lieu-dit Pluméliau, Cosquer Keraudren
  • Cadastre 1988 YI 33
  • Précisions commune fusionnée après inventaire Commune inventoriée sous le nom de Pluméliau
  • Dénominations
    ferme
  • Parties constituantes non étudiées
    étable, puits, cellier

Ferme construite en 1666, date portée. Les fenêtres, la souche de cheminée et la toiture ont été refaites au 19e siècle. Elle est allongée d'un nouveau logis dans la 1ère moitié du 19e siècle. Le cellier isolé est daté 1796.

  • Période(s)
    • Principale : 3e quart 17e siècle
    • Principale : 1ère moitié 19e siècle
    • Secondaire : 4e quart 18e siècle
  • Dates
    • 1666, porte la date
    • 1796, porte la date

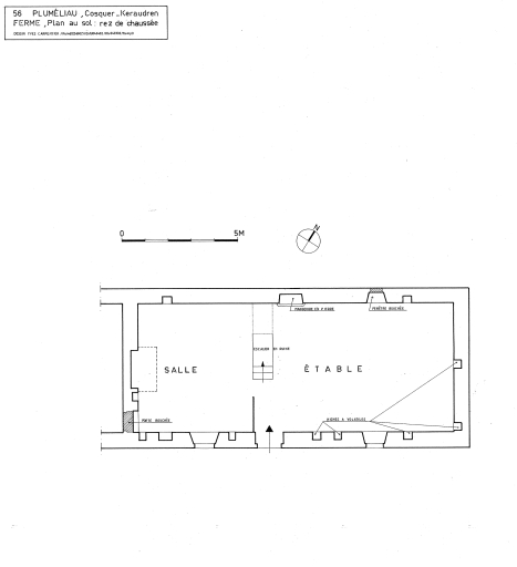
Ferme en moellon de schiste couverte en ardoise avec corniche en bois à denticules. Elle appartient au type logis étable à porte unique. L'étable est séparée de la salle par un escalier perpendiculaire au mur postérieur avec marches de départ en granite. Le mur sud de l'étable est creusé de niches à poules ; dans l'angle du mur postérieur et de l'escalier est inséré une mangeoire pour les chevaux. Le logis plus récent en alignement est également en moellon de schiste. A élévation à travées, il est à pièce unique surmonté d'un grenier simulant un étage. Le cellier isolé est ouvert d'une porte en granite à linteau de bois. Soue à cochons.

  • Murs
    • schiste
    • moellon
  • Toits
    ardoise
  • Étages
    comble à surcroît
  • Élévations extérieures
    élévation à travées
  • Couvertures
    • toit à longs pans
    • pignon couvert
  • Typologies
    logis-étable
  • Techniques
    • sculpture
  • Représentations
    • denticule
  • Précision représentations

    Corniche en bois à denticules placée devant les deux logis.

  • Statut de la propriété
    propriété privée

Malgré les remaniements du toit et de certaines fenêtres, cette ferme a conservé intacte sa structure : escalier, mangeoire, niches à poules. Elle appartient à une série d'une dizaine de fermes du milieu du 17e siècle conservées à Pluméliau..

Date(s) d'enquête : 2002; Date(s) de rédaction : 2005