• inventaire topographique, Pluméliau
Ferme 1, Kergouhier (Pluméliau fusionnée en Pluméliau-Bieuzy en 2019)
Œuvre étudiée

Dossier non géolocalisé

Localisation
  • Aire d'étude et canton Baud - Baud
  • Commune Pluméliau-Bieuzy
  • Lieu-dit Pluméliau, Kergouhier
  • Cadastre 1829 L1 186, 187, 188, 189 ; 1988 YB 111
  • Précisions commune fusionnée après inventaire Commune inventoriée sous le nom de Pluméliau
  • Dénominations
    ferme
  • Parties constituantes non étudiées
    étable, remise

Extrait de : Vallée du Blavet. Le canton de Baud. Bretagne. Inventaire Général. Collection Images du Patrimoine. Rennes. 2003.

"Pluméliau. Kergouhier, aménagement intérieur

Dans cette ferme de la fin du XVIe siècle, la séparation entre la porte d´entrée et la pièce commune est matérialisée par une demi-cloison formant armoire murale : une série de dalles monolithes servant d´étagères sont encastrées dans le mur de façade et soutenues à leur extrémité par une pierre posée de chant. Cet aménagement de qualité séparant les humains du bétail a précédé au XIXe siècle une partition identique, cette fois assurée par une armoire ou un buffet à vaisselier. Si seulement deux exemples ont été retrouvés aujourd´hui à Pluméliau, il est probable que cette structure a été fréquente dans les périodes les plus anciennes".

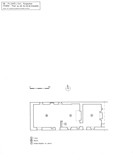
Le premier logis de la ferme date probablement de la deuxième moitié du 16e siècle. Elle est allongée d'un logis avec écurie au milieu du 19e siècle, puis d'un logis à la fin 19e siècle. Le premier logis a vu la fenêtre de son étable agrandie et sa couverture remplacée vers 1960. Remise isolée à l'ouest datée 1772, remaniée en 1893, date portée. Le four à pain visible sur le plan de 1829 au sud du logis a disparu.

  • Période(s)
    • Principale : 2e moitié 16e siècle
    • Principale : milieu 19e siècle
    • Principale : 4e quart 19e siècle
    • Secondaire : 2e moitié 20e siècle
  • Dates
    • 1772, porte la date
    • 1893, porte la date

Premier logis en moellon de schiste, ouvertures en pierre de taille de schiste, de type logis étable à une porte, prolongé par une écurie vers l'est. La salle est isolée de la partie étable par une demi-cloison formée d' étagères en dalles de schiste dans sa partie haute. Second logis en moellon de schiste enduit, ouvertures en granite. Troisième logis à pièce unique et comble à surcroît en moellon de granite, ouvertures en granite, couverture en ardoise.

  • Murs
    • schiste
    • enduit
    • moellon
  • Toits
    ciment en couverture, ardoise
  • Étages
    comble à surcroît
  • Couvertures
    • toit à longs pans
  • Typologies
    logis-étable. Armoire murale. Logis à pièce unique
  • Statut de la propriété
    propriété privée

Une des fermes les plus anciennes de la commune (avec la Ferrière, 1585). Ferme à long développement horizontal. Le contraste entre la taille de l'étable et celle du logis montre une ferme riche, abritant un cheptel conséquent. Voir également la ferme de Talendias.

Bibliographie

  • Vallée du Blavet. Le canton de Baud. Bretagne. Inventaire Général. Collection Images du Patrimoine. Rennes. 2003.

    p. 77

Annexes

  • Annexe n°1
Date(s) d'enquête : 2001; Date(s) de rédaction : 2004