Les origines de la chapelle remontent au 15e siècle. De cette époque, seules les portes sud et ouest ont subsisté. L'édifice est rallongé à l'est à la fin du 18e siècle en remployant la baie axiale du chevet datant du 16e siècle. Le clocher semble dater du 18e siècle. La fontaine porte la date de 1642.
Dossier d’œuvre architecture IA56000357
| Réalisé par
Tanguy-Schröer Judith
;
Tanguy-Schröer Judith
Cliquez pour effectuer une recherche sur cette personne.
Toscer Catherine
Toscer Catherine
Cliquez pour effectuer une recherche sur cette personne.
- inventaire topographique, Melrand
Chapelle, Sainte-Prisce (Melrand)
Œuvre étudiée
Auteur
-
Tanguy-Schröer JudithTanguy-Schröer JudithCliquez pour effectuer une recherche sur cette personne.
-
Toscer CatherineToscer CatherineCliquez pour effectuer une recherche sur cette personne.
Dossier non géolocalisé
Localisation
-
Aire d'étude et canton
Baud - Baud
-
Commune
Melrand
-
Lieu-dit
Sainte-Prisce
-
Cadastre
1976
YC
1
-
Dénominationschapelle
-
VocablesSainte-Prisce
-
Parties constituantes non étudiéesfontaine de dévotion
-
Période(s)
- Principale : 15e siècle
- Principale : 16e siècle
- Principale : 18e siècle
- Secondaire : 2e quart 17e siècle
-
Dates
- 1642, porte la date
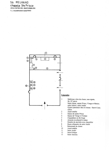
Chapelle à nef unique et chevet plat. La base du mur intérieur nord est en pierre de taille.
-
Toitsardoise
-
Étages1 vaisseau
-
Couvertures
- toit à longs pans
- pignon découvert
-
Mesures
- h : 220
- la : 350
- pr : 125
-
Statut de la propriétépropriété publique
-
Intérêt de l'œuvreà signaler
La chapelle et sa fontaine sont implantées dans un site natuel très préservé.
- (c) Inventaire général, ADAGP
- (c) Inventaire général, ADAGP
- (c) Inventaire général, ADAGP
- (c) Inventaire général, ADAGP
- (c) Inventaire général, ADAGP
- (c) Inventaire général, ADAGP
Bibliographie
-
DANIGO, Joseph. Eglises et chapelles du pays de Baud. Lorient, imprimerie Presse du Morbihan, 1974.
p. 65 -
DUHEM, Gustave. Les églises de France, Morbihan. Paris, 1932.
p. 103
Date(s) d'enquête :
2000;
Date(s) de rédaction :
2000
Tanguy-Schröer Judith
Tanguy-Schröer Judith
Cliquez pour effectuer une recherche sur cette personne.
Toscer Catherine
Toscer Catherine
Cliquez pour effectuer une recherche sur cette personne.
Dossiers de synthèse
Articulation des dossiers
dessinateur