L'église paroissiale dédiée à Saint-Pierre est un édifice complexe maintes fois remanié au cours des siècles. Elle conserve, côté sud, une partie de la nef de la première moitié du 15e siècle, percée d'une fenêtre en arc brisé ainsi que deux portes moulurées sur colonnettes à chapiteau. Le porche méridional et l'arcade intérieure de la chapelle nord, située à l'entrée du choeur, sont également une survivance de l'époque médiévale, probablement de la première moitié du 16e siècle. La date 1661 inscrite sur le porche correspond à un remaniement tardif. Le procès verbal de 1690 nous apprend que les seigneurs de Kerveno étaient prééminenciers et fondateurs de cet édifice et que leurs armes étaient placées en supériorité dans le réseau de l'ancienne maîtresse-vitre et sur la lanterne au haut du maître-autel. Les blasons d'autres familles étaient aposés sur cette verrière, en dessous, suivant l'ordre des prééminences. Ce procès verbal signale également le projet d'agrandissement de l'église après autorisation de René Kermeno-Du Garo, devenu seigneur prééminencier suite au rachat du marquisat de Kerveno en 1667. Ces travaux visent à substituer au chevet plat initial un choeur plus profond avec le chevet à trois pans que nous lui connaissons aujourd'hui. Il y est également question d'agrandir l'église en y adjoingnant, au sud, la chapelle du Rosaire et la sacristie. Une troisième campagne de travaux est entreprise au cours du 18e siècle. Les entrepreneurs Yves Hémono et Jacques Le Guerroin dirigent les travaux de reconstruction du clocher en 1733, date portée accompagnée de l'inscription : "PRINCIPIUM VIDIT, FINEM VIDET UNICUS ANNUS DISCITE, MELRANDI QUOD POTUERE PATRES" (L'ANNEE MEME QUI EN VIT LE COMMENCEMENT, EN VOIT AUSSI LA FIN APPRENEZ, MELRANDAIS, DE QUOI FURENT CAPABLES VOS PERES). La chapelle des fonts, au nord-ouest, est construite en 1774 (date portée sur l'arcade bouchée à l'intérieur de la nef), jumelée avec une seconde chapelle tandis qu' une troisième chapelle est édifiée au sud-ouest. Les nouvelles baies de la nef semblent également dater de cette époque. La croix de mission adossée au mur sud de l'église paroissiale est inaugurée en 1911.
- inventaire topographique, Melrand
Dossier non géolocalisé
-
Aire d'étude et canton
Baud - Baud
-
Commune
Melrand
-
Lieu-dit
Bourg
-
Adresse
place de l' Eglise
-
Cadastre
1828
G2
979
;
1976
AB
85
-
Dénominationséglise paroissiale
-
VocablesSaint-Pierre
-
Parties constituantes non étudiéesmonument aux morts, croix de cimetière
-
Période(s)
- Principale : 1ère moitié 15e siècle
- Principale : 1ère moitié 16e siècle
- Principale : 4e quart 17e siècle
- Principale : 2e quart 18e siècle
- Principale : 3e quart 18e siècle
- Secondaire : 3e quart 17e siècle
- Secondaire : 1er quart 20e siècle
-
Dates
- 1661, porte la date
- 1690, daté par source
- 1733, porte la date, daté par travaux historiques
- 1774, porte la date
- 1911, daté par source
-
Auteur(s)
- Auteur : entrepreneur attribution par travaux historiques
-
Auteur :
Le Guerroin Jacquesentrepreneur attribution par travaux historiquesLe Guerroin JacquesCliquez pour effectuer une recherche sur cette personne.
-
Personnalité :
Kermeno Du Garo (de), marquis de Kerveno Renécommanditaire attribution par sourceKermeno Du Garo (de), marquis de Kerveno RenéCliquez pour effectuer une recherche sur cette personne.
- Auteur : entrepreneur attribution par travaux historiques
-
Auteur :
Le Guerroin Jacquesentrepreneur attribution par travaux historiquesLe Guerroin JacquesCliquez pour effectuer une recherche sur cette personne.
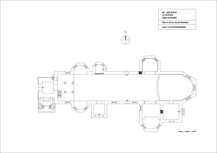
L'église paroissiale de Melrand rompt avec la tradition du transept. Cinq chapelles à pans, deux au sud et trois au nord sont venues se greffées sur la longue nef. Le chevet à pans est flanqué d'une sacristie sur le mur sud. Le porche méridional est conservé. Le clocher possède une tour carrée massive à tambour octogonal et flèche polygonale en maçonnerie.
-
Murs
- granite
- enduit partiel
- pierre de taille
-
Toitsardoise
-
Plansplan en croix latine
-
Étages1 vaisseau
-
Couvrements
- lambris de couvrement
-
Couvertures
- flèche en maçonnerie
- toit à longs pans
- pignon découvert
- croupe polygonale
- noue
-
Typologiescolonne coudée
-
Techniques
- sculpture
-
Représentations
- pilastre
- fronton
- balustre
- saint Pierre
- clé
-
Précision représentations
La tour du clocher possède un porche en plein cintre orné de pilastres et d'un fronton curviligne. Une niche abrite la statue de saint Pierre. L'ensemble est couronné d'une balustrade. Sur le chevet, un blason bûché est surmonté d'une clef, attribut de saint Pierre, patron de l'église paroissiale.
-
Statut de la propriétépropriété publique
-
Intérêt de l'œuvreà signaler
- (c) Inventaire général, ADAGP
- (c) Inventaire général, ADAGP
- (c) Inventaire général, ADAGP
- (c) Inventaire général, ADAGP
- (c) Inventaire général, ADAGP
- (c) Inventaire général, ADAGP
- (c) Inventaire général, ADAGP
- (c) Inventaire général, ADAGP
- (c) Inventaire général, ADAGP
- (c) Inventaire général, ADAGP
- (c) Inventaire général, ADAGP
- (c) Inventaire général, ADAGP
- (c) Inventaire général, ADAGP
- (c) Inventaire général, ADAGP
- (c) Inventaire général, ADAGP
Documents d'archives
-
A. D. Morbihan. Série 3P. Cadastre ancien 1828, 3P 448.
p. -
A.D. Morbihan. Série B, papiers des cours et juridictions ordinaires, seigneuriales, laïques et ecclésiastiques, procès-verbal daté du 30 mai 1690, cote B 493. Il se compose de 10 folios recto verso manuscrits sur papier timbré. Il est accompagné des autorisations de modifier l'église délivrées par les familles des seigneurs fondateurs.
p.
Bibliographie
-
CONSTANTIN, Pierre-Laurent. Vitrail et prééminences nobles : reconstitution d'une verrière disparue à partir d'un procès-verbal de 1690. In : Regards sur le vitrail, Actes Sud, 2002. p. 183-188.
p. 183 -
DANIGO, Joseph. Eglises et chapelles du pays de Baud. Lorient, imprimerie Presse du Morbihan, 1974.
p. 55 -
DUHEM, Gustave. Les églises de France, Morbihan. Paris, 1932.
p. 101 -
DU HALGOUET, Hervé Considérations archéologiques sur les édifices religieux du diocèse de Vannes. Vannes, 1951.
p. -
LE MENE, Joseph-Marie. Histoire archéologique, féodale et religieuse des paroisses du diocèse de Vannes. Vannes : imprimerie Galles, 1891, t. I, reprint 1994.
p. 518 -
ROSENZWEIG, Louis. Répertoire archéologique du département du Morbihan. Paris, 1863.
p. -
LUCO, Abbé.Pouillé historique de l'ancien diocèse de Vannes. Bénéfices séculiers. Vannes : imprimerie Galles, 1884.
p. 378, 379
dessinateur