Bâtiment modeste en chêne lasuré rouge et couverture bac acier, bien intégré dans le site.
Dossier d’œuvre architecture IA35132688
| Réalisé par
;
- enquête thématique régionale, patrimoine des sports
Stade d'eaux vives, 2 rue de Paris (Cesson-Sévigné)
Œuvre étudiée
Auteur
Dossier non géolocalisé
Localisation
-
Aire d'étude et canton
Bretagne
-
Commune
Cesson-Sévigné
-
Adresse
2 rue de Paris
-
Dénominationsétablissement nautique
Cet équipement municipal unique dans le département, permettant une approche pédagogique et ludique du sport en eaux vives, fait l'objet d'un permis de construire le 2 mars 1999. Le chantier s'ouvre le 6 avril et s'achève le 1er juillet de la même année.
-
Période(s)
- Principale : limite 20e siècle 21e siècle , daté par source
-
Dates
- 1999, daté par source
-
Auteur(s)
- Auteur : maître d'oeuvre attribution par source
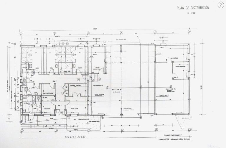
L'équipement, d'une surface de 337,52 m2, se résume à un bâtiment d'accueil comprenant réception, vestiaires, sanitaires dans la partie sud-ouest, et hangars à bateaux, salle de réunion et bureau au nord-est.
-
Murs
- béton essentage de planches
-
Toitsacier en couverture
-
Plansplan rectangulaire régulier
-
Statut de la propriétépropriété de la commune
- (c) Ville de Cesson-Sévigné
- (c) Ville de Cesson-Sévigné
- (c) Ville de Cesson-Sévigné
- (c) Ville de Cesson-Sévigné
- (c) Ville de Cesson-Sévigné
- (c) Région Bretagne
- (c) Région Bretagne
- (c) Région Bretagne
Date(s) d'enquête :
2017;
Date(s) de rédaction :
2018
Dossiers de synthèse
Maître d'œuvre, Orgères