Construction éco-responsable en bois conçue par Henri-Charles Nestor et Bâtir France Ingénierie.
- enquête thématique régionale, patrimoine des sports
Dossier non géolocalisé
-
Aire d'étude et canton
Bretagne
-
Commune
Cesson-Sévigné
-
Adresse
1 avenue des Préales
-
Dénominationsétablissement nautique
Le 30 septembre 2003, la ville de Cesson-Sévigné fait acte de candidature pour l'accueil d'un pôle destiné aux athlètes du Grand Ouest pour leur perfectionnement, les stages de haut niveau et la préparation olympique en vue des Jeux de 2012 et de 2016 - un des quatre en France avec Paris, Nancy et Toulouse. Le 19 avril 2004, elle est retenue par la Fédération française de canoë-kayak. Le programme, représentant un coût total de 1 936 000 € TTC (foncier, bâtiment et VRD), est financé par la commune (53 %), la région (14 %), le département (13 %), le Centre National pour le Développement du Sport (11 %), la FFCK (8 %), le ministère de la Santé, de la Jeunesse et des Sports (0,50%) et EDF (0,50 %). Le permis de construire est délivré le 12 juin 2007, le chantier s'ouvre le 17 juillet 2008 et s'achève le 8 juin 2009. Dès le mois de septembre, les athlètes pour la course en ligne, le slalom et la descente sont accueillis dans un bâtiment de 1 068 m2, propriété de la ville mais géré par convention par la FFCK, avec l’aide technique du Comité régional de canoë-kayak pour le Pôle Espoir.
-
Période(s)
- Principale : 1er quart 21e siècle , daté par source
-
Dates
- 2009, daté par source
-
Auteur(s)
-
Auteur :
Carlo Jean-Françoisarchitecte attribution par sourceCarlo Jean-FrançoisCliquez pour effectuer une recherche sur cette personne.
-
Auteur :
Nestor Henri-Charlesarchitecte attribution par sourceNestor Henri-CharlesCliquez pour effectuer une recherche sur cette personne.
Architecte DPLG, 23 boulevard Solférino, Rennes, puis avenue des Peupliers, Cesson-Sévigné
-
Auteur :
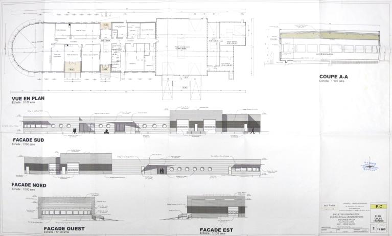
Disposé parallèlement au cours de la Vilaine, l'équipement abrite, de l'est vers l'ouest : hangars, atelier et local matériel ; vestiaires, sanitaires et buanderie-séchoir ; hall d'accueil ; bureau, salles de cours, de détente, des ergomètres et médicale ; enfin, une salle de musculation dans la grande rotonde. Le choix du bois (H.Q.E.) résulte d’une volonté d’utiliser un matériau noble et naturel qui permet de s’intégrer complètement dans le paysage tout en ayant des performances thermiques, le bâtiment ayant une consommation énergétique minimisée.
-
Murs
- béton
- bois
-
Toitsacier en couverture
-
Statut de la propriétépropriété de la commune
- (c) Ville de Cesson-Sévigné
- (c) Ville de Cesson-Sévigné
- (c) Région Bretagne
- (c) Région Bretagne
- (c) Région Bretagne
- (c) Région Bretagne
- (c) Région Bretagne
- (c) Région Bretagne
Architecte DPLG, 2 rue Goulgatière, Châteaubourg