Equipement sportif universitaire d'une réelle qualité architecturale.
- enquête thématique régionale, patrimoine des sports
Dossier non géolocalisé
-
Aire d'étude et canton
Bretagne
-
Commune
Rennes
-
Adresse
1 avenue Charles Tillon
-
Dénominationsgymnase
L'université de Rennes 2 soulignait depuis 1995 la nécessité d'un nouvel équipement sportif. Le permis de construire est délivré le 7 décembre 1998 (avec modificatif le 27 mai 1999). Le chantier s'ouvre le 30 août 1999 et s'achève le 10 mai 2000.
-
Période(s)
- Principale : limite 20e siècle 21e siècle , daté par source
-
Dates
- 2000, daté par source
-
Auteur(s)
-
Auteur :
Paumier Françoisarchitecte attribution par sourcePaumier FrançoisCliquez pour effectuer une recherche sur cette personne.
-
Auteur :
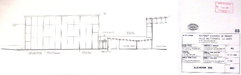
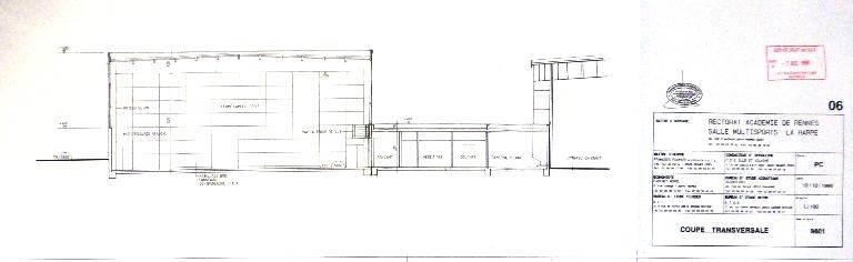
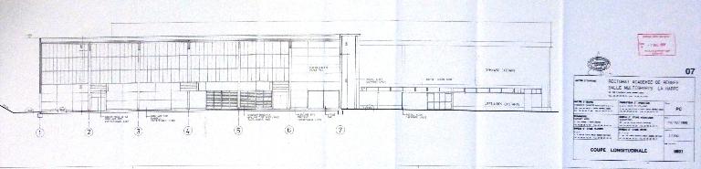
Salle omnisports de 44,60 m x 24 m construite parallèlement à la grande halle de sports édifiée trente ans plus tôt par L. Arretche, L. Miquel et A. Wogenscky. De proportions plus modestes, elle veut néanmoins offrir une visibilité extérieure plus grande, notamment par le traitement du pignon sud, où trois fines colonnes supportent une corniche en surplomb en avant d'une façade en béton armé avec parements bruts. Les façades latérales sont dotées de vitrages en polycarbonate Makrolon.
-
Murs
- béton
- matériau synthétique en gros oeuvre
-
Toitsacier en couverture
-
Plansplan rectangulaire régulier
-
Statut de la propriétépropriété d'un établissement public
- (c) Archives municipales de Rennes
- (c) Archives municipales de Rennes
- (c) Archives municipales de Rennes
- (c) Archives municipales de Rennes
- (c) Archives municipales de Rennes
- (c) Archives municipales de Rennes
- (c) Archives municipales de Rennes
- (c) Région Bretagne
- (c) Région Bretagne
- (c) Région Bretagne
Architecte DPLG, 74 D rue de Paris, Rennes, puis Agence François Paumier architectes associés, 20 avenue Fréville, Rennes