Le bâtiment a été lauréat du Prix national de la construction bois en 2012.
- enquête thématique régionale, patrimoine des sports
- (c) Benoît Gilbert
Dossier non géolocalisé
-
Aire d'étude et canton
Bretagne
-
Commune
Saint-Grégoire
-
Adresse
île de Robinson
-
Dénominationsétablissement nautique
Fondé en 1970, le Canoë-Kayak Club d'Ille-et-Rance (CKCIR) dispose d'un parc de 350 embarcations et compte plus de 200 adhérents. La première pierre des nouveaux locaux, conçus par Claire Lefort, a été posée le 27 janvier 2010. Ils ont été inaugurés le 18 mars 2011.
-
Période(s)
- Principale : 1er quart 21e siècle , daté par source
-
Dates
- 2011, daté par source
-
Auteur(s)
- Auteur : architecte attribution par source
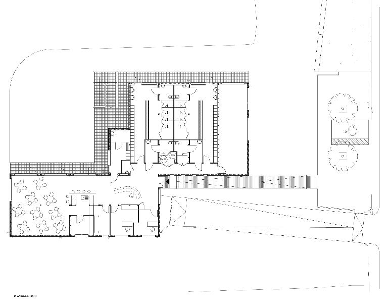
L'équipement est installé dans un site arboré, au confluent de l'Ille et du canal de la Rance. "Le projet, constitué d'un rez-de-chaussée sur pilotis, est accessible depuis une passerelle bois. Les locaux d'accueil, les bureaux et un club house constituent la partie sud tandis que les vestiaires, sanitaires et locaux d'entraînement sportif se situent dans la partie nord. Entre les pilotis au niveau bas, le hangar à bateaux fait face à l'embarcadère, et un séchoir atelier encadre le passage des véhicules sous le volume du rez-de-chaussée. Un escalier permet de descendre au niveau de l'embarcadère depuis les passerelles côté ouest. Le niveau rue du bâtiment est en ossature bois et couvert de bardage bois. Il est posé sur des pilotis en béton. Les locaux en zone inondable sont clos avec des caillebotis en acier galva." (Extrait de la notice architecturale)
-
Murs
- bois
-
Statut de la propriétépropriété de la commune
- (c) Claire Lefort
- (c) Claire Lefort
- (c) Benoît Gilbert
- (c) Benoît Gilbert
- (c) Benoît Gilbert
- (c) Benoît Gilbert
Agence d'architecture Claire Lefort, 6 parc d'affaires de Brocéliande, Saint-Grégoire