Gymnase scolaire typique de la fin des années 1960, rénové et complété en 2006 par une extension sur deux niveaux d'une écriture architecturale élégante.
- enquête thématique régionale, patrimoine des sports
Dossier non géolocalisé
-
Aire d'étude et canton
Bretagne
-
Commune
Rennes
-
Adresse
5 rue Constant Véron
-
Dénominationscomplexe sportif
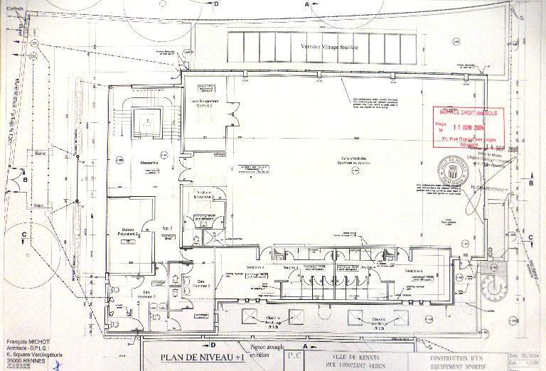
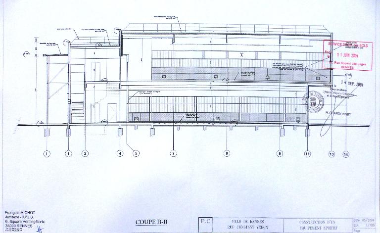
L'équipement sportif Constant Véron se compose de deux éléments. Au nord-est, l'ancien gymnase du groupe scolaire Brest-Verdun a été construit en 1968 dans le cadre d'une commande groupée : plans fournis par le cabinet Architecture & Bâtiment, arrêté d'approbation technique le 15 juin 1966, subvention de 438 000 F au taux de 65% le 28 février 1967, marché passé avec l'entreprise Tible de Granville le 20 mai suivant, ouverture du chantier le 1er août, réception des travaux le 12 février 1968. A ce premier bâtiment, rebaptisé gymnase de l'Ille, a été adjoint au sud-ouest, près de quarante ans plus tard, un second, sur deux niveaux, conçu par F. Michot : permis de construire délivré le 14 septembre 2004, début des travaux le 4 avril 2005, achèvement le 28 avril 2006, pour un coût de 1 488 406 € TTC.
-
Période(s)
- Principale : 3e quart 20e siècle , daté par source
- Principale : 1er quart 21e siècle , daté par source
-
Dates
- 1968, daté par source
- 2006, daté par source
-
Auteur(s)
-
Auteur :
Architecture & Bâtimentarchitecte attribution par sourceArchitecture & BâtimentCliquez pour effectuer une recherche sur cette personne.
-
Auteur :
Michot Françoisarchitecte attribution par sourceMichot FrançoisCliquez pour effectuer une recherche sur cette personne.
Architecte DPLG, 6 square Vercingétorix, Rennes
-
Auteur :
Le gymnase scolaire mis en service en 1968 était du type B Oméga (30 m x 20 m) construit par la société Tible avec charpente métallique. Il est complété en 2006 par un équipement sportif de 1079 mètres carrés de surface hors-oeuvre nette abritant au rez-de-chaussée un hall d'entrée, une salle dédiée à la pratique des arts de combat, des bureaux, et à l'étage une salle d’activités sportives du quartier, chaque niveau comportant en outre sanitaires et vestiaires. Cette extension se signale par l'importance des surfaces vitrées, protégées par un pare-soleil en lames d'aluminium thermolaqué type "aile d'avion" sur structure métallique en acier galvanisé.
-
Murs
- béton
-
Plansplan rectangulaire régulier
-
Couvrements
- charpente métallique apparente
- charpente en bois apparente
-
Couvertures
- terrasse
-
Statut de la propriétépropriété de la commune
- (c) Archives municipales de Rennes
- (c) Archives municipales de Rennes
- (c) Archives municipales de Rennes
- (c) Archives municipales de Rennes
- (c) Archives municipales de Rennes
- (c) Archives municipales de Rennes
- (c) Archives municipales de Rennes
- (c) Archives municipales de Rennes
- (c) Région Bretagne
- (c) Région Bretagne
- (c) Région Bretagne
- (c) Région Bretagne
- (c) Région Bretagne
- (c) Région Bretagne
- (c) Région Bretagne
- (c) Région Bretagne
- (c) Région Bretagne
Société civile d'architectes, 3 rue de Corbin, Rennes