Équipement typique d'une petite commune à la fin du XXe siècle, où l'on s'efforce de s'abstraire de la typologie "hangar" par la volumétrie et la mise en couleurs du bâtiment.
Dossier d’œuvre architecture IA35132394
| Réalisé par
Bonnet Philippe
(Contributeur)
;
Bonnet Philippe
Cliquez pour effectuer une recherche sur cette personne.
De Sousa Figueiredo Déborah
(Contributeur)
;
;
De Sousa Figueiredo Déborah
Cliquez pour effectuer une recherche sur cette personne.
- enquête thématique régionale, patrimoine des sports
- inventaire topographique, Langan
Salle des sports, route de Gévezé (Langan)
Œuvre étudiée
Auteur
-
De Sousa Figueiredo DéborahDe Sousa Figueiredo DéborahCliquez pour effectuer une recherche sur cette personne.
Dossier non géolocalisé
Localisation
-
Aire d'étude et canton
Bretagne
-
Commune
Langan
-
Adresse
route de Gévezé
-
Dénominationsgymnase
La commune de Langan décide de se doter d'un gymnase au début des années 1990. La maîtrise d’œuvre est confiée à l'architecte R. Bot, qui avait précédemment réalisé les salles de sports de Breteil (1986), Laillé (1987) et La Chapelle-Chaussée (1989). Le chantier s'ouvre le 16 septembre 1991 et les travaux sont achevés le 4 septembre 1992.
-
Période(s)
- Principale : 4e quart 20e siècle , daté par source
-
Dates
- 1992, daté par source
-
Auteur(s)
- Auteur : architecte attribution par source
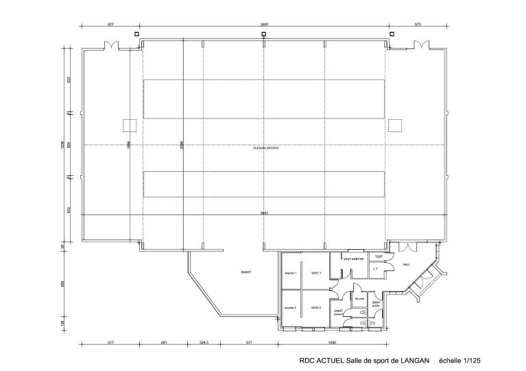
Salle de sports à simple rez-de-chaussée de 36 m de long sur 19 m de large avec annexes techniques et sanitaires. Structure de portiques en lamellé-collé. Murs en béton banché pour la salle, en maçonnerie et charpente bois pour les annexes. Bardage en tôle d'acier galvanisé. Toiture en plaques de fibro-ciment.
-
Murs
- béton enduit
- acier
-
Toitsciment amiante en couverture, béton en couverture
-
Plansplan rectangulaire régulier
-
Couvrements
- charpente en bois apparente
-
Couvertures
-
Statut de la propriétépropriété de la commune
- (c) Ville de Langan
- (c) Ville de Langan
- (c) Région Bretagne
- (c) Région Bretagne
- (c) Région Bretagne
- (c) Région Bretagne
Date(s) d'enquête :
2016;
Date(s) de rédaction :
2016
De Sousa Figueiredo Déborah
De Sousa Figueiredo Déborah
Cliquez pour effectuer une recherche sur cette personne.
Dossiers de synthèse
Architecte DPLG, 7 rue de Hennau, Montfort-sur-Meu