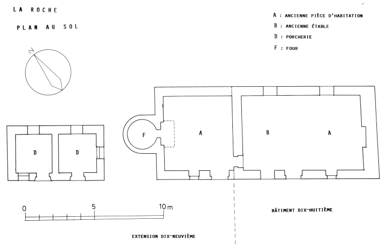
Cette construction est élevée en moellon de schiste et de poudingue pour la partie est et en bauge sur un solin de schiste et de poudingue pour la partie ouest. Les murs de la partie est ont été surélevés avec de la terre. Le bâtiment principal est composé d'une pièce d'habitation à lest et d'un four à l'ouest. A l'ouest, s'élève des refuges à porcs construits en bauge sur un haut solin de schiste.
Dossier d’œuvre architecture IA35029988
| Réalisé par
Dalibard Sabrina
;
Dalibard Sabrina
Cliquez pour effectuer une recherche sur cette personne.
- inventaire préliminaire, Montfort-sur-Meu
Ferme, la Roche (Montfort-sur-Meu)
Œuvre recensée
Auteur
Dossier non géolocalisé
Localisation
-
Aire d'étude et canton
Ille-et-Vilaine - Montfort-sur-Meu
-
Commune
Montfort-sur-Meu
-
Lieu-dit
la Roche
-
Cadastre
1980
B1
-
Dénominationsferme
-
Parties constituantes non étudiéesporcherie, four
-
Période(s)
- Principale : limite 18e siècle 19e siècle
- Principale : 2e moitié 19e siècle
-
Murs
- poudingue
- schiste
- terre
- moellon
-
Toitsardoise
-
État de conservationdésaffecté
-
Statut de la propriétépropriété privée
- (c) Inventaire général, ADAGP
- (c) Inventaire général, ADAGP
- (c) Inventaire général, ADAGP
- (c) Inventaire général, ADAGP
- (c) Inventaire général, ADAGP
- (c) Inventaire général, ADAGP
- (c) Inventaire général, ADAGP
- (c) Inventaire général, ADAGP
- (c) Inventaire général, ADAGP
Date(s) d'enquête :
2003;
Date(s) de rédaction :
2003
Dalibard Sabrina
Dalibard Sabrina
Cliquez pour effectuer une recherche sur cette personne.
Dossiers de synthèse
Articulation des dossiers