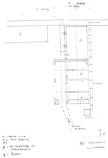
Mentionnée dès 1692, le site comprend outre la fenderie, un four de chaufferie, une halle et le logement du fendeur. Après avoir abrité un moulin à céréales, elle est réhabilitée en scierie, puis aujourd'hui en gîte rural.
- inventaire préliminaire, Paimpont
Dossier non géolocalisé
-
Aire d'étude et canton
Ille-et-Vilaine - Plélan-le-Grand
-
Commune
Paimpont
-
Lieu-dit
la Fenderie
-
Cadastre
1998
AV
-
Dénominationsfenderie
-
Destinationsmoulin, scierie
-
Parties constituantes non étudiéeshalle, logement
-
Période(s)
- Principale : 17e siècle
- Principale : 18e siècle
- Principale : 19e siècle
-
Murs
- grès
- schiste
- moellon
-
Toitsardoise
-
État de conservationdésaffecté
Données complémentaires architecture IP35
- DENO
- HYPOI sans objet
- HYPOE sans objet
- PHYPO
- STYL
- NOTA
- MURS1 grès ; schiste ; moellon
- MURS2
- SCLE1 17e siècle ; 18e siècle ; 19e siècle
- IMPA
- CBATI
- IMBATI
- PERP
- ESPAL
- PASSAGE
- ESPAP
- DISTRIB
- ORDO
- ELEV
- ETAG
- COMBLE
- MOUV
- RDC
- ACCESA
- ACCESP
- NATUA
- FACCES
- FAXE
- FETAG
- FOUV
- IAUT sans objet
- ICHR typicum
- IESP typicum
- ICONTX intégré
- PINTE
- SEL sélectionné
- TYPVIL
- TYPECA
- POSECA
-
Statut de la propriétépropriété privée
- (c) Conseil général d'Ille-et-Vilaine
- (c) Inventaire général, ADAGP
- (c) Inventaire général, ADAGP
- (c) Inventaire général, ADAGP
- (c) Inventaire général, ADAGP
- (c) Inventaire général, ADAGP
- (c) Inventaire général, ADAGP
- (c) Inventaire général, ADAGP
- (c) Inventaire général, ADAGP
- (c) Inventaire général, ADAGP
- (c) Inventaire général, ADAGP
- (c) Inventaire général, ADAGP
- (c) Inventaire général, ADAGP
- (c) Inventaire général, ADAGP
- (c) Inventaire général, ADAGP
- (c) Inventaire général, ADAGP
- (c) Inventaire général, ADAGP
- (c) Inventaire général, ADAGP
- (c) Inventaire général, ADAGP
- (c) Inventaire général, ADAGP
- (c) Inventaire général, ADAGP
- (c) Inventaire général, ADAGP
- (c) Inventaire général, ADAGP
- (c) Inventaire général, ADAGP
- (c) Inventaire général, ADAGP
- (c) Inventaire général, ADAGP
- (c) Inventaire général, ADAGP
- (c) Inventaire général, ADAGP
- (c) Inventaire général, ADAGP
- (c) Inventaire général, ADAGP
- (c) Inventaire général, ADAGP
- (c) Inventaire général, ADAGP
- (c) Inventaire général, ADAGP
Documents figurés
-
Feuille cadastrale de la section H3 dite de la Fanderie, par Roger géomètre, [1823], échelle 1/2500e (A. D. d'Ille-et-Vilaine : 3 P 5438).