L'édifice semble avoir été construit en 1668 (date remployée sur la façade sud). L'élévation sud a été en partie reconstruite dans la première moitié du 19e siècle afin de créer une deuxième entrée remployant une porte ancienne en kersantite. Ces remaniements ont peut-être été réalisés dans le but de diviser le logis en deux unités d'habitation qui existent sur le cadastre de 1830. Lors du remontage de la façade, la date a été remontée à l'envers. Les dépendances construites de part et d'autre du logis figurent également sur le cadastre ancien, celle construite contre le pignon est a été agrandie ultèrieurement. Le lieu ne semble pas avoir été mentionné comme noble dans les documents, de plus l'organisation du parcellaire ancien ne correspond pas à celui d'un logis noble. Il s'agit peut-être d'une métairie dépendant des manoirs voisins de Lescoat ou de Treyer.
- inventaire topographique, Communauté de communes de Crozon
-
Maillard FlorentMaillard FlorentCliquez pour effectuer une recherche sur cette personne.
Dossier non géolocalisé
-
Aire d'étude et canton
Parc Naturel Régional d'Armorique - Crozon
-
Commune
Crozon
-
Lieu-dit
Kerivoa
-
Cadastre
BO
216
-
Dénominationsferme
-
Parties constituantes non étudiéesétable
-
Période(s)
- Principale : 3e quart 17e siècle
- Principale : 1ère moitié 19e siècle
-
Dates
- 1668, porte la date
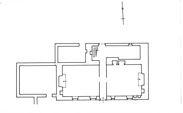
Le logis est de plan allongé à faux plan double en profondeur et étage carré. Il est construit en moellon de grès avec encadrements en granite, kersantite et microdiorite quartzique. Au rez-de-chaussée, la salle possède deux cheminées et des aménagements de confort dans le mur nord tels que saloir et placard mural. Le couloir central délimité par des cloisons en bois est un aménagement tardif. L'étage est desservi par un escalier en équerre logé dans le corps postérieur, à usage de cellier. Des dépendances sont construites en alignement de part et d'autre du logis.
-
Murs
- grès
- granite
- kersantite
- microdiorite quartzique
- moellon
- pierre de taille
-
Toitsardoise
-
Étages1 étage carré
-
Couvertures
- toit à longs pans
- pignon découvert
-
Escaliers
- escalier dans-oeuvre : escalier en équerre
-
État de conservationremanié
-
Statut de la propriétépropriété privée
Ce logis du 17e siècle aux allures de manoir a peut-être appartenu à des métayers dépendant d'une seigneurie, à l'image de la métairie noble de Kerivoaler. Les réaménagements postérieurs montrent les changements d'usage inhérents à l'évolution de la société paysanne.
- (c) Inventaire général, ADAGP
- (c) Inventaire général, ADAGP
- (c) Archives départementales du Finistère
- (c) Région Bretagne
- (c) Région Bretagne
- (c) Région Bretagne
- (c) Région Bretagne
- (c) Région Bretagne
Documents d'archives
-
Archives départementales du Finistère : Série 3 P 45
Archives départementales du Finistère. Série 3 P 45. Tableau d´assemblage et cadastre parcellaire, 1830-1831.
Bibliographie
-
DESHAYES, Albert. Dictionnaire topographique du Finistère. Spézet, 2003, p.66-68.
-
ABGRALL, Jean-Marie. PEYRON, Paul. Notices sur les paroisses du diocèse de Quimper et de Léon. Quimper, 1905, vol. 2.
dessinateur