L´édifice a été bâti au début du 16e siècle. Un des supports sculptés du choeur porte une inscription en lettres gothiques non déchiffrée datant de cette époque. Le haut-relief du Christ en croix au-dessus de la porte sud de la nef semble, en remplacement d´un fleuron plus ancien, dater du 17e ou du 18e siècle et provient peut-être d'une croix monumentale. Bien que figurant sur le cadastre de 1818, la sacristie (16e siècle) ne semble pas occuper son emplacement d'origine mais correspondre à un corps de bâtiment déplacé ; en témoignent les traces d´arrachement au nord de la nef et les reprises au niveau des contreforts du bras sud et du choeur entre lesquels les éléments anciens (parois en pierre de taille, baie et moulurations de la base) ont été remployés. La date de 1846 gravée sur l´élévation ouest correspond à une campagne de restauration.
- inventaire topographique, Guilligomarc'h
Dossier non géolocalisé
-
Aire d'étude et canton
Arzano - Arzano
-
Commune
Guilligomarc'h
-
Lieu-dit
Saint-Eloi
-
Cadastre
1818
B3
;
1990
ZB
51
-
Dénominationschapelle
-
VocablesNotre-Dame
-
Période(s)
- Principale : 1er quart 16e siècle
- Secondaire : 17e siècle , (incertitude)
- Secondaire : 18e siècle , (incertitude)
- Secondaire : 2e quart 19e siècle
-
Dates
- 1846, porte la date
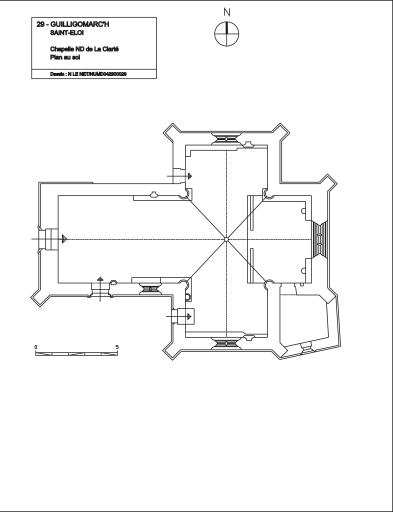
La croisée du transept, est marquée aux quatre angles par des colonnes engagées. Des bancs de granite font le tour des croisillons nord et sud ainsi que de la nef. Présence de plusieurs niches crédences dans les murs de la nef et du transept. Sol recouvert de dalles de granite. Baie du chevet partiellement obturée suite à la mise en place du maître-autel.
-
Murs
- granite
- pierre de taille
-
Toitsardoise
-
Plansplan en croix latine
-
Couvrements
- lambris de couvrement
-
Couvertures
- flèche en maçonnerie
- toit à longs pans
- noue
- pignon découvert
-
État de conservationétat moyen
-
Techniques
- sculpture
-
Représentations
- Christ en croix
- animal fantastique
-
Précision représentations
Haut-relief figurant le Christ en croix (porte sud) ; animaux fantastiques (crossettes).
-
Statut de la propriétépropriété de la commune
-
Intérêt de l'œuvreà signaler
-
Protectionsinscrit MH, 2015/05/21
Le plan en croix latine et le chevet plat percé d´une grande baie sont conformes au programme architectural adopté dans un grand nombre d'édifices religieux de style flamboyant. Les contreforts d´angle amortis de pinacles et surtout la présence de trois baies à remplage en forme de fleur de lys révèlent, avec certitude, et malgré quelques modifications secondaires plus tardives, un édifice homogène construit au début du 16e siècle. L´environnement végétal, notamment la présence d´un marronnier monumental, contribue à la qualité du site qui entoure cet ancien lieu de pèlerinage.
- (c) Inventaire général, ADAGP
- (c) Inventaire général, ADAGP
- (c) Inventaire général, ADAGP
- (c) Inventaire général, ADAGP
- (c) Inventaire général, ADAGP
- (c) Inventaire général, ADAGP
- (c) Inventaire général, ADAGP
- (c) Inventaire général, ADAGP
- (c) Inventaire général, ADAGP
- (c) Inventaire général, ADAGP
- (c) Inventaire général, ADAGP
- (c) Inventaire général, ADAGP
- (c) Inventaire général, ADAGP
- (c) Inventaire général, ADAGP
- (c) Inventaire général, ADAGP
Documents d'archives
-
A.D. Finistère, 3 P 141. Cadastre de 1818, section B 3.
Bibliographie
-
Région Bretagne (Service de l'Inventaire du patrimoine culturel)
COUFFON, René, LE BARS, Alfred. Diocèse de Quimper et de Léon. Nouveau répertoire des églises et chapelles. Quimper : Association Diocésaine, 1988.
p. 121-122 -
INVENTAIRE GÉNÉRAL DES MONUMENTS ET DES RICHESSES ARTISTIQUES DE LA FRANCE. Région Bretagne. Vallée du Scorff. Collection Images du Patrimoine n° 196, Rennes, 2000.
p. 42 -
Le Patrimoine des Communes, le Finistère. Charenton-le-Pont : Flohic Editions, 1998 (Collection Le Patrimoine des Communes de France), vol. 1.
p. 39-40