Dossier d’œuvre architecture IA29000621 | Réalisé par
  • inventaire topographique, Clohars-Carnoët
Manoir, Pencleu (Clohars-Carnoët)
Œuvre étudiée

Dossier non géolocalisé

Localisation
  • Aire d'étude et canton Quimperlé - Quimperlé
  • Commune Clohars-Carnoët
  • Lieu-dit le Pencleu
  • Cadastre 1823 F  ; 1994 F 44-46, 145
  • Dénominations
    manoir
  • Parties constituantes non étudiées
    portail, cour, enceinte, colombier, moulin, étable, grange, remise agricole

1440 : attestation d'un lieu noble.

1536 : mention du manoir du "Pencleuz", avec cour, corps d'entrée, moulin (sans doute le moulin à mer de Doëlan), colombier, verger, bois de haute futaie et métairie. De cet ensemble, construit ou reconstruit au début du 16e siècle, subsistent une partie du logis, un ancien logement et vraisemblablement les traces de l'enceinte.

1540 : appartient à Catherine de Liminec qui en hérite, ainsi que de Kerancornec, un autre manoir situé à proximité, de sa mère, Isabeau Cadoret (source d'après N. Calvez : A. D. Loire-Atlantique, B 2059).

1597-1659 : les Auffret, bourgeois et marchands de Quimperlé, possèdent le manoir. Ils font agrandir l´ensemble vers l´est, tout en conservant ou en englobant une partie des bâtiments existants. L´ancien logis est sans doute déclassé en métairie. Une première campagne d´agrandissement semble correspondre à la construction du grand pavillon de plan rectangulaire situé à l´est qui, couvert d´un toit à croupe, abrite la cage d´escalier associée aux appartements superposés. Lors d´une seconde campagne, sans doute très rapprochée, le chantier évolue, en équerre, vers le sud par l´adjonction d´un pavillon plus petit, de plan carré, légèrement plus haut que le précédent et coiffé d´un toit à l´impériale dont le campanile a disparu. L´accès aux pièces se fait depuis le grand pavillon, formant ainsi des appartements associant chambres et garde robes ou salles et chambres. On ne peut exclure l´hypothèse que ces deux pavillons associés, enferment des parties plus anciennes : en effet, la cheminée de la pièce nord (rez-de-chaussée du grand pavillon) date du 16e siècle (remploi ?) et le pavillon sud, à peine achevé en 1659, fait la liaison avec un bâtiment plus ancien qui abrite, en 1660, cuisines et écuries, partie disparue au 19e siècle.

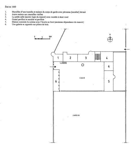
1660 : le manoir devient propriété de Yves Geoffroy de Keresperz qui fait dresser un « procès verbal de l´état des logements du manoir du Pencleu » dont la copie d'une transcription partielle a pu être consultée. Ce document permet de connaître les fonctions des différentes parties de l´ensemble. Guillaume Riou, maître maçon, Guillaume Masson, maître charpentier et Pierre Le Difon, « maître couvreur en ardoize », résidants tous à Quimperlé, se rendent au Pencleu en compagnie du propriétaire afin de convenir des travaux à exécuter.

Puisque l'escalier du « grand pavillon », en bon état, est sans enduit [herissonné] ni blanchiment intérieur, on prévoit un enduit à « chaux et sable ». Cinq cheminées ainsi que les huisseries de quatre fenêtres à sont à mettre en place.

Dans une partie nommée « la petite salle », toutes les murailles ainsi que la tourelle d´escalier « font ventre » et la couverture, en ardoise, est en mauvais état ; le plancher de la salle basse est en bois.

Dans une partie nommée « la maison du corps de garde », on note la vétusté des murailles, y inclus celles d´une « tourelle en forme de colombier » [en réalité élément de défense figurant encore sur le cadastre de 1823]. On accède à l'étage par un escalier extérieur appelé " peroneau" qui est à restaurer.

Dans la maison nommée « la cuisine, avec escurie au bout », il convient de faire à neuf le foyer et de « hérissonner » [enduire] l'intérieur du bâtiment et le pignon.

On note la présence d'« une galerie » appuyée contre la muraille ouest de la cour ; elle est « sur piliers de bois et planchée au bas et grenier au-dessus ».

1736 -1789 : sert de résidence temporaire aux propriétaires successifs qui font exploiter les terres environnantes. Reconstruction des communs ouest, en remplacement de la « galerie sur piliers » et amorce d´un portail projeté mais non réalisé.

1793 : vendu comme Bien National au profit de Jean-Baptiste Peyron, maire de la commune.

1829 - 1893 : propriété de la famille de Mauduit du Plessis, dont Antoine-Louis et Antoine, père et fils, se succèdent comme maires de Clohars-Carnoët. Construction des communs nord avec remploi de matériaux provenant de la démolition de l´aile est. Remaniements intérieurs de la partie centrale (distributions, cloisonnements, lambris).

Entre 1909 et 1933 : disparition du puits d´origine et mise en place du puits actuel, légèrement déplacé ; il provient de la métairie de Kercornec qui, située au nord du manoir, faisait partie du domaine.

1978 : rejet d´une demande d'inscription à l'inventaire supplémentaire des monuments historiques suite à avis de l´architecte en chef des monuments historiques : " Le manoir de Pencleu forme un ensemble pittoresque qui a conservé son enceinte. Toutefois, les bâtiments en eux-mêmes sont d´un intérêt médiocre et assez remaniés, à part le bâtiment des communs qui, quoique très tardif, a, avec ses lucarnes et ses fenêtres, des proportions agréables".

2000-2001 : Restauration et restructuration de l´ensemble, suppression d´une tourelle au nord (probablement la cage de l'ancien escalier en vis ou d'un petit corps de latrines transformé au 19e siècle), percement de baies, suppression des enduits.

Le manoir existe en 1440. Parmi les bâtiments construits dans la première moitié du 16e siècle, seul le logement ouest, le portail ouest et une partie de l'enceinte subsistent. Colombier disparu. Attesté en 1536, le moulin à marée (disparu) se situait au fond de l'anse de Doëlan et figure sur le cadastre de 1823. Les communs ouest sont rebâtis dans la seconde moitié du 18e siècle, sur l'emplacement d'un bâtiment du 16e siècle connu par une description de 1660. Le corps de logis est (escalier, appartements) et une partie de l'aile sud sont élevés dans la première moitié 17e siècle pour la famille Auffret, de Quimperlé. Les aménagements intérieurs sont sans doute terminés peu après 1660 pour Yves de Keresperz.

Ensemble à cour ouverte. Logis ouest à 1 étage carré, logis est à 1 ou 2 étages carrés, logis central à 1 étage et comble à surcroît. Communs ouest en rez-de-chaussée, comble à surcroît et toit à longs pans brisés. Les autres toitures sont à deux pans, à l'exception du logis nord-est couvert d'un toit à croupe, et du logis sud-est, coiffé d'un toit à l'impériale.

  • Murs
    • granite
    • schiste
    • enduit partiel
    • moellon
  • Toits
    ardoise
  • Étages
    1 étage carré, 2 étages carrés, comble à surcroît
  • Élévations extérieures
    élévation ordonnancée
  • Couvertures
    • toit à longs pans brisés
    • toit à l'impériale
    • toit à deux pans
    • croupe
    • noue
  • Escaliers
    • escalier tournant à retours sans jour en maçonnerie
  • État de conservation
    restauré
  • Statut de la propriété
    propriété privée
  • Intérêt de l'œuvre
    à signaler
  • Éléments remarquables
    escalier

Situé à proximité du port de Doëlan et face à l'Atlantique, le Pencleu fait partie des demeures remarquables de la commune de Clohars-Carnoët et du canton de Quimperlé. En dépit d'un grand nombre de transformations intervenues au cour des siècles, il conserve de nombreux éléments qui illustrent l'évolution du manoir de type médiéval vers le petit château. C'est le seul édifice civil du canton qui conserve un toit à l'impériale (toit de plan centré à pans galbés) et un escalier monumental de pierre de type rampe-sur-rampe. Les parties du 17e siècle se comparent à celles de l'hôtel particulier que les Auffret font bâtir, à la même époque, à Quimperlé.

Documents d'archives

  • A.D. Finistère (3 P 101), extrait du cadastre de 1823, section F1 dite du Prieuré, échelle 1/2500. De Foresta, préfet, Andouy, maire, Dessaux et Azémar, géomètres.

  • A. P. Le Thoër, Clohars-Carnoët.

Bibliographie

  • OGEE, Jean-Baptiste. Dictionnaire historique et géographique de la province de Bretagne. 1ère édition 1778-1780. Nouvelle édition, revue et augmentée par MM. A. Marteville, et P. Varin, avec la collaboration principale de MM. De Blois, Ducrest de Villeneuve, Guépin de Nantes et Lehuérou. Rennes, 1843, p. 188-189.

  • CALVEZ, Nathalie. Les manoirs dans la châtellenie de Quimperlé, d´une réformation à l´autre (1426-1536). Mém. D.E.A. : Hist. : Brest, Université de Bretagne occidentale, centre de Recherches Bretonnes et Celtiques : 1991 [inédit ; dactylographié].

    p. 149-150
  • Le Patrimoine des communes du Finistère (Collection Le Patrimoine des Communes de France). Charenton-le-Pont : Flohic Editions, 1998, t. I.

    p. 1333
  • INVENTAIRE GENERAL DES MONUMENTS ET DES RICHESSES ARTISTIQUES DE LA FRANCE. Région Bretagne. Quimperlé et son canton. Images du Patrimoine , n° 217, Rennes, 2002.

    p. 13

Annexes

  • Annexe n°1
Date(s) d'enquête : 2001; Date(s) de rédaction : 2002
Articulation des dossiers