Vers 1050, fondation par Alain Canhiart, comte de Cornouaille, de l´abbaye bénédictine qui dépend de Saint-Sauveur de Redon. A la fin du 11e ou début du 12e siècle, le fils d´Alain Canhiart, Benoît, évêque de Nantes et abbé de Sainte-Croix, est à l'origine des premiers bâtiments conventuels (disparus) et de l´église de plan circulaire destinée à abriter le tombeau du premier abbé, Gurloës, mort vers 1050 (voir dossier église paroissiale Sainte-Croix). Depuis la fin du 15e siècle et surtout entre 1520-1553, peut-être sous l´abbatiat de Daniel de Saint-Alouarn, reconstruction probable d´une partie des bâtiments conventuels qui figurent sur un plan de 1664, document important pour comprendre les bâtiments avant leur reconstruction complète intervenue plus tard. Entre 1553 et 1665, déclin progressif de l´abbaye qui passe sous le régime séculier de la commende, notamment sous la tutelle de plusieurs membres de la famille de Gondi qui en confient la gestion à des serviteurs. En 1590, lors des guerres de la Ligue, dégradation des bâtiments qui servent de refuge à la population de la ville. En 1665, la congrégation des bénédictins de Saint-Maur prend possession de l´abbaye et initie son renouveau. L´inventaire des bâtiments et plusieurs relevés permettent de connaître l´état de l´ensemble, les projets non réalisés et l´évolution globale envisagée. L´église ne connaît pas de modifications notables. Le cloître d´origine est peut-être encore en place. En raison des distributions, de l´emplacement et de la forme des escaliers, une partie des bâtiments conventuels figurant sur des documents de la seconde moitié du 17e siècle, semblent avoir été reconstruite ou remaniée entre la fin du 15e et le milieu du 16e siècle. Entre 1668-1712, grande prospérité et essor architectural notable sous l´abbatiat de Guillaume Charrier : à l´exception de l´église, destruction des bâtiments construits à l´époque médiévale et reconstruction intégrale des bâtiments conventuels, des clôtures et des bâtiments secondaires. En 1678, mise en place d´un nouveau logis abbatial, au sud des bâtiments existants, à l´emplacement de l´ancienne chapelle Saint-Gurthiern, d´après les plans du marquis de Lavardin de Beaumanoir, ingénieur militaire, commandant de Port-Louis, Hennebont et Quimperlé. Les travaux sont exécutés par les maîtres maçons Jean et Mathurin Mahé, de Quimperlé. Entre 1679 et 1681, mise en place d´un clocher au-dessus du vaisseau central de l´église, d´après le projet de Thomas Jouneaux, prieur de Sainte-Croix. Entre 1682-1695, reconstruction de l´aile est des bâtiments conventuels (sacristie, salle capitulaire, chartrier, escalier, dortoirs), sans doute aussi d´après les plans de Thomas Jouneaux. La "pierre de Caen" couvre une partie des sols. Entre 1694 et 1698, l´abbé Guillaume Charrier fait appel à Olivier Delourme (1660-1729), entrepreneur et architecte de Vannes, pour reconstruire l´aile sud et notamment l´avant-corps ouest, vraisemblablement d´après les instructions laissées par Thomas Jounaux. Cette campagne de travaux dont le coût s´élève à 16 500 livres, concerne le réfectoire "voûté de tuffeau", les cuisines et les dépenses, les salles d´hôtes (hostelleries) et l´escalier monumental "de pierre voûtée par dessous jusqu´au premier estage, de bois ceintré par dessous pour recevoir un plafond en forme de voûte pour le second estage". Entre 1701 et 1705, les maîtres maçons Mahé terminent l´aile nord du cloître ainsi que l´aile ouest (infirmeries, parloir, vestibule) percée d´"une belle porte suivant le dessein qu´on leur a donné" dont l´auteur était peut-être Jounaux et dont le tympan porte les armoiries de la congrégation de Saint-Maur. L´ancien logis abbatial sert d´auberge dès le début du 18e siècle. L´abbaye est vendue comme bien national en 1790. L´église devient chef-lieu de la paroisse de la basse ville et les anciens bâtiments conventuels sont affectés, successivement ou simultanément, à différentes administrations (siège du district, tribunal, hôtel de ville, établissement scolaire et sous-préfecture). Entre 1815 et 1836, nombreux relevés de l´ensemble des bâtiments par l´ingénieur des Ponts et Chaussées Detaille et l´architecte Joseph Bigot. En 1840, l´église, les deux tombeaux conservés dans la crypte et les boiseries de la sacristie sont classés au titre des monuments historiques. En 1862, effondrement du clocher-tour de l´église et vaste campagne de reconstruction terminée en 1868. Inscription du cloître à l´inventaire supplémentaire des monuments historiques et suppression de la sous-préfecture en 1926. Les anciens bâtiments conventuels, propriété du département du Finistère, plusieurs fois remaniés depuis le début du 19e siècle - à l´exception du cloître et des escaliers - abritent aujourd´hui le tribunal d´instance ainsi que des bureaux et des logements de fonction de la gendarmerie nationale. Un vaste projet de restauration est en cours de réalisation depuis 2002.
- inventaire topographique, Quimperlé
Dossier non géolocalisé
-
Aire d'étude et canton
Quimperlé - Quimperlé
-
Hydrographies
l' Ellé
-
Commune
Quimperlé
-
Adresse
Rue de la Paix
-
Cadastre
1981
AR
324
-
Dénominationsabbaye
-
Genrede bénédictins
-
Destinationstribunal, gendarmerie, logement
-
Période(s)
- Principale : limite 15e siècle 16e siècle , (incertitude)
- Principale : 2e moitié 17e siècle
- Principale : 1er quart 18e siècle
- Secondaire : limite 11e siècle 12e siècle
- Secondaire : 19e siècle
- Secondaire : 20e siècle
-
Auteur(s)
- Auteur : architecte départemental attribution par source
-
Auteur :
Delourme Olivierarchitecte attribution par sourceDelourme OlivierCliquez pour effectuer une recherche sur cette personne.
Architecte vannetais.
La terre et seigneurie de Boismourault et Bilaire sont vendues à Olivier Delourme pour la somme de 15000 £ par acte du 23 janvier 1722.
- Auteur : ingénieur attribution par source
- Auteur : maître maçon attribution par source
- Auteur : maître maçon attribution par source
- Auteur : architecte attribution par source
-
Auteur :
Lavardin de Beaumanoiringénieur militaire attribution par sourceLavardin de BeaumanoirCliquez pour effectuer une recherche sur cette personne.
- Personnalité : commanditaire attribution par source
-
Personnalité :
Canhiart Benoîtcommanditaire attribution par sourceCanhiart BenoîtCliquez pour effectuer une recherche sur cette personne.
Comte de Cornouaille, évêque de Nantes
-
Personnalité :
Saint-Alouarn Daniel de ?commanditaire attribution par sourceSaint-Alouarn Daniel de ?Cliquez pour effectuer une recherche sur cette personne.
-
Personnalité :
Charrier Guillaumecommanditaire attribution par sourceCharrier GuillaumeCliquez pour effectuer une recherche sur cette personne.
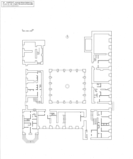
L´ancienne abbaye se situe dans la partie sud de la basse ville de Quimperlé dont elle occupait, à elle seule, plus qu´un quart de la surface. Bâtie à proximité de la rivière de l´Ellé dont profitaient les jardins d´agrément à l´est, elle s'ouvre, à l´ouest et au sud directement sur des espaces urbains. Les bâtiments conventuels, composés de trois corps cantonnés de pavillons, donnent sur cloître dont la galerie nord jouxte l´église. Les galeries du cloître comportent chacune cinq travées d´arcades ; les piliers sont en granite (partie inférieure) et en tuffeau (partie supérieure). Les galeries sont voûtées d´arêtes en tuffeau dont les quartiers retombent, à l´intérieur, sur des culs-de-lampe sans décor, à l´extérieur sur les tailloirs des piliers flanqués de contreforts. La partie est du corps sud enferme un escalier rampe sur rampe en granite. La partie ouest du corps sud enferme un escalier tournant avec repos formant retour d´équerre et voûtes porteuses en demi-berceau en tuffeau ; pourvu de balustres en bois, cet escalier est en granite entre le rez-de-chaussée et le premier étage, en charpenterie entre le premier étage et l´étage de comble. Le pavillon d´angle sud-est a été transformé, dans la première moitié du 19e siècle, en tribunal d´instance, puis rasé dans les années 1970 pour être remplacé par l´actuel bâtiment abritant la Poste. L´ancien logis abbatial devient, à la fin du 19e siècle, un hôtel de voyageurs (Hôtel du Lion d´Or), puis est défiguré au 20e siècle par le rajout d´un étage. Les corps de bâtiments entourant le cloître abritent un étage carré et un étage de comble ; seule l´aile ouest, pavillon sud inclus, possède un sous-sol. Un cadran solaire en calcaire, timbré d´un blason martelé, est placé dans le brisis des combles sud.
-
Murs
- granite
- enduit partiel
- pierre de taille
- moellon
-
Toitsardoise
-
Plansplan régulier en U
-
Techniques
- sculpture
-
Représentations
- armoiries
-
Précision représentations
Armoiries de la congrégation de Saint-Maur : porte ouest de l'aile ouest et porte ouest de l'aile est donnant sur le cloître.
-
Statut de la propriétépropriété du département
-
Intérêt de l'œuvreà signaler
-
Protectionsinscrit MH, 1926/12/02
-
Précisions sur la protection
Cloître : inscription par arrêté du 2 décembre 1926.
-
Référence MH
L´abbaye bénédictine Sainte-Croix forme le noyau le plus ancien de la ville de Quimperlé dont elle est à l´origine. Après plusieurs siècles de modifications, l´unité foncière, spatiale et formelle de ce vaste ensemble monastique est aujourd´hui difficile à appréhender. On peut néanmoins, pour l´essentiel, distinguer trois périodes architecturales, le 12e siècle (église), la seconde moitié du 17e siècle (bâtiments conventuels, logis abbatial) et les années 1864-1868 (reconstructions, remaniement, réaffectations). En absence d´études architecturales approfondies, il n´est pas aisé de retracer, en totalité, l´évolution du bâti. Malgré l´importance de la documentation historique et iconographique, certaines données sont obscures ou difficiles à interpréter. Des incertitudes subsistent, notamment en ce qui concerne les bâtiments conventuels du 12e siècle. Qu´en subsistait-t-il sur le plan de 1664 ? Avaient-ils été rebâtis, partiellement ou totalement, entre la fin du 15e et le début du 16e siècle ? Comment imaginer les clôtures et les accès séparant l´abbaye de la ville jusqu´à la Révolution ? Il ne fait pas de doute que la campagne de reconstruction décisive, intervenue durant la seconde moitié du 17e siècle sous la conduite de l´abbé Guillaume Charrier, a effacé les traces des bâtiments médiévaux. A cause de sa monumentalité, de sa conception architecturale exceptionnelle et de sa fonction de sanctuaire liée aux sépultures des fondateurs laïques et ecclésiastiques, l´église sera peu touchée par ces interventions. Les bâtiments conventuels, en revanche, vont prendre un aspect conforme à l´esprit d´autres établissements appartenant à la congrégation des bénédictins de Saint-Maur (Rennes, Solesmes et Angers) pour lesquels Thomas Jouneaux, un temps prieur de Sainte-Croix, du Tronchet et de Redon, avait dressé les plans. Le cloître de Sainte-Croix se compare également à celui, contemporain mais remanié, du couvent d´ursulines de Quimperlé. L´envergure du chantier qui, excepté l´église, concerne la totalité de l´abbaye, le fait de confier les travaux à des architectes et entrepreneurs renommés tels qu´Olivier Delourme, connu pour ses réalisations à Vannes, Saint-Gildas-de-Rhuys, Loyat et Kerguéhennec ou encore le recours massif à des matériaux de construction importés tel que le tuffeau, font que l´abbaye Sainte-Croix dépasse le cadre local et se situe parmi les grandes réalisations conventuelles du 17e siècle en Bretagne.
- (c) Inventaire général, ADAGP
- (c) Inventaire général, ADAGP
- (c) Inventaire général, ADAGP
- (c) Inventaire général, ADAGP
- (c) Inventaire général, ADAGP
- (c) Inventaire général, ADAGP
- (c) Inventaire général, ADAGP
- (c) Inventaire général, ADAGP
- (c) Inventaire général, ADAGP
- (c) Inventaire général, ADAGP
- (c) Inventaire général, ADAGP
- (c) Inventaire général, ADAGP
- (c) Inventaire général, ADAGP
- (c) Inventaire général, ADAGP
- (c) Inventaire général, ADAGP
- (c) Inventaire général, ADAGP
- (c) Inventaire général, ADAGP
- (c) Inventaire général, ADAGP
- (c) Inventaire général, ADAGP
- (c) Inventaire général, ADAGP
- (c) Inventaire général, ADAGP
- (c) Inventaire général, ADAGP
- (c) Inventaire général, ADAGP
- (c) Inventaire général, ADAGP
- (c) Inventaire général, ADAGP
- (c) Inventaire général, ADAGP
- (c) Inventaire général, ADAGP
- (c) Inventaire général, ADAGP
- (c) Inventaire général, ADAGP
- (c) Inventaire général, ADAGP
- (c) Inventaire général, ADAGP
- (c) Inventaire général, ADAGP
- (c) Inventaire général, ADAGP
- (c) Inventaire général, ADAGP
- (c) Inventaire général, ADAGP
- (c) Inventaire général, ADAGP
- (c) Inventaire général, ADAGP
- (c) Inventaire général, ADAGP
- (c) Inventaire général, ADAGP
- (c) Inventaire général, ADAGP
- (c) Inventaire général, ADAGP
- (c) Inventaire général, ADAGP
- (c) Inventaire général, ADAGP
- (c) Inventaire général, ADAGP
- (c) Inventaire général, ADAGP
- (c) Inventaire général, ADAGP
Documents d'archives
-
A.N. N III. Finistère 1, 1-6. Plan de l'abbaye Sainte-Croix de Quimperlé, 1664.
-
A.D. Finistère, 1 J 818-823. Etat de l'abbaye et projets de reconstruction, 1664. Photographies des documents conservés aux Archives Nationales.
-
A.D. Finistère, 5 H 58. Projet de reconstruction partielle, vers 1676.
-
A.D. Finistère, 3 P 292. Quimperlé cadastre de 1824, section F.
-
A.D. Finistère. Atlas des bâtiments départementaux, 1835-1836.
-
A.E. Quimper. Fonds Bigot, 8 L. 19e siècle.
Bibliographie
-
L´Abbaye de Sainte-Croix de Quimperlé, des origines à la Révolution. Actes du colloque de Quimperlé, 1998. Centre de recherches bretonnes et celtiques, université de Brest. Association des amis de l´abbaye de Sainte-Croix. Quimperlé, 1999.
-
BOURDE DE LA ROGERIE, Henri. Artistes, artisans, ingénieurs en Bretagne. A.P.I.B. (Association pour l´Inventaire de Bretagne), Bruz, 1998.
-
CASTEL, Yves-Pascal, DANIEL, Tanguy, THOMAS, Georges-Michel. Artistes en Bretagne. Dictionnaire des artistes, artisans et ingénieurs en Cornouaille et en Léon sous l´Ancien Régime. Quimper : Société archéologique du Finistère, 1987.
-
Région Bretagne (Service de l'Inventaire du patrimoine culturel)
COUFFON, René, LE BARS, Alfred. Diocèse de Quimper et de Léon. Nouveau répertoire des églises et chapelles. Quimper : Association Diocésaine, 1988.
p. 360-362 -
DUBUISSON-AUBENAY. Itinéraire de Bretagne en 1636. Archives de Bretagne. Recueil d´actes, de chroniques et de documents inédits, t. IX. D´après le manuscrit original, avec notes et éclaircissements, par L. Maître et P. de Berthou, Nantes, 1898.
p. 99-102 -
INVENTAIRE GENERAL DES MONUMENTS ET DES RICHESSES ARTISTIQUES DE LA FRANCE. Région Bretagne. Quimperlé et son canton. Finistère. Collection Images du Patrimoine n° 217, Rennes, 2002.
p. 54-50 -
LE DUC, dom Placide. Histoire de l´abbaye de Sainte-Croix de Quimperlé. Ed. R.-F. Le Men. Quimperlé, 1863.
-
LISCH, René. Sainte-Croix de Quimperlé. Dans : Congrès archéologique de France : Cornouaille. Orléans, 1957.
p. 84-93 -
MUSSAT, André. Arts et cultures de Bretagne, un millénaire Paris : Berger-Levrault, 1979.
p. 248
Architecte du département du Finistère (1835-1873). Architecte du diocèse de Quimper et de Léon (1837-1892).