Comme le logis non étudié, l'ensemble des éléments date de la seconde moitié du 19e siècle.
Dossier d’œuvre architecture IA29000044
| Réalisé par
;
Toscer Catherine
Toscer Catherine
Cliquez pour effectuer une recherche sur cette personne.
- inventaire topographique, Le Faou
Maison, Pont-de-Buis : Nonnat Izella (Pont-de-Buis-lès-Quimerch)
Œuvre étudiée
Auteur
Dossier non géolocalisé
Localisation
-
Aire d'étude et canton
Parc Naturel Régional d'Armorique - Faou (Le)
-
Commune
Pont-de-Buis-lès-Quimerch
-
Lieu-dit
Pont-de-Buis : Nonnat Izella
-
Cadastre
1986
ZW
76
-
Dénominationsmaison
-
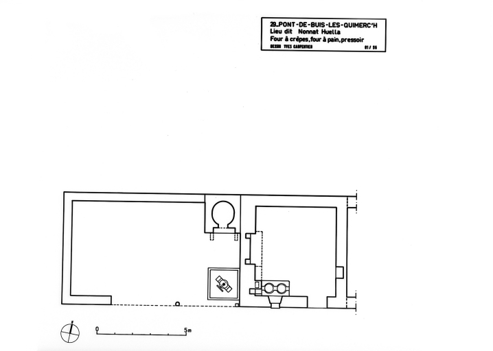
Parties constituantes non étudiéespressoir, four à pain, remise
-
Période(s)
- Principale : 2e moitié 19e siècle
-
Murs
- schiste
- moellon sans chaîne en pierre de taille
-
Toitsardoise, tôle ondulée
-
Étagesen rez-de-chaussée
-
Couvertures
- toit à longs pans
-
Typologiespoêle à crêpes
-
Statut de la propriétépropriété privée
-
Sites de protectionsite inscrit, parc naturel régional
Site inscrit des Monts d'Arrée (Site pluricommunal) : arrêté du 10/01/1966. Le lieu est intéressant à cause des remises abritant un four à pain, un pressoir à cidre et un poêle à crêpes. Site inscrit des Monts d'Arrée (Site pluricommunal) : arrêté du 10/01/1966.
- (c) Inventaire général, ADAGP
- (c) Inventaire général, ADAGP
- (c) Inventaire général, ADAGP
- (c) Inventaire général, ADAGP
- (c) Inventaire général, ADAGP
- (c) Inventaire général, ADAGP
- (c) Inventaire général, ADAGP
- (c) Inventaire général, ADAGP
- (c) Inventaire général, ADAGP
- (c) Inventaire général, ADAGP
Date(s) d'enquête :
1996;
Date(s) de rédaction :
1997
Toscer Catherine
Toscer Catherine
Cliquez pour effectuer une recherche sur cette personne.
Dossiers de synthèse
Articulation des dossiers