Jugée lors de son inauguration en 2015 comme "un équipement moderne, chaleureux, performant", la salle communautaire des sports de Cavan résulte de la refonte complète d'un gymnase du milieu des années 1980.
- enquête thématique régionale, patrimoine des sports
Dossier non géolocalisé
-
Aire d'étude et canton
Bretagne
-
Commune
Cavan
-
Adresse
rue Jean Monnet
-
Dénominationsgymnase
Le 8 octobre 1984, le conseil municipal approuve le projet de transformation de l'ancien atelier de menuiserie Le Roy en salle de sports. Celui-ci fait l'objet d'un arrêté d'approbation technique le 11 février 1985 et bénéficie d'une subvention de 210 000 F du conseil général au taux de 25% le 16 mars. Le permis de construire est signé le 25 septembre 1985. Trente ans plus tard, une rénovation de l'équipement construit par M. Velly s'impose, comprenant en particulier la dépose de la couverture et des bardages en fibrociment amianté. Conçue par J. Grimault, elle inclut également une extension avec création de gradins. Le permis de construire est délivré le 15 novembre 2013 et l'inauguration a lieu le 24 septembre 2015.
-
Période(s)
- Principale : 4e quart 20e siècle , daté par source
- Principale : 1er quart 21e siècle , daté par source
-
Dates
- 1986, daté par source
- 2015, daté par source
-
Auteur(s)
- Auteur : architecte attribution par source
-
Auteur :
Grimault Jackyarchitecte attribution par sourceGrimault JackyCliquez pour effectuer une recherche sur cette personne.
Atelier d’Architecture J. Grimault, ZA de Kergré, Guingamp
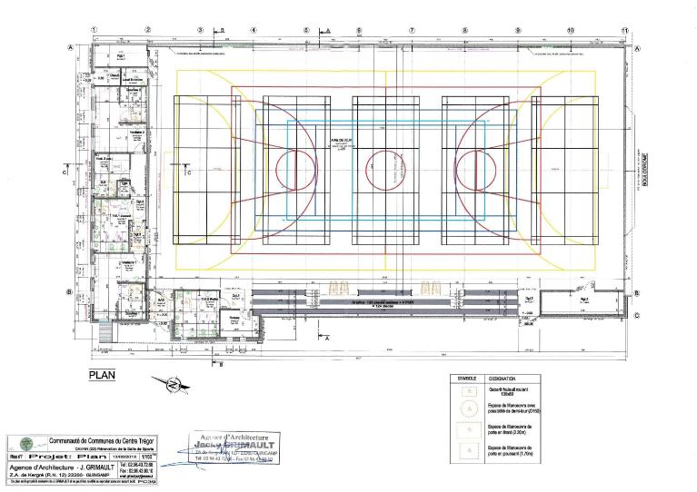
De la salle de sports d'origine (1986), considérée trente ans plus tard comme vétuste, froide et bruyante, il ne reste guère que la charpente métallique. L'intervention achevée en 2015 s'est en effet traduite par une rénovation complète de l'équipement existant, incluant désamiantage, réfection des façades et toitures, bardages, éclairements naturels, chauffage, ventilations, production d’eau chaude, électricité et éclairages, pose d’un sol sportif et construction de gradins de 120 places, ainsi que le réaménagement des vestiaires et locaux annexes. En outre, un boulodrome couvert a été adossé au pignon sud du gymnase.
-
Murs
- acier essentage de tôle
-
Toitsacier en couverture
-
Plansplan rectangulaire régulier
-
Couvrements
- charpente métallique apparente
-
Statut de la propriétépropriété publique, L'équipement, municipal à l'origine, relève dorénavant de Lannion-Trégor Communauté.
- (c) Archives départementales des Côtes-d'Armor
- (c) Archives départementales des Côtes-d'Armor
- (c) Lannion-Trégor Communauté
- (c) Lannion-Trégor Communauté
- (c) Lannion-Trégor Communauté
- (c) Région Bretagne
- (c) Région Bretagne
- (c) Région Bretagne
- (c) Région Bretagne
- (c) Région Bretagne
- (c) Région Bretagne
- (c) Région Bretagne
Architecte, 39 rue des Promenades, Saint-Brieuc