Historien, membre de l'association Océanide.
- enquête thématique régionale, Inventaire du patrimoine culturel maritime de l'estuaire de Tréguier
- (c) Association Océanide
- (c) Institut national de l'information géographique et forestière
Dossier non géolocalisé
-
Aire d'étude et canton
Bretagne
-
Commune
Lézardrieux
-
Lieu-dit
Ile à Bois
-
Dénominationsensemble fortifié
L'Île à Bois est embossée à une encablure de la rive gauche du Trieux au débouché de l'estuaire de ce fleuve côtier dans l'archipel bréhatin. Sa position à la jonction des deux chenaux qui permettent l'accès au port de Lézardrieux, fait d'elle le verrou du port de Lézardrieux. Sa superficie est de 15 hectares, sa ligne de crête est orientée sur un axe nord-est, sud-ouest, avec deux points hauts, les cotes 39 mètres et 33 mètres, séparés par un petit col qui permet la communication entre les deux côtes de l'île. L'altitude de la rive gauche du fleuve en arrière-plan culmine à 60 mètres, permettant à l'île de se fondre dans le relief de la côte, et de la rendre difficilement discernable à un observateur en provenance du large. Le trait de côte développe 3000 mètres, il se présente sous l'aspect d'une micro-falaise. Sur la côte est, subsiste une décharge de résidus de taille des pierres extraites de la carrière ouverte sur l'île à l'emplacement actuel de la prairie. La petite jetée à la pointe sud de l'île résiste plutôt moins que bien au travail de sape de la mer.
La fortification de l’île à Bois au 17e siècle
La mise en défense de l’île à Bois débute durant la seconde moitié du 17e siècle, avec la construction d’une batterie d’artillerie judicieusement placée ; des retranchements défendus par des merlons de terre parachèvent la mise en sûreté de l’île. Entre 1745 et 1746, le corps de garde voûté en plein cintre est rénové. Il est utilisé comme poste de guet et de casernement pour une dizaine d'hommes, la remise pour la réserve de poudre est aménagée sous la tourelle de guet. La batterie d’artillerie est transformée pour permettre le tir à barbette en direction de l’entrée du fleuve, le tracé de la joue de l’embrasure de droite est modifié pour élargir son secteur de tir en direction du poste de douane de l’îlot Roc’h an Onn et le mouillage intérieur. Elle se présente sous la forme d'un merlon en terre renforcé à l'aide de pierraille, ayant la forme d'un J à l'envers. Elle est chargée d'interdire l'entrée du fleuve à des navires ayant échappé aux boulets des batteries des îles de Bréhat, Modez, Verte, Logodec et Raguenes.
Armement : 3 canons de 12 livres.
Elle est arasée par l’occupant germanique en 1943, pour construire à son emplacement une casemate, type 611, pour canon de campagne.
Le corps de garde est déclassé dans la seconde moitié du 19e siècle, il est vendu aux enchères publiques, vente qui se déroule, le 26 octobre 1868, en Mairie de Lézardrieux. Classé comme amer, il est occasionnellement utilisé comme lieu de recueillement. De son emplacement sur la cote sommitale de l’île à Bois, ce témoin silencieux des vicissitudes de notre pays veille toujours sur l’estuaire du Trieux.
"Po46" Lézardrieux - Île à Bois
Le canton de Lézardrieux se voit de facto qualifié de "groupe de points d'appui" dans la terminologie allemande, en vertu des Instructions générales de combat pour la défense côtière, alinéa 4 de la directive n°40. En conséquence, il est décidé de fortifier l'Île à Bois pour protéger le mouillage de Coatmer et verrouiller l'accès par le fleuve du port de Lézardrieux. De nouveau, à deux siècles d'intervalles, la géographie impose sa loi aux défenseurs.
Armement :
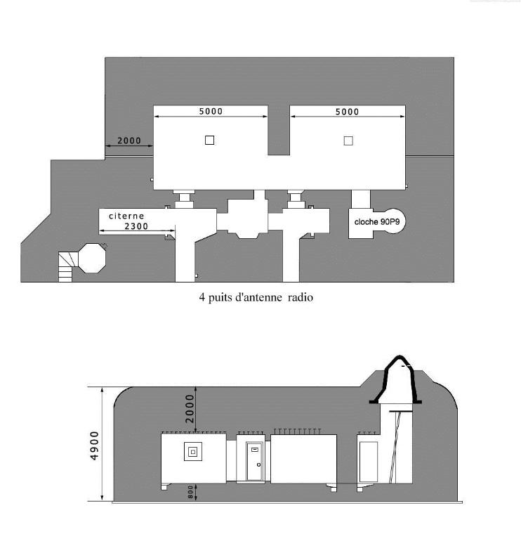
Pour permettre à la garnison de l'île à Bois de remplir sa mission de défense du fleuve côtier Trieux et du chenal du Ferlas, ainsi que l'interdiction de débarquement sur les plages de cette embouchure, une dotation en matériels d'artillerie est définie comme suit :
- 2 x 10,5 cm sous béton,
- 1 x 7,5 cm sous béton,
- 2 x 7,5 cm 231 (f) sur plate-forme,
- 4 x 5,5 cm antichar sous béton,
- 1 x tourelle Berliet de char Renault FT - mitrailleuse
- 1 mitrailleuse sous cuirassement,
- 1 x mortier de 8 cm.
- 2 x mortiers de 5 cm.
Environ dix-huit mois sont nécessaires à la mise sous béton de cette artillerie, ainsi qu’à l’édification des abris pour la garnison. Une bétonnière est utilisée à chaque chantier d’une casemate ou d’un abri passif.
La garnison de l'Île à Bois
La 11ème Compagnie à l’effectif de 201 hommes, du IIIème Bataillon (PC à Lézardrieux), du 897ème Infanterie Régiment (PC à Pontrieux) de la 266ème Infanterie Division (PC à Belle-Isle-en-Terre) occupe les lieux. Une section de cette compagnie est chargée de la défense de "Po47" Mer Melen et de Po48 Creac’h Maout. Un détachement d'artilleurs du Groupe d'Artillerie III (PC à Lézardrieux ) du 266ème Régiment d'artillerie (PC à Belle-Isle-en-Terre), est en charge de la direction des tirs de la batterie de Kerdroel à partir de l'observatoire d'artillerie, type 627.
Épilogue
Le 5 août 1944, les troupes du Groupe de défense côtière de Pontrieux reçoivent l'ordre de se replier sur Brest. Avant de quitter Po46, la garnison sabote l'armement et les principales installations de l'île à Bois. Le même jour un contre ordre émanant du Grand Quartier Général en Prusse Orientale, ordonne aux unités en retraite de réoccuper leurs anciennes positions. Cette injonction, va avoir de funestes conséquences pour des habitants de Pleubian, qui ont occupé sans coup férir les installations du sémaphore de Po48 Creac’h Maout, laissées vacantes par l'occupant...
-
Période(s)
- Principale : Temps modernes, 17e siècle, 18e siècle
- Secondaire : 2e quart 19e siècle
- (c) Service historique de la Défense
- (c) Service historique de la Défense
- (c) Service historique de la Défense
- (c) Inventaire général, ADAGP
- (c) Association Océanide
- (c) Service historique de la Défense
- (c) Service historique de la Défense
- (c) Archives départementales des Côtes-d'Armor
- (c) Collection particulière
- (c) Collection particulière
- (c) Collection particulière
- (c) Collection particulière
- (c) Collection particulière
- (c) Association Océanide
- (c) Institut national de l'information géographique et forestière
- (c) Service historique de la Défense
- (c) Service historique de la Défense
- (c) Association Océanide
- (c) Association Océanide
- (c) Association Océanide
- (c) Association Océanide
- (c) Association Océanide
- (c) Association Océanide
- (c) Association Océanide
- (c) Association Océanide
- (c) Association Océanide
- (c) Association Océanide
- (c) Association Océanide
- (c) Association Océanide
- (c) Association Océanide
- (c) Association Océanide
- (c) Association Océanide
- (c) Association Océanide
- (c) Association Océanide
- (c) Association Océanide
- (c) Association Océanide
- (c) Collection particulière
Annexes
-
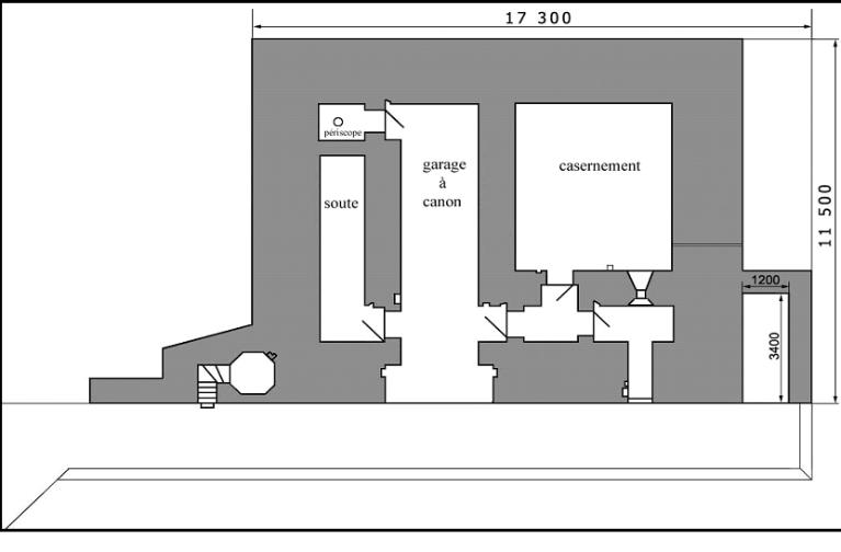
Île à Bois à Lézardrieux : les types des principaux blockhaus de l'ensemble fortifié codé "Po46"
Historien, membre de l'association Océanide.
Historien, membre de l'association Océanide.