Dossier d’œuvre architecture IA22133302 | Réalisé par
  • inventaire topographique, Lannion-Trégor Communauté
Salle des séances dite "salle du conseil" de l'hôtel de ville, boulevard Anatole Le Braz (Tréguier)
Œuvre étudiée

Dossier non géolocalisé

Localisation
  • Aire d'étude et canton Schéma de cohérence territoriale du Trégor - Tréguier
  • Commune Tréguier
  • Adresse 1 boulevard Anatole le Braz

"Ancienne salle capitulaire", "salle synodale", "salle des délibérations", "salle du conseil" ou "salle des séances [comprendre, du conseil municipal]" (inscription de 1923), les appellations sont nombreuses pour cette galerie de l'ancien palais épiscopal de Tréguier dont les boiseries sont datables du début du 18e siècle (1700-1715 ?). Créé en 1923 dans le cadre du centenaire de la naissance d’Ernest Renan (né le 28 février 1823 à Tréguier), le décor peint de la "salle des séances" marque la transformation du palais épiscopal de Tréguier en hôtel de ville. L’intérêt de ce décor en grisaille demeure dans les valeurs et la fierté de l'après-guerre : la reconnaissance de Tréguier aux enfants de Bretagne - devenus de prestigieux personnages historiques - est ici louée en les immortalisant nommément sur les boiseries. Voulu par le maire de Tréguier Gustave de Kerguezec, l’hôtel de ville est inauguré en grande pompe par Raymond Poincaré, président du conseil.

Cette réhabilitation de l’ancien palais épiscopal en hôtel de ville fait partie d’un programme lancé par Gustave de Kerguezec, comprenant notamment le percement en 1921 d’un deuxième passage pour la circulation des automobiles à travers le palais épiscopal (travaux réalisés par l’entrepreneur Étienne Rannou) et l’aménagement de l’actuel boulevard Anatole Le Braz. Des dépendances de l’ancien palais épiscopal dont la "conciergerie" accolée à la cathédrale sont alors rasées. Le porche de l’avant-cour est démonté puis vendu à un particulier (il a été remonté rue Chateaubriand). L’année suivante (2 juillet 1922) est inauguré le monument aux morts réalisé par le sculpteur Francis Renaud installé sur l’ancienne avant-cour du palais épiscopal, actuellement place du Général Leclerc (d’autres équipements municipaux : groupe d'habitations ouvrières, dispensaire anti-tuberculeux, stade des sports sont inaugurés en même temps).

Bien avant le classement au titre des Monuments historiques des façades et toitures des bâtiments de l’ancien évêché de Tréguier en 1954 (partie sud occupée par le presbytère) et en 1956 (aile nord-ouest occupée par la mairie et l’Hôtel Central), c’est la "décoration de la salle des délibérations de l’hôtel de ville de Tréguier (ancienne salle capitulaire des Évêques)" qui est inscrite titre des Monuments historiques le 23 février 1925.

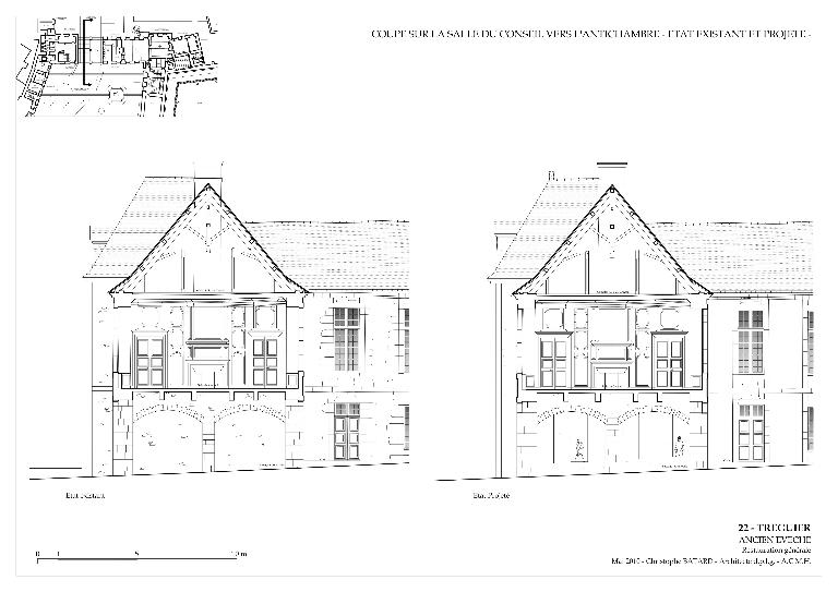
Cette "galerie" ou "salon d’honneur" est située au premier étage du corps principal du palais épiscopal datable du début du 18e siècle (vers 1700 et 1715, sous l'épiscopat de Olivier Jégou de Kervilio, évêque de 1694 à 1731 ?). Elle donnait à la fois sur l’espace privé de l’évêque dit le jardin ou bois de l’évêché (au nord) et sur l'avant-cour ou "cours d'honneur" accueillant les visiteurs après avoir franchi le portail d’entrée (au sud). On y accédait depuis l’avant-cour par un vestibule et un escalier d’honneur. A la suite de cette salle vers l’est se trouvait l’antichambre et la chambre de l’évêque. Sous cette salle se trouvait un passage charretier permettant la communication entre ces deux espaces. La fonction originelle de cette salle n’est pas bien connue : elle servait de "salle synodale" au 18e siècle. Le procès-verbal d’estimation de l’ancien palais épiscopal de Tréguier daté du 24 février 1791 précise : "...pour entrer dans la chambre nommée salle synodale, ouverture carrée ornée de vantaux, à chaque pignon d’icelle une cheminée à jambages et manteau de tailles boisées en toute leur hauteur, en menuiserie. Le contour de la salle aussi boisée, lambrissée, lattée, le tout en bois sapin, éclairée par dix fenêtres carrées en tailles ornées de leur vitrages et volet [...]". Un plan dressé par l’architecte départemental en 1917 montre que cette galerie était cloisonnée sur ses deux travées ouest et abritait alors "une chambre" (sur la longueur de deux travées) et "un magasin" (sur la longueur de trois travées). Un plan de décembre 1922 confirme la présence de ce cloisonnement (Archives communales de Tréguier : 1M2, carton n° 73).

Les biens dits "de l’évêché" sont vendus à la ville de Tréguier en septembre 1921 "dans un but d’utilité générale et d’embellissement de la ville". Gustave de Kerguezec, maire, député des Côtes-du-Nord (de 1906 à 1920) puis sénateur souhaite transformer l’ancien palais épiscopal en "hôtel de ville" (voir l'annexe intitulée "Note à Tréguier", non daté (1922 ?) par le maire Gustave de Kerguezec).

Le projet d'aménagement de l'hôtel de ville est confié à l’architecte départemental des Beaux-Arts Le Fort de Guingamp qui réalise le devis estimatif des travaux le 30 mars 1922 (Archives communales de Tréguier : 1M2, carton n° 73). Le rejointoiement en ciment du vestibule et de l’escalier d’honneur date de cette époque. La salle du conseil est doté d’un plancher en ciment armé et d’un nouveau parquet en chêne, les dix fenêtres à petits bois sont restaurées. L’architecte évoque la "remise en état des lambris chêne" (datables du 18e siècle) et le "remplacement de parties manquantes ou mauvaises", la réfection des cheminée et la peinture de ces lambris, soit 161 m2, pour la somme de 644 francs. Dans le secrétariat de la maire, des enduits sont refaits et on évoque "l’enlèvement de boiseries".

Le 2 septembre 1923, c’est dans le cadre du centenaire de la naissance d’Ernest Renan (né le 28 février 1823 à Tréguier) et de la visite de nombreuses personnalités dont Raymond Poincaré, président du conseil, que l’hôtel de ville de Tréguier est inauguré. Dans la "salle des séances", une inscription sur les boiseries rappelle que la statue d’Ernest Renan sur la place du Martray (réalisée par le sculpteur Jean Boucher) a été inaugurée le 13 septembre 1903 par Émile Combes, président du conseil et ministre de l’Intérieur.

  • Période(s)
    • Principale : 1er quart 18e siècle , (incertitude)
    • Secondaire : 1er quart 20e siècle
  • Dates
    • 1922, daté par source
    • 1923, daté par source

Située dans le corps principal de l'ancien palais épiscopal au premier étage, l’actuelle salle du conseil de la mairie est portée par un plancher en béton armé (sous lequel se trouve un double passage automobile). On y accède, vers l’ouest depuis le vestibule et l’escalier d’honneur, ou depuis l’étage via le secrétariat et le bureau du maire, vers l’est depuis les anciens appartements de l’évêque. Dans le vestibule et l’escalier d’honneur, où les huisseries et boiseries sont actuellement peintes de couleur turquoise, l’imposte de la porte de la salle du conseil porte l’inscription en bronzine : "SALLE DES SEANCES" tandis que celle d’en face porte la mention : "BVREAVX DU SECRETARIAT".

Cette vaste galerie (8 m de largeur par 15 m de longueur environ) est dotée d’un éclairage traversant - cinq fenêtres au nord donnant sur la rivière de Tréguier et l’ancien jardin du palais épiscopal, cinq fenêtres au sud donnant sur la placette recevant le monument aux morts et la cathédrale Saint-Tugdual. De part et d’autre de la pièce se trouve deux cheminées qui confèrent à cette pièce l’aspect d’un salon d’honneur.

Les boiseries en sapin de la "salle des séances" sont peintes en grisaille (clair-obscur) et dotées d’un décor peint dédié à dix-huit enfants de Bretagne et rappelant huit moments importants de l’histoire de Tréguier (voir l’annexe intitulée : Le décor de la "salle des séances" de l'hôtel de ville réalisé en 1923).

Au-dessus de la cheminée orientale et sous le portait de Renan en 1892 peint par Léon Bonnat (l’original du tableau est au musée Renan), on peut lire une citation empruntée à l’œuvre de Ernest Renan (L'avenir de la science, 1848) :

"Le but de l’homme n’est pas le repos,

c’est la perfection intellectuelle et morale.

Il s’agit bien de se reposer quand on a

l’infini à parcourir et le parfait à atteindre !

Aucune erreur ne dure très longtemps".

  • Murs
    • granite maçonnerie
  • Techniques
    • menuiserie
    • peinture
  • Statut de la propriété
    propriété de la commune
  • Protections
    inscrit MH, 1925/02/23
    classé MH, 1954/04/12
    classé MH, 1956/05/31
  • Référence MH

Documents d'archives

  • Mairie ; aménagement dans les locaux de l'ancien palais épiscopal : correspondance, délibérations du conseil municipal, rapport du Conseil général, dossier d’acquisition des bâtiments, plans, soumissions, 1 affiche (1920-1923). Projet de réaménagement des locaux : correspondance, délibération du conseil municipal, devis estimatif, plan (1938). 1920-1938.

    Archives communales de Tréguier : 1M2

Bibliographie

  • BATARD, Christophe (architecte en chef des monuments historiques). Étude préalable à la restauration générale de l'ancien évêché de Tréguier. Annexes : recherche de polychromies par Joël Marie, restaurateur de peintures murales. 2008, 17 p. Étude historique et documentaire réalisée dans ce cadre par Gérard Danet, historien du patrimoine.

    Archives communales de Tréguier
  • BATARD, Christophe (architecte en chef des monuments historiques). Étude préalable à la restauration générale de l'ancien évêché de Tréguier. Rapport de présentation. Juin 2010, 86 p. Étude historique et documentaire réalisée dans ce cadre par Gérard Danet, historien du patrimoine.

    Archives communales de Tréguier
  • THOMAS, Loïc. Gustave de Kerguézec. Un missionnaire de la République. Cesson-Sévigné, édition à compte d'auteur, 2013, 154 p.

Documents figurés

  • Ancien évêché de Tréguier : plan du 1er étage des parties à réparer, plan validé le 22 décembre 1922 par le préfet des Côtes-d'Armor.

    Archives communales de Tréguier : 1M2 (carton n° 73)
  • Plan de localisation des bâtiments de l'ancien évêché de Tréguier et du tracé de nouvelle route départementale à partir du cadastre par l’architecte départemental, à Saint-Brieuc, 10 juin 1917.

    Archives départementales des Côtes-d'Armor : 2-O 362-4-calque - FRAD022_2O362_4_77 (version numérique)
  • Plan du rez-de-chaussée et coupe sur la cour d’honneur de l'ancien évêché de Tréguier, état avant travaux, dressé par l’architecte départemental, 10 juin 1917.

    Archives départementales des Côtes-d'Armor : 2-O 362-4-calque - FRAD022_2O362_4_79 (version numérique)
  • Ancien évêché de Tréguier : plan du 1er étage des parties à réparer, plan validé le 22 décembre 1922 par le préfet des Côtes-d'Armor.

    Archives communales de Tréguier : 1M2 (carton n° 73)

Annexes

  • "Note à Tréguier", non daté (1922 ?) par le maire Gustave de Kerguezec (Archives communales de Tréguier : 1M2, carton n° 73.)
  • Le décor de la "salle des séances" de l'hôtel de ville réalisé en 1923 ( (Joël Marie, restaurateur de peintures murales, 2008 / remise en forme et détails ajoutés par Guillaume Lécuillier, 2017)
Date(s) d'enquête : 2017; Date(s) de rédaction : 2017