Dossier d’œuvre architecture IA22133156 | Réalisé par
  • enquête thématique régionale, patrimoine des sports
Centre nautique de Piégu, 36 quai Célestin Bougle (Pléneuf-Val-André)
Œuvre étudiée
Copyright
  • (c) Hervé Potin et Anne-Flore Guinée

Dossier non géolocalisé

Localisation
  • Aire d'étude et canton Bretagne
  • Commune Pléneuf-Val-André
  • Adresse 38 quai Célestin Bougle
  • Dénominations
    établissement nautique

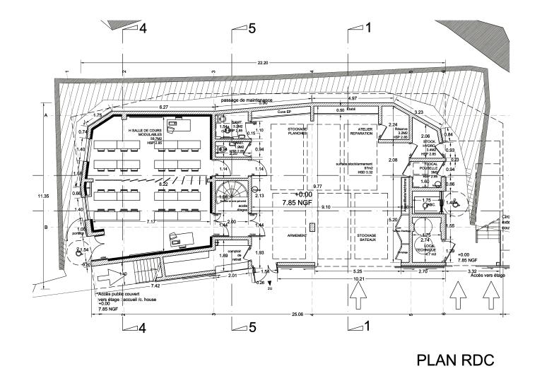
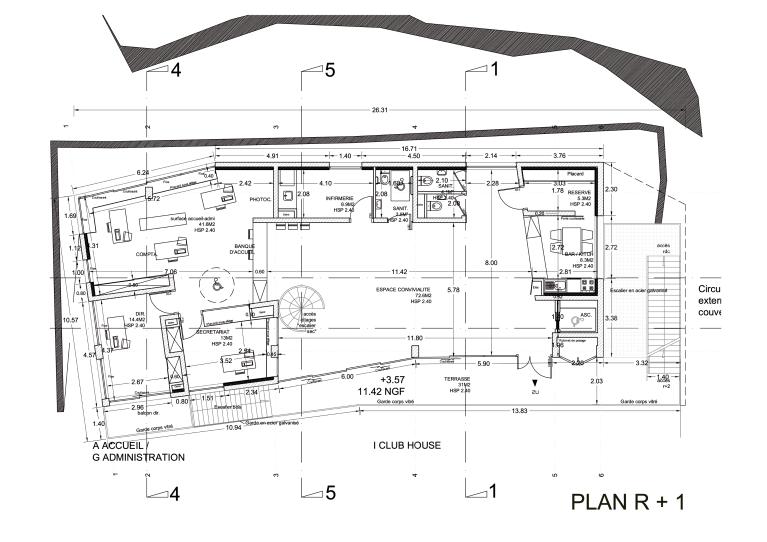
"Sur le site de Piégu, à l'extrémité nord de la plage, sur le quai Célestin Bouglé, s'implante le site du centre nautique dans le "creux" de la falaise. Délimité sur trois faces par les consolidations récentes de la falaise et par un immeuble d'habitation à l'est, le terrain s'ouvre sur le littoral et la grande plage du Val-André, en contrebas. Prenant la mesure du site, le projet superpose trois strates qui déclinent les aspects du contexte, tant urbains que paysagers et programmatiques - une strate en bois au rez-de-chaussée renvoie à l'image portuaire et identitaire du programme "centre nautique".

- Une strate claire, largement vitrée au premier niveau, fait écho au statut balnéaire et ouvert sur l'extérieur de Pléneuf-Val-André.

- Au-dessus, une strate minérale affiche une géométrie propre au site de la falaise et de la pointe de Pléneuf."

http://www.guineepotin.fr/index.php?/pages-projets/base-nautique

En 2006, la création d'une nouvelle base nautique fait l'objet d'un concours, que remporte l'agence Guinée Potin. Les travaux débutent en 2008, et l'équipement est inauguré le 3 avril 2010.

Le centre nautique abrite au rez-de-chaussée une salle de stockage/armement et une salle de cours ; au premier étage, l'accueil, les locaux administratifs et le club house ; au second, les vestiaires-douches.

Projet à Haute Qualité Environnementale (HQE).

  • Murs
    • béton béton armé
    • bois
  • Toits
    végétal en couverture
  • Plans
    plan rectangulaire régulier
  • Statut de la propriété
    propriété de la commune
Date(s) d'enquête : 2016; Date(s) de rédaction : 2016