L'histoire du moulin à marée de Bili-Gwenn témoigne de l'évolution de ce type d'usine au cours des siècles : reconstruit en 1840 à l'emplacement du moulin des seigneurs de Troguéry, agrandi en 1878, en 1882 et après 1890, son architecture est représentative des minoteries du 19e siècle. La qualité du milieu naturel et des infrastructures (quai d'embarquement, murs de soutènement de la rive de l'étang, digue barrant l'étang à marée) ajoute à l'intérêt du site. Mais le plus exceptionnel reste la conservation de la quasi totalité de l'ensemble des machines destinées à la production et la transmission de l'énergie aux appareils qui assuraient la transformation de la matière première en produit fini. L'ensemble de ces critères - historiques, architecturaux, environnementaux, techniques - justifie le classement du moulin de Bili-Gwenn aux Monuments Historiques depuis 1999.
- inventaire topographique, Communauté de communes du Haut Trégor
Dossier non géolocalisé
-
Aire d'étude et canton
Schéma de cohérence territoriale du Trégor
-
Commune
Troguéry
-
Lieu-dit
Bili Gwenn
-
Dénominationsmoulin
-
Parties constituantes non étudiéescolombier, maison, digue, étang, écurie, quai, mur de soutènement
Le moulin à mer de Bili-Gwenn est mentionné pour la première fois, en 1601, dans une déclaration d'héritage de Jean de Kerguezec, seigneur de Troguéry, à la juridiction des Réguaires de Tréguier. L'édifice est figuré sur la Carte des costes de Bretagne (1770-1785) puis sur le cadastre ancien de 1835 sous le nom de moulin du Cosquer. Dressé en 1798 lors du changement de meunier, le procès-verbal d'estimation du moulin permet une restitution précise de l'ancien édifice avant sa reconstruction : moulin et habitation du meunier sont construits en alignement avec écurie située au sud-est, non attenante. Le moulin possède une roue verticale extérieure au pignon ouest et deux meules, un coursier passe sous la chaussée pour aboutir au pignon ouest du moulin.
D'après les matrices cadastrales, le moulin de Bili-Gwenn est vendu en 1840 aux frères Le Goaster, marchands à Tréguier. Ces derniers démolissent le vieux moulin et reconstruisent sur une emprise sensiblement identique. Le nouveau moulin édifié par les Goaster correspond à la partie centrale du corps de bâtiment actuel (la date 1840 figure sur la lucarne centrale). La roue n'est plus au pignon extérieur mais sous le moulin : de verticale, elle devient horizontale, alimentée par le coursier dont l'extrémité est légèrement dévoyée pour laisser libre cours à la roue. La transmission est directement reliée à la rotonde. L'enquête réalisée en 1844 sur les moulins des Côtes-d'Armor indique une production de 753 tonnes de farine par an assurant le travail de trois hommes. Elle précise également que le moulin ne fonctionne que pendant 264 marées par an dont 24 ne mettent en mouvement que deux paires de meules sur les quatre existantes. C'est un des moulins les plus importants de la région, qualifié de minoterie.
En 1871, les frères Le Goaster vendent le moulin à Jean-Marie Tolguen qui fait construire un magasin à grains en 1878, au nord du moulin, en retour d'équerre.
En 1882, le moulin et son entrepôt sont vendus à Edouard Guillon qui construit la maison du meunier dans le prolongement est du moulin. Après 1890, il l'agrandit vers l'ouest sur l'emplacement de l'ancien passage de la roue.
En 1903, la roue est supprimée, remplacée par une turbine métallique placée au fond du puits, en dessous de la rotonde.
En 1921, la turbine initiale est remplacée par une deuxième turbine, désaxée par rapport au centre de la rotonde, après la vente du moulin à Charles Thomas et Yves Le Goff en 1919. Ces derniers poursuivent la modernisation du moulin à partir de 1932 en s'appuyant sur un projet établi par F. Jamet, ingénieur à Rennes représentant les établissements Teisset-Rose-Brault de Chartres. De nouvelles machines sont installées : abrité dans un appentis construit au pignon ouest, un moteur diesel "RUSTON and HORNSBY" entraîne désormais les machines à la place de la turbine. D'importants travaux d'aménagements sont réalisés après 1934 et les dernières machines électriques sont installées en 1939. Le moulin a fonctionné jusqu'en 1989.
-
Période(s)
- Principale : 2e quart 19e siècle, 4e quart 19e siècle, 1er quart 20e siècle, 2e quart 20e siècle
-
Dates
- 1840, porte la date
- 1878, daté par source
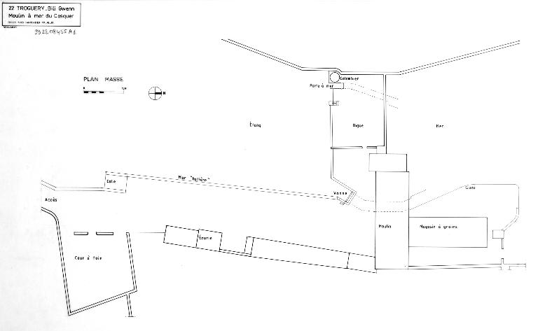
Le moulin de Bili-Gwenn est situé sur la rive droite du Jaudy maritime. Sa digue forme l'étang du Cosquer alimenté par un diverticule du Jaudy et par le ruisseau du Rumain. Le moulin est établi sur d'importants enrochements. L'ensemble du site est composé du moulin proprement dit, du magasin à grain, d'une digue barrant l'étang à marée, d'une aile abritant des dépendances, d'une écurie, d'un pigeonnier.
De plan rectangulaire, le moulin s'élève sur trois niveaux, le dernier sous combles, surélevé en partie centrale. La mise en oeuvre est en moellon de grès schisteux et schistes, les encadrements et chaînes d'angles en pierre de taille de granite. La couverture à deux pans est en ardoise, la surélévation en bâtière du comble côté nord est couverte en tôle ondulée et bardage en fibrociment. La façade sud se compose d'un corps central, à élévation ordonnancée, dont la travée axiale intègre la porte d'entrée et s'achève par un petit fronton triangulaire percé d'une baie en demi-lune. Le corps central est flanqué de deux extensions latérales construites dans un soucis de symétrie avec le même gabarit. Au pignon ouest, un appentis construit en parpaings, couvert en tôles ondulées, abrite les moteurs diesel et électrique.
Le magasin à grains forme une aile rectangulaire, en retour d'équerre sur la façade postérieure nord du moulin, longeant le quai et s'élevant sur deux niveaux plus combles. Les élévations est et ouest sont symétriques et possèdent quatre travées. Le toit à deux pans est couvert en ardoises avec faîtage et arêtiers en zinc.
Le moulin contient l'ensemble des machines destinées à la production et la transmission de l'énergie aux appareils qui assuraient la transformation de la matière première en produit fini. Le plan général de fonctionnement comprend : en partie gauche le stockage des grains dans les silos à blé et les appareils de nettoyage des grains ; en partie centrale les appareils de mouture et de blutage, le boisseau à blé et la chambre à farine pour la mise en sacs ; en partie droite la maison du meunier.
-
Murs
- schiste moellon
- grès moellon
-
Toitsardoise, tôle ondulée, ciment amiante en couverture
-
Étages3 étages carrés
-
Couvrements
-
Élévations extérieuresélévation ordonnancée
-
Couvertures
- toit à longs pans pignon couvert
-
Escaliers
- escalier dans-oeuvre : escalier tournant à retours sans jour en maçonnerie, cage ouverte
-
Statut de la propriétépropriété privée
-
Intérêt de l'œuvreà signaler
-
Protectionsclassé MH, 1999/12/20
-
Précisions sur la protection
Moulin, à l'exclusion de l'aile en retour sud-est (20e siècle), y compris l'ensemble des machines, le magasin à grains en totalité (cad. A1 11), la digue (cad. A1 12) avec son quai d'embarquement (cad. domaine public, non cadastré, proche de la parcelle A1 11 et au nord-ouest de celle-ci), le mur de soutènement de la rive est de l'étang (cad. A1 10) : classement par arrêté du 20 décembre 1999.
-
Référence MH
- (c) Archives départementales des Côtes-d'Armor
- (c) Inventaire général, ADAGP
- (c) Inventaire général, ADAGP
- (c) Inventaire général, ADAGP
- (c) Inventaire général, ADAGP
- (c) Inventaire général, ADAGP
- (c) Inventaire général, ADAGP
- (c) Inventaire général, ADAGP
- (c) Région Bretagne
- (c) Région Bretagne
- (c) Région Bretagne
- (c) Région Bretagne
- (c) Région Bretagne
- (c) Région Bretagne
- (c) Région Bretagne
- (c) Région Bretagne
- (c) Région Bretagne
- (c) Région Bretagne
- (c) Région Bretagne
- (c) Région Bretagne
- (c) Région Bretagne
- (c) Région Bretagne
- (c) Région Bretagne
- (c) Région Bretagne
- (c) Région Bretagne
- (c) Région Bretagne
- (c) Région Bretagne
- (c) Région Bretagne
- (c) Région Bretagne
- (c) Région Bretagne
- (c) Région Bretagne
- (c) Région Bretagne
- (c) Région Bretagne
- (c) Région Bretagne
- (c) Région Bretagne
- (c) Région Bretagne
- (c) Région Bretagne
- (c) Région Bretagne
- (c) Région Bretagne
- (c) Région Bretagne
- (c) Région Bretagne
- (c) Région Bretagne
- (c) Région Bretagne
- (c) Région Bretagne
- (c) Région Bretagne
- (c) Région Bretagne
- (c) Région Bretagne
- (c) Région Bretagne
- (c) Région Bretagne
- (c) Région Bretagne
- (c) Région Bretagne
- (c) Région Bretagne
- (c) Région Bretagne
- (c) Région Bretagne
- (c) Région Bretagne
- (c) Région Bretagne
- (c) Région Bretagne
- (c) Région Bretagne
- (c) Région Bretagne
- (c) Région Bretagne
- (c) Région Bretagne
- (c) Région Bretagne
- (c) Région Bretagne
Documents d'archives
-
Direction régionale des affaires culturelles de Bretagne - CID Documentation du Patrimoine
Ponthaud (de) Marie-Suzanne. Ministère de la Culture er de la Communication. Direction Régionale des Affaires Culturelles de Bretagne. Côtes-d'Armor - Troguéry - Moulin de Bili-Gwenn. Restauration Générale du moulin et des machines de meunerie. Mars 2004
Périodiques
-
NICOLAS, Martine, CHAURIS, Louis, ESCALIER DES ORRES, Pierre. Le moulin à mer de Bili Gwenn en Troguéry (22). Société d'émulation de Côtes d'Armor, tome CXXIX.
Documents figurés
-
Archives départementales des Côtes-d'Armor : Sous-série 3P
Tableau d'assemblage et cadastre parcellaire de Troguéry, 1835. Delaunay (ingénieur-vérificateur), Rochefort (géomètre)
Annexes
-
Ponthaud de, Marie-Suzanne. Ministère de la culture et de la communication. Direction Régionale des Affaires Culturelles de Bretagne. Côtes-d'Armor. Troguéry. Moulin de Bili Gwenn. Restauration Générale du moulin et des machines de meunerie. Mars 2004
dessinateur