Ce dossier, crée en 1996 lors d'une enquête topographique, a été enrichi à l'occasion d'une étude spécifique en 2020. Lors de cette nouvelle investigation, une importante couverture photographique a été réalisée, disponible sur la photothèque. Consultez ici.
- inventaire topographique, Uzel
Dossier non géolocalisé
-
Aire d'étude et canton
Uzel - Uzel
-
Commune
Le Quillio
-
Cadastre
1987
AD
249
-
Dénominationséglise paroissiale
-
VocablesNotre-Dame
-
Parties constituantes non étudiéescalvaire, croix de cimetière, enclos, cimetière
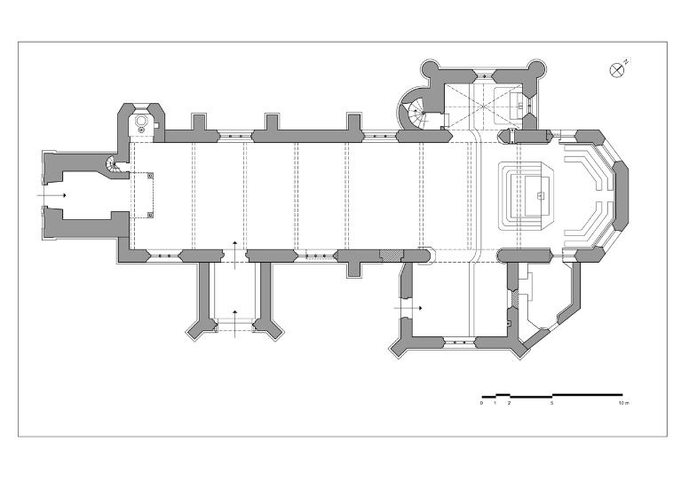
Le Quillio ou Quilliou, démembrement de la paroisse primitive de Merléac, est cité en 1285 dans une donation du vicomte Geoffroy de Rohan. La nef peut remonter à la première moitié du 15e siècle. A partir du 3e quart du 15e siècle d'importants travaux d’embellissement sont réalisés sous le vicomte Jean II de Rohan. L'exceptionnel porche calvaire, au sud de la nef est construit vers 1460-1470. La chapelle sud, consacrée à Notre-Dame de Délivrance, puis à la Vierge du Rosaire, a été datée par une campagne de dendrochronologie appliquée à sa charpente de 1486-1487. Elle a conservé sur son mur oriental les vestiges d'un grand programme pictural des années 1500, centré autour d'une rarissime représentation de la Vierge enceinte.
La chapelle privative de Rohan, au nord du chœur, est reconstruite vers 1510-1520. Seul espace voûté, elle est surmontée de la chambre du trésor dont l'escalier en vis est défendu par une porte blindée. Cette chapelle conserve outre les armes de cette famille sur un culot sculpté tenues par un ange, un très rare dispositif de crédence liturgique traversante communicant directement avec le chœur.
Le calvaire de l'enclos est édifié vers 1530. Des décors peints sont réalisés sur le lambris des fausses voûtes à la fin du 17 siècle, dont ceux redécouverts en 2017 dans la chapelle sud. En 1751, construction de l'imposant clocher-porche à l'ouest et de la chapelle des fonts baptismaux. En 1773, le portail de l'enclos ses piliers et sa belle grille de fer forgé réalisée par G. Ourry forgeron de Grâce-Uzel. En 1791, l'ancien chevet est démoli et remplacé par un nouveau chevet à trois pans destiné à recevoir le mobilier de l'abbaye de Bon Repos racheté par un négociant en toiles de la paroisse.
Vers le milieu du 19e siècle, l'intérieur de l'église fait l'objet d'une importante campagne de décoration. Le décor peint de la fausse voûte lambrissée est réalisé en 1858 par Raphaël Donguy de Saint-Brieuc. Les retables néo gothiques de la chapelle nord et de la chapelle sud par le sculpteur Paul Guibé en 1865 et 1868. Une grande composition peinte sur toile représentant la procession des saints de la Bretagne depuis les origines jusqu'à l'époque moderne est commandée en 1936 au peintre Victor Boner pour orner les cinq pans de murs du chœur.
(Jean-Jacques Rioult. 2020)
Eglise construite à la 2e moitié du 15e siècle (mur sud de la nef et le porche sud). Les bras du transept datent de la 1ère moitié du 16e siècle. Cette campagne de construction des 15e et 16e siècles a été faite pour les Rohan, dont les armes figurent dans le bras nord du transept. La nef a été reprise au 2e quart du 18e siècle (Couffon donne la date de 1733), dont la chapelle des fonts. Le clocher porte la date 1751. Le chœur a été construit en 1791 (porte la date). Remaniement et décoration intérieure vers 1860 (date portée par le lambris de couvrement de la nef). Restauration de la couverture en 1920-1921 par l'architecte Courcoux. Restauration de la couverture vers 1980. La croix du cimetière, côté nord de l'église, ne conserve que son socle qui porte la date 1767. Le calvaire du 17e siècle est étudié en dossier partie constituante.
(Jean-Pierre Ducouret, enquête topographique 1995)
-
Période(s)
- Principale : 2e moitié 15e siècle, 1ère moitié 16e siècle, 2e quart 18e siècle, 3e quart 18e siècle, 4e quart 18e siècle
- Secondaire : 3e quart 18e siècle, 3e quart 19e siècle, 1er quart 20e siècle
- Principale : 1ère moitié 15e siècle , (incertitude)
-
Dates
- 1751, porte la date
- 1767, porte la date
- 1791, porte la date
- 1920, daté par source
-
Auteur(s)
- Auteur : architecte attribution par source
Façade sud en granite pierre de taille ; chapelle nord en schiste ; enduit partiel sur le clocher. Voûte d'ogives sur la chapelle nord Toit conique sur la tour d'escalier nord.
-
Murs
- granite pierre de taille
- schiste moellon
- enduit partiel
-
Toitsardoise
-
Plansplan en croix latine
-
Étages1 vaisseau
-
Couvrements
- lambris de couvrement
- voûte d'ogives
-
Couvertures
- toit à longs pans
- flèche polygonale
- toit conique
- noue
- pignon découvert
-
Escaliers
- escalier hors-oeuvre : escalier en vis sans jour
- en maçonnerie
-
État de conservationrestauré
-
Techniques
- sculpture
-
Représentations
- armoiries
-
Précision représentations
Sujet : armes des Rohan, support : console du bras nord du transept.
-
Statut de la propriétépropriété de la commune
-
Intérêt de l'œuvreà signaler
-
Éléments remarquablesélévation
-
Protectionsclassé MH, 1986/06/10
-
Référence MH
- (c) Conseil général des Côtes-d'Armor
- (c) Région Bretagne
- (c) Région Bretagne
- (c) Région Bretagne
- (c) Région Bretagne
- (c) Région Bretagne
- (c) Région Bretagne
- (c) Inventaire général, ADAGP
- (c) Inventaire général, ADAGP
- (c) Inventaire général, ADAGP
- (c) Inventaire général, ADAGP
- (c) Inventaire général, ADAGP
- (c) Inventaire général, ADAGP
- (c) Inventaire général, ADAGP
- (c) Inventaire général, ADAGP
- (c) Inventaire général, ADAGP
- (c) Inventaire général, ADAGP
- (c) Inventaire général, ADAGP
- (c) Inventaire général, ADAGP
- (c) Inventaire général, ADAGP
- (c) Inventaire général, ADAGP
- (c) Inventaire général, ADAGP
- (c) Inventaire général, ADAGP
- (c) Région Bretagne
- (c) Région Bretagne
- (c) Région Bretagne
- (c) Région Bretagne
- (c) Région Bretagne
- (c) Région Bretagne
- (c) Région Bretagne
- (c) Région Bretagne
- (c) Région Bretagne
- (c) Région Bretagne
- (c) Région Bretagne
- (c) Région Bretagne
- (c) Région Bretagne
- (c) Région Bretagne
- (c) Région Bretagne
- (c) Région Bretagne
- (c) Région Bretagne
- (c) Région Bretagne
- (c) Région Bretagne
- (c) Région Bretagne
- (c) Région Bretagne
- (c) Région Bretagne
- (c) Région Bretagne
- (c) Région Bretagne
- (c) Région Bretagne
- (c) Région Bretagne
- (c) Région Bretagne
- (c) Région Bretagne
- (c) Région Bretagne
- (c) Région Bretagne
- (c) Région Bretagne
- (c) Région Bretagne
- (c) Région Bretagne
- (c) Région Bretagne
- (c) Région Bretagne
- (c) Région Bretagne
- (c) Région Bretagne
- (c) Région Bretagne
- (c) Région Bretagne
- (c) Région Bretagne
- (c) Région Bretagne
- (c) Région Bretagne
- (c) Région Bretagne
- (c) Région Bretagne
- (c) Région Bretagne
- (c) Région Bretagne
- (c) Région Bretagne
- (c) Région Bretagne
- (c) Région Bretagne
- (c) Région Bretagne
- (c) Région Bretagne
- (c) Région Bretagne
- (c) Région Bretagne
- (c) Région Bretagne
- (c) Région Bretagne
- (c) Région Bretagne
- (c) Région Bretagne
- (c) Région Bretagne
- (c) Région Bretagne
- (c) Région Bretagne
- (c) Région Bretagne
- (c) Région Bretagne
- (c) Région Bretagne
- (c) Région Bretagne
- (c) Région Bretagne
- (c) Région Bretagne
- (c) Région Bretagne
- (c) Région Bretagne
- (c) Région Bretagne
- (c) Région Bretagne
- (c) Région Bretagne
- (c) Région Bretagne
- (c) Région Bretagne
- (c) Région Bretagne
- (c) Région Bretagne
- (c) Région Bretagne
- (c) Région Bretagne
- (c) Région Bretagne
- (c) Région Bretagne
Documents d'archives
Bibliographie
-
Région Bretagne (Service de l'Inventaire du patrimoine culturel)
COUFFON, René. Répertoire des Églises et Chapelles du diocèse de Saint-Brieuc et Tréguier. Mémoires de la Société d'Emulation des Côtes-du-Nord. Saint-Brieuc : Les Presses Bretonnes, 1939-1947.
t. II, p. 425-426 -
Région Bretagne (Service de l'Inventaire du patrimoine culturel)
LE SAULNIER DE SAINT-JOUAN, Régis. Dictionnaire des communes du département des Côtes-d'Armor : éléments d'histoire et d'archéologie. Saint-Brieuc : Conseil Général des Côtes-d´Armor, 1990.
p. 594 -
Région Bretagne (Service de l'Inventaire du patrimoine culturel)
TANGUY, Bernard. Dictionnaire des noms de communes, trèves et paroisses des Côtes-d'Armor : origine et signification. Douarnenez : Ar Men-Le Chasse Marée, 1992.
p. 252 -
Région Bretagne (Service de l'Inventaire du patrimoine culturel)
OGEE, Jean. Dictionnaire historique et géographique de la province de Bretagne. Nantes, tome 2, 1779, 552 p.
p. 393 -
Région Bretagne (Service de l'Inventaire du patrimoine culturel)
[Exposition. Ploëzal, Château de la Roche-Jagu, 1991]. Trésors secrets des Côtes-d'Armor : 1000 ans d'Art et d'Histoire. Saint-Brieuc : Conseil général des Côtes-d'Armor, 1991.