• inventaire topographique
  • inventaire topographique, communes riveraines du canal (Nantes à Brest)
Moulin, Beaufort (Josselin)
Œuvre étudiée

Dossier non géolocalisé

Localisation
  • Aire d'étude et canton Pays d'Accueil touristique d'Oust à Brocéliande - Josselin
  • Hydrographies l'); Nantes à Brest Oust
  • Commune Josselin
  • Lieu-dit Beaufort
  • Cadastre 1983 AK 326
  • Dénominations
    moulin
  • Destinations
    demeure
  • Parties constituantes non étudiées
    logis, jardin, pont

Ce dossier correspond à une transcription numérique d’éléments d’enquêtes antérieures à 2000. Tout enrichissement est le bienvenu.

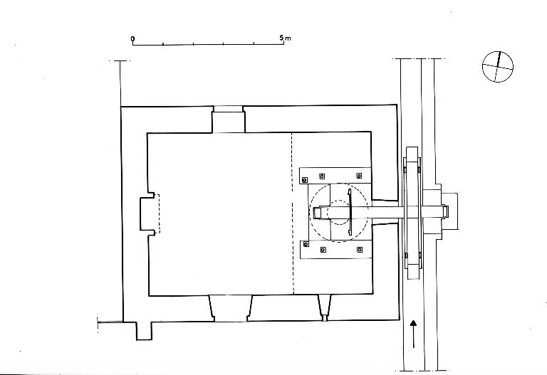
Le moulin de Beaufort, probablement construit au XVIIe siècle, occupe un îlot entouré de deux anciens bras de la rivière délaissés lors de la construction du canal. Agrandi au XIXe siècle, l'ensemble sert désormais de demeure. Le moulin qui servait également de logement au meunier conserve son mécanisme ancien ainsi qu'une roue hydraulique verticale. Les archives font état de sept moulins pour la seule commune de Josselin qui ne compte pourtant guère plus de quatre kilomètres de cours d'eau. Aujourd'hui, seule la minoterie de Saint-Laurent, dont les mécanismes actuels furent mis en place en 1937 par l'ingénieur Jamet de Rennes, est toujours en activité.

(C. Douard)

Moulin probablement construit au 17e siècle. Transformé au 19e siècle. Logis 19e siècle.

  • Période(s)
    • Principale : 17e siècle , (incertitude)
    • Secondaire : 19e siècle

Moulin : toit à longs pans ; logis : croupe.

  • Murs
    • schiste moellon sans chaîne en pierre de taille
  • Toits
    ardoise
  • Étages
    1 étage carré
  • Couvertures
    • toit à longs pans pignon couvert
    • croupe
  • Énergies
    • énergie hydraulique roue hydraulique verticale
  • État de conservation
    restauré
  • Statut de la propriété
    propriété privée

Bibliographie

  • Inventaire général des Monuments et des Richesses Artistiques de la France. Région Bretagne. Canton de Josselin, Morbihan. par Christel DOUARD et Jean-Pierre DUCOURET et al., Rennes : APIB, 1995. (Images du Patrimoine ; n° 148).

    Région Bretagne (Service de l'Inventaire du patrimoine culturel)
    p. 35, fig

Documents figurés

  • JOSSELIN - Moulins de Beaufort. Carte postale, Nantes : Artaud-Nozais, édit., [1er quart 20e siècle].

    Collection particulière
  • JOSSELIN - Les Moulins de Beaufort sur l'Ouest [sic]. Carte postale, [s. l. ; s. n. ; s.d.].

    Collection particulière

Annexes

  • Inventaire topographique sur le canton de Josselin, 1992 :
Date(s) d'enquête : 1992; Date(s) de rédaction : 1992, 1993, 2010
Articulation des dossiers