• inventaire topographique
  • inventaire topographique, communes riveraines du canal (Nantes à Brest)
Maison, 4 rue Olivier de Clisson (Josselin)
Œuvre étudiée

Dossier non géolocalisé

Localisation
  • Aire d'étude et canton Pays d'Accueil touristique d'Oust à Brocéliande - Josselin
  • Commune Josselin
  • Adresse 4 rue Olivier de Clisson
  • Cadastre 1983 AD 91
  • Dénominations
    maison
  • Parties constituantes non étudiées
    écurie, cour, logement, jardin

Ce dossier correspond à une transcription numérique d’éléments d’enquêtes antérieures à 2000. Tout enrichissement est le bienvenu.

À partir de la seconde moitié du 17e siècle, le pan de bois était progressivement délaissé au profit de la pierre.

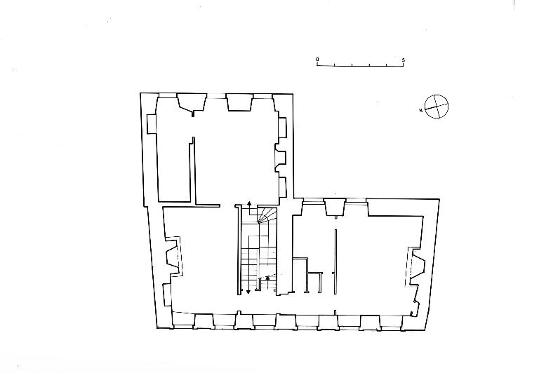
Cette grande demeure avec une élévation à six travées, un escalier dans œuvre tournant en bois et des lambris couvrant la totalité des pièces, date du milieu du 18e siècle. On suppose que Robin de Paimpoul, maire de la ville, l'avait fait rebâtir à partir d'un bâtiment plus ancien dont subsistent des traces. À droite, un passage couvert donnait accès à une cour bordée d'écuries. Le bandeau séparant les niveaux, l'encadrement saillant des baies avec leurs appuis et larmiers, la corniche festonnée et les lucarnes aux frontons alternativement cintrés et triangulaires, concourent à l'homogénéité et à la qualité architecturale de cet édifice, un des rares à Josselin à être entièrement construit en pierre de taille.

(C. Douard)

Logis, écurie et logements construits au 18e siècle englobant un logis du 17e siècle ; lambris et escalier du 18e siècle peut-être aménagés pour Robin de Paimpoul, maire de Josselin ; restaurée en 1811 (date portée sur l'angle sud-ouest du 1er étage).

Logis en pierre de taille de granite ; logement et écurie en moellons de schiste.

  • Murs
    • granite pierre de taille
    • schiste moellon
  • Toits
    ardoise
  • Étages
    1 étage carré, étage de comble
  • Élévations extérieures
    élévation à travées
  • Couvertures
    • toit à longs pans brisés
    • croupe
  • Escaliers
    • escalier dans-oeuvre : escalier tournant à retours avec jour
  • Typologies
    maison d'angle ; mitoyen 1 côté ; charpente upper cruck ; plan double en profondeur ; 6 travées
  • Statut de la propriété
    propriété privée
  • Intérêt de l'œuvre
    à signaler
  • Protections
    inscrit MH partiellement, 1996/02/27
  • Précisions sur la protection

    Logis (cad. AD 91) : inscription par arrêté du 27 février 1996.

  • Référence MH

Bibliographie

  • DU HALGOUËT, Hervé. Par monts et par vaux. Au pays de Josselin. Souvenir du passé et du présent. 1943.

    p. 104
  • Inventaire général des Monuments et des Richesses Artistiques de la France. Région Bretagne. Canton de Josselin, Morbihan. par Christel DOUARD et Jean-Pierre DUCOURET et al., Rennes : APIB, 1995. (Images du Patrimoine ; n° 148).

    Région Bretagne (Service de l'Inventaire du patrimoine culturel)
    p. 60, fig

Annexes

  • Inventaire topographique sur le canton de Josselin, 1992 :
Date(s) d'enquête : 1992; Date(s) de rédaction : 1992, 1993, 2010
Articulation des dossiers