Ce dossier correspond à une transcription numérique d’éléments d’enquêtes antérieures à 2000. Tout enrichissement est le bienvenu.
- inventaire topographique
- inventaire topographique, communes riveraines du canal (Nantes à Brest)
Dossier non géolocalisé
-
Aire d'étude et canton
Pays d'Accueil touristique d'Oust à Brocéliande - Josselin
-
Commune
Guillac
-
Lieu-dit
Saint-Jean-des-Prés
-
Cadastre
1986
ZA
1
-
Dénominationsabbaye
-
Genrede génovéfains
-
VocablesSaint-Jean des Prés
-
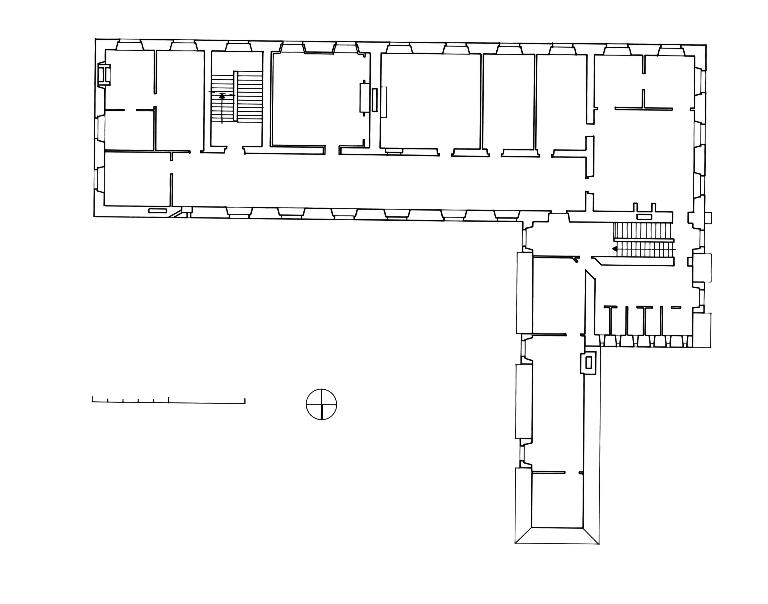
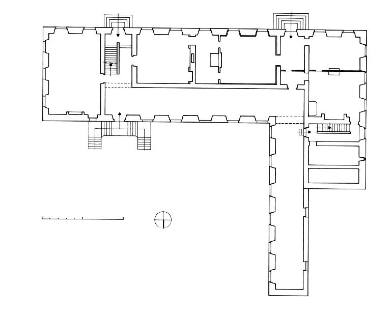
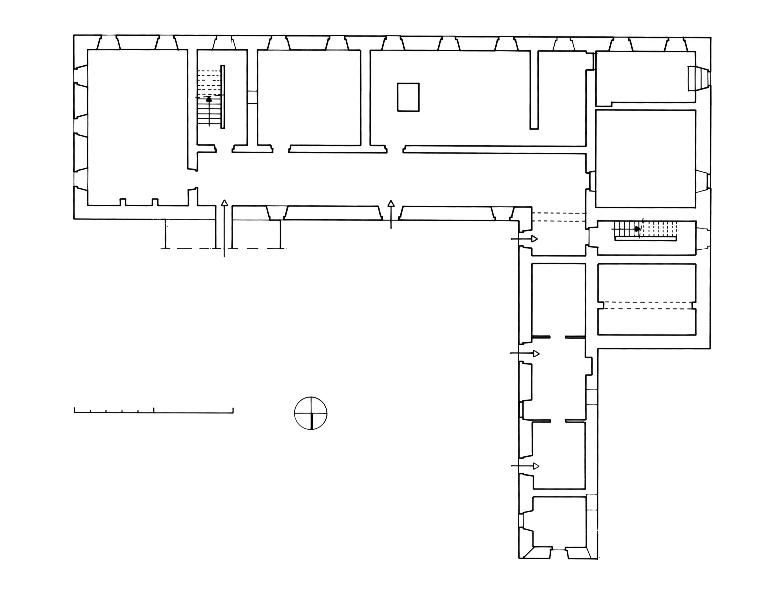
Parties constituantes non étudiéesjardin, cour, four à pain, moulin, église, cloître, dépendance
Abbaye fondée au 12e siècle ; reconstruction au 15e siècle pour l'abbé Robert : inscription en lettres gothiques non déchiffrée remployée en 1682 ; en 1663 union à la congrégation de Sainte-Geneviève et décision de reconstruire les bâtiments, travaux achevés en 1682, inscription : Anno 1682 à Claustris Septemtr ad merid met transtulerunt canonici reg C Gail (l'an 1682, les chanoines, sous l'administration de C. Gail, m'ont transféré du cloître nord au sud) ; travaux en 1770 : potager de la cuisine (porte la date) ; en 1789, reconstruction partielle pour l'abbé du Boisrouvray, interrompue par la Révolution et restauration du corps de logis actuel (façade sur cour) ; en 1791, vente de l'abbaye à Mailhos ; vers 1800, démolition de l'église et de la nouvelle maison abbatiale inachevée ; aménagements intérieurs au cours du 19e siècle et construction des parties agricoles ; armoiries illisibles en face sud du logis.
(J. -P. Ducouret)
L´abbaye fut probablement fondée entre 1130 (1er établissement de Chanoines réguliers en Bretagne à Guingamp) et 1156 (la maison de Josselin existe à cette date) par un vicomte de Porhoët, soit Geoffroi (1116-1142), soit Eudon II (1142-1180). Les chanoines y suivaient la règle de saint Augustin. En 1402, l´abbé Robert [Lescuyer] fait rebâtir les bâtiments et notamment le cloître, comme en témoigne une inscription en lettres gothiques, mal déchiffrée, sur une sablière remployée en 1682. En 1663, l´abbaye s´unit à la Congrégation de France, fondée par le cardinal de la Rochefoucauld, et dont le siège était l´abbaye Sainte-Geneviève de Paris, d´où le nom de Génovéfains que prennent les chanoines. Décision est prise de reconstruire les bâtiments dont les travaux sont partiellement achevés en 1682 ; une inscription sur la même sablière mentionne : Anno 1682 a Claustris Septemtr ad merid met transtulerunt canonici reg C Gail [l'an 1682, les chanoines, sous l'administration de C. Gail, m'ont transféré du cloître nord au sud]. À deux reprises, en 1733 et en 1778, la démolition des anciens bâtiments et leur reconstruction est décidée, mais les travaux jamais réalisés ; seul le moulin de Saint-Jouan, qui dépend de l´abbaye, est reconstruit vers 1750. En 1789, intervient une campagne de construction et de réparation de la maison conventuelle : grand corps de logis à l´exception de l´ancienne cuisine, et au nord, galerie menant à l´église, sur deux niveaux ; cette campagne est exécutée par un entrepreneur de Josselin, Joseph Le Guerson, qui doit reconstruire les bâtiments « à neuf et [...] dans les mêmes proportions et dimensions qu´ils sont actuellement, tant en longueur, largeur, hauteur et épaisseur ; les mêmes largeur et hauteur des ouvertures des portes, fenêtres et cheminées en pierre de grain... » La campagne de travaux est interrompue par la Révolution ; en 1791, vente de l'abbaye, comme bien national à un sieur Mailhos pour 46 300 livres ; vers 1800, l'église consacrée à la Sainte-Trinité est détruite ainsi que la nouvelle maison abbatiale inachevée, les écuries et les fours. Entre 1815 et 1828, une distillerie est installée dans les dépendances ; après 1820, divers travaux sont réalisés dans la galerie nord et les écuries actuelles sont construites ; vers 1840, aménagements intérieurs dans le grand corps de logis et construction des parties agricoles.
(M. -D. Menant)
-
Période(s)
- Principale : 15e siècle , (détruit)
- Principale : 2e moitié 17e siècle
- Principale : 4e quart 18e siècle
-
Dates
- 1663, daté par source
- 1682, porte la date
- 1789, daté par travaux historiques
-
Auteur(s)
- Auteur : commanditaire attribution par source
-
Auteur :
Le Guerson Josephentrepreneur attribution par travaux historiquesLe Guerson JosephCliquez pour effectuer une recherche sur cette personne.
-
Murs
- schiste moellon enduit partiel
- granite
- appareil mixte
-
Toitsardoise
-
Étagessous-sol, 1 étage carré
-
Élévations extérieuresélévation à travées
-
Couvertures
- toit à longs pans pignon couvert
- croupe
-
Escaliers
- escalier dans-oeuvre : escalier tournant à retours sans jour
-
État de conservationvestiges, restauré
-
Techniques
- sculpture
-
Représentations
- armoiries
-
Précision représentations
Armoiries illisibles en face sud du logis.
-
Statut de la propriétépropriété privée
-
Intérêt de l'œuvreà signaler
-
Protectionsclassé MH, 1998/12/03
inscrit MH, 1998/12/03
-
Précisions sur la protection
Façades et toitures des bâtiments 17e siècle, du corps de logis principal et de l'aile en retour d'équerre ; mur de clôture ; portail d'entrée ; les deux escaliers intérieurs (cad. ZA 1) : classement par arrêté du 3 décembre 1998 - Intérieurs (à l'exclusion des deux escaliers classés) (cad. ZA 1) : inscription par arrêté du 3 décembre 1998. Classement 13 09 1990 (façades, toitures, mur de clôture, portail, escalier intérieur) (arrêté) annulé. Inscriptions 16 09 1987 et 08 08 1995 (bâtiment 17e siècle) (arrêtés) annulées.
-
Référence MH
- (c) Inventaire général, ADAGP
- (c) Inventaire général, ADAGP
- (c) Inventaire général, ADAGP
- (c) Inventaire général, ADAGP
- (c) Inventaire général, ADAGP
- (c) Inventaire général, ADAGP
- (c) Inventaire général, ADAGP
- (c) Inventaire général, ADAGP
- (c) Inventaire général, ADAGP
- (c) Inventaire général, ADAGP
- (c) Inventaire général, ADAGP
- (c) Inventaire général, ADAGP
- (c) Inventaire général, ADAGP
- (c) Inventaire général, ADAGP
- (c) Inventaire général, ADAGP
- (c) Inventaire général, ADAGP
- (c) Inventaire général, ADAGP
- (c) Inventaire général, ADAGP
- (c) Inventaire général, ADAGP
- (c) Inventaire général, ADAGP
- (c) Inventaire général, ADAGP
- (c) Inventaire général, ADAGP
- (c) Inventaire général, ADAGP
- (c) Inventaire général, ADAGP
- (c) Inventaire général, ADAGP
- (c) Inventaire général, ADAGP
- (c) Inventaire général, ADAGP
- (c) Inventaire général, ADAGP
- (c) Inventaire général, ADAGP
- (c) Inventaire général, ADAGP
- (c) Inventaire général, ADAGP
- (c) Inventaire général, ADAGP
- (c) Inventaire général, ADAGP
- (c) Inventaire général, ADAGP
- (c) Inventaire général, ADAGP
- (c) Inventaire général, ADAGP
- (c) Inventaire général, ADAGP
- (c) Inventaire général, ADAGP
- (c) Inventaire général, ADAGP
- (c) Inventaire général, ADAGP
- (c) Inventaire général, ADAGP
- (c) Inventaire général, ADAGP
- (c) Inventaire général, ADAGP
- (c) Inventaire général, ADAGP
- (c) Inventaire général, ADAGP
- (c) Inventaire général, ADAGP
- (c) Inventaire général, ADAGP
- (c) Inventaire général, ADAGP
- (c) Inventaire général, ADAGP
- (c) Inventaire général, ADAGP
- (c) Inventaire général, ADAGP
- (c) Inventaire général, ADAGP
- (c) Inventaire général, ADAGP
Bibliographie
-
Région Bretagne (Service de l'Inventaire du patrimoine culturel)
DUHEM, Gustave. Les églises de France. Morbihan. Paris : Librairie Letouzey et Aîné, 1933.
p. 60 -
Région Bretagne (Service de l'Inventaire du patrimoine culturel)
Inventaire général des Monuments et des Richesses Artistiques de la France. Région Bretagne. Canton de Josselin, Morbihan. par Christel DOUARD et Jean-Pierre DUCOURET et al., Rennes : APIB, 1995. (Images du Patrimoine ; n° 148).
p. 30, fig
Photographe