Le logis du Vaugace à Saint-Marcel témoigne d'une forme d'habitat manorial sans doute très ancienne. Le rez-de-chaussée surélevé était divisé par une cloison en pan de bois, qui séparait la salle d'un cellier. En façade, un escalier extérieur conduisait aux pièces de l'étage par une coursière en encorbellement comme en témoigne la porte haute. Le style des baies, en particulier la construction des portes, et, à l'intérieur, les cheminées, attestent le début du 15e siècle. À une époque ultérieure, la coursière fut supprimée, l'escalier reconstruit et la pente du toit modifiée. Le manoir a été restauré et la coursière rétablie depuis quelques années.
- inventaire topographique
- inventaire topographique, Communauté de Communes du Val d'Oust et de Lanvaux
Dossier non géolocalisé
-
Aire d'étude et canton
Communes riveraines du canal de Nantes à Brest - Malestroit
-
Commune
Saint-Marcel
-
Lieu-dit
le Vaugace
-
Dénominationsmanoir
La seigneurie du Vaugace est détenue en 1426 par Jehan Salmon. Il est peut-être à l'origine de la construction du manoir qui présente des particularités architecturales de ce début du 15e siècle. Lors de la réformation (recensement de la noblesse) de 1513, la seigneurie appartenait à Olivier Vivien, receveur des fouages pour l'évêché de Vannes ; à celle de 1536, elle appartient à Gilles de la Lande et à Gillette de Lesernan. Elle passe ensuite dans la famille Lucas de Peslouan jusqu'à la fin du 18e siècle. Au 19e siècle, le manoir est entre les mains d'Edmond Rialan, notaire à Ploërmel. Déclassé en ferme et laissé peu à peu à l'abandon, il a récemment bénéficié d'une restauration au cours de laquelle a été remise en place la coursière en encorbellement qui permettait la circulation à l'étage.
(M. -D. Menant)
-
Période(s)
- Principale : 1ère moitié 15e siècle
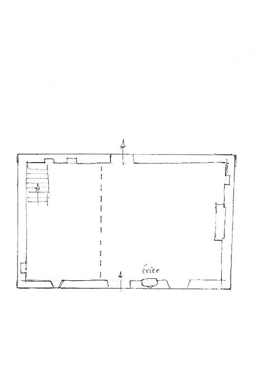
Logis avec coursière suspendue en façade et porte haute. Ancien escalier et galerie supprimés à une date incertaine. Charpente remaniée.
-
Murs
- granite
- schiste moellon
-
Toitsardoise
-
Étages1 étage carré
-
Couvertures
- toit à longs pans pignon couvert
-
Typologiescoursière en encorbellement ; logis à deux pièces par niveau ; évier ; boulins de pigeonnier
-
État de conservationrestauré
-
Statut de la propriétépropriété privée
- (c) Région Bretagne
- (c) Conseil général du Morbihan
- (c) Région Bretagne
- (c) Inventaire général, ADAGP
- (c) Région Bretagne
- (c) Région Bretagne
- (c) Région Bretagne
- (c) Région Bretagne
- (c) Région Bretagne
- (c) Région Bretagne
- (c) Région Bretagne
- (c) Région Bretagne
- (c) Région Bretagne
- (c) Région Bretagne
- (c) Région Bretagne
- (c) Inventaire général, ADAGP
- (c) Région Bretagne
- (c) Inventaire général, ADAGP
- (c) Région Bretagne
- (c) Inventaire général, ADAGP
- (c) Région Bretagne
Bibliographie
-
Région Bretagne (Service de l'Inventaire du patrimoine culturel)
MENANT, Marie-Dominique, RIOULT, Jean-Jacques. Canton de Malestroit, Morbihan. Rennes : Institut culturel de Bretagne, 1989. (Images du Patrimoine ; n° 60).
p. 27, fig -
Région Bretagne (Service de l'Inventaire du patrimoine culturel)
Inventaire général des Monuments et des Richesses Artistiques de la France. Région Bretagne. Le manoir en Bretagne. 1380-1600. par Christel DOUARD, Jean-Pierre DUCOURET, Marie-Dominique MENANT, Jean-Jacques RIOULT, Catherine TOSCER [et al.]. Paris : Imprimerie Nationale éditions et Inventaire général, 1993, rééd. 1999 (Cahiers de l'Inventaire ; n° 28).
p. 154-161, 196, fig -
Région Bretagne (Service de l'Inventaire du patrimoine culturel)
MAHEO, Patrick. Saint-Marcel. Haut lieu de la Résistance Bretonne. Rennes : Rue des Scribes Editions, 1997.
p. 71-73, fig
Documents figurés
-
Archives départementales du Morbihan : 3 P 268/6
Saint-Marcel. Cadastre napoléonien, section C2 de Sainte-Geneviève. Levée par M. Louaisel-Dupaty, géomètre du cadastre, 1824, échelle 1:2500 e.