Corpus des œuvres du dossier : Les maisons et les fermes de la commune d'Augan (IA00009011) 11 dossiers
Dossier
Dossier IA00009032
| Réalisé
par
-
-
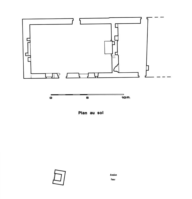
Ferme, la Ville Cadio (Augan)
Tugores Marie-Madeleine
(Contributeur)
-
Tugores Marie-Madeleine
Cliquez pour effectuer une recherche sur cette personne.