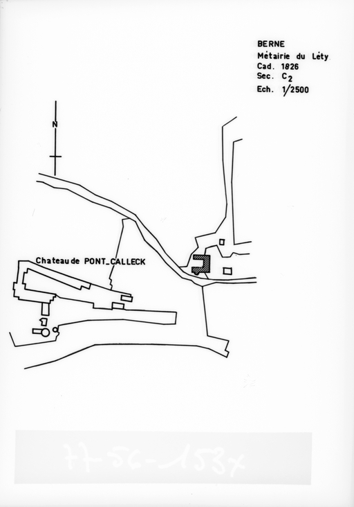
La métairie du Léty, dépendant du château de Pont-Callec et probablement construit à l'initiative d'Alain de Guer, devenu marquis de Pont-Callec en 1657, est un exemple très précoce de ferme concertée et d'organisation rationnelle des fonctions à l’intérieur de la cour. Sans parler de ferme modèle, conception qui n'apparaît que deux cents ans plus tard, elle préfigure cette notion en individualisant le logis des fonctions proprement agricoles. (C. Toscer)
- étude d'inventaire, canton du Faouët
- étude d'inventaire, Vallée du Scorff
Dossier non géolocalisé
-
Aire d'étude et canton
Faouët (Le) - Faouët (Le)
-
Commune
Berné
-
Lieu-dit
Léty (le)
-
Cadastre
1826
C2
874
-
Dénominationsferme
-
Parties constituantes non étudiéescour, puits, étable à vaches
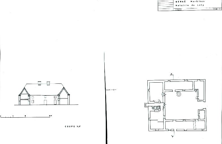
Un aveu de 1680 rendu par Charles René De Guer, seigneur de Pont-Callec, mentionne l'existence de "la métairie noble du Leatti dépendant dudit marquizat (de Pontcallec)." Cet édifice homogène a été construit dans la 2e moitié du 17e siècle, probablement pour Alain de Guer, marquis de Pont-Callec en 1657. On note des reprises dans les murs est et ouest des communs, sans doute effectuées lors de la construction des soues après 1826 (elles ne figurent pas sur le plan cadastral à cette date). Quelques ouvertures horizontales sont percées dans le mur extérieur de l'étable est au milieu du 20e siècle. Depuis 1826, le four à pain intégré dans l'aile de communs est dont le cul de four se voit sur le plan cadastral a été détruit. (C. Toscer)
-
Période(s)
- Principale : 2e moitié 17e siècle
Construit en moellon régulier de granite, l'édifice adopte un plan en U fermé au sud par un mur d'enclos avec portail axial limité par deux piliers, mur d'enclos auquel s'adosse deux dépendances (soue, crèche ?) couvertes en appentis.
Le logis orienté au sud occupe le côté nord de la cour. L'intérieur est divisé par deux mur de refends qui déterminent un couloir désaxé. De ce couloir part un escalier à une volée droite en granite qui dessert le comble. Dans ce même couloir est percé une armoire murale en plein cintre avec saloir. Chacune des pièces contient une cheminée en granite à consoles en quart de rond.
Les communs en retour, à comble à surcroît ne sont pas divisés intérieurement.
A l'est de la cour est édifié un puits en moellon à superstructure (jambages et traverses) monolithe en granite.
-
Murs
- granite
- moellon
-
Toitsardoise
-
Plansplan régulier
-
Étages1 étage carré
-
Élévations extérieuresélévation à travées
-
Couvertures
- toit à longs pans
- croupe
- noue
- appentis
-
Escaliers
- escalier dans-oeuvre : escalier droit en maçonnerie
-
Typologiescour fermée ; puits morbihannais
-
Statut de la propriétépropriété privée
-
Intérêt de l'œuvreà signaler
- (c) Inventaire général, ADAGP
- (c) Archives départementales du Morbihan
- (c) Inventaire général, ADAGP
- (c) Inventaire général, ADAGP
- (c) Inventaire général, ADAGP
- (c) Inventaire général, ADAGP
- (c) Inventaire général, ADAGP
- (c) Inventaire général, ADAGP
- (c) Inventaire général, ADAGP
- (c) Inventaire général, ADAGP
- (c) Inventaire général, ADAGP
- (c) Inventaire général, ADAGP
- (c) Inventaire général, ADAGP
- (c) Inventaire général, ADAGP
- (c) Inventaire général, ADAGP
- (c) Inventaire général, ADAGP
- (c) Inventaire général, ADAGP
- (c) Inventaire général, ADAGP
- (c) Région Bretagne
Documents d'archives
-
Archives départementales d'Ille-et-Vilaine : 1F 739
AD 35. 1 F 739, Fonds la Borderie. Copie d'un aveu du 23 mai 1680 pour la seigneurie de Pont-Calleck rendu par Charles- René de Guer.
Bibliographie
-
Inventaire général de monuments et richesse artistiques de la France. Vallée du Scorff : Bretagne. Images du Patrimoine, n°196 , Rennes, APIB, 2000.
p.22 -
RÉGION BRETAGNE. Service de l'Inventaire du patrimoine culturel. COLLECTIF. Architecture rurale en Bretagne. 50 ans d'inventaire du patrimoine. Editions Lieux-dits. 2014.
p. 122 -
Le patrimoine des communes du Morbihan. Paris : Flohic éditions, 2000. (Le patrimoine des communes de France).
p. 262
Photographe