Ce dossier correspond à une transcription numérique d’éléments d’enquêtes antérieures à 2000. Tout enrichissement est le bienvenu.
Dossier d’œuvre architecture IA00008414
| Réalisé par
;
;
;
- étude d'inventaire
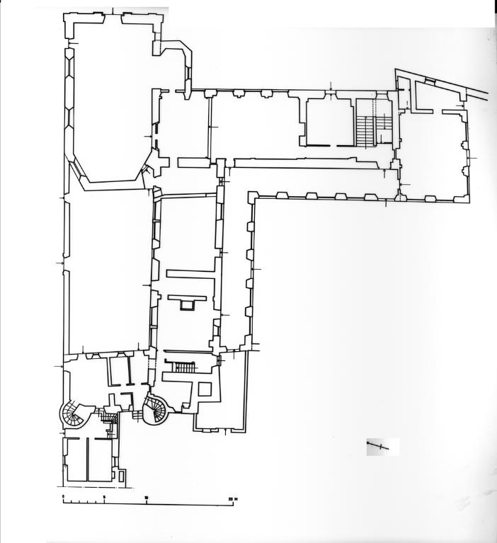
Couvent du Sacré Cœur, Congrégation enseignante des Sœurs de Kermaria, rue de Quimper (Le Faouët)
Œuvre étudiée
Auteur
Dossier non géolocalisé
Localisation
-
Aire d'étude et canton
Faouët (Le) - Faouët (Le)
-
Commune
Le Faouët
-
Adresse
rue de Quimper
,
rue de Saint Fiacre
-
Cadastre
-
Dénominationscouvent
-
Genred'ursulines
-
Parties constituantes non étudiéeschapelle, cour, cloître, logement
Fondation en 1658 par Sébastien du Fresnay ; édifice construit 2e moitié 17e ; corps de bâtiment nord achevé en 1679 ; autres corps achevés en 1697 ; portail construit en 1757 ; remaniements en 1866 (corps de bâtiment est ?) ; intérieur modernisé.
-
Période(s)
- Principale : 2e moitié 17e siècle
- Secondaire : 3e quart 18e siècle
-
Dates
- 1757, porte la date
-
Murs
- granite
- enduit partiel
- pierre de taille
-
Toitsardoise
-
Étages2 étages carrés, 1 vaisseau
-
Couvrements
- lambris de couvrement
-
Élévations extérieuresélévation à travées
-
Couvertures
- toit à longs pans
- pignon découvert
- pignon couvert
- croupe
- noue
-
Escaliers
- escalier dans-oeuvre
- escalier demi-hors-oeuvre : escalier en vis sans jour
-
Statut de la propriétépropriété d'une association cultuelle
-
Protectionsinscrit MH, 1987/12/03
-
Référence MH
- (c) Inventaire général, ADAGP
- (c) Inventaire général, ADAGP
- (c) Inventaire général, ADAGP
- (c) Inventaire général, ADAGP
- (c) Inventaire général, ADAGP
- (c) Inventaire général, ADAGP
- (c) Inventaire général, ADAGP
- (c) Inventaire général, ADAGP
- (c) Inventaire général, ADAGP
- (c) Inventaire général, ADAGP
- (c) Inventaire général, ADAGP
- (c) Inventaire général, ADAGP
- (c) Inventaire général, ADAGP
- (c) Inventaire général, ADAGP
- (c) Inventaire général, ADAGP
- (c) Inventaire général, ADAGP
- (c) Inventaire général, ADAGP
- (c) Inventaire général, ADAGP
Date(s) d'enquête :
1965;
Date(s) de rédaction :
1965,
1969
Cadiou Jacqueline
Cadiou Jacqueline
Cliquez pour effectuer une recherche sur cette personne.
Articulation des dossiers