Ce dossier correspond à une transcription numérique d’éléments d’enquêtes antérieures à 2000. Tout enrichissement est le bienvenu.
Dossier d’œuvre architecture IA00008216
| Réalisé par
;
- étude d'inventaire
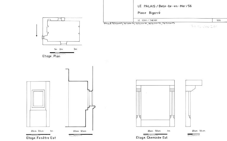
Maison, 13 place Bigarré (Le Palais)
Œuvre étudiée
Auteur
Dossier non géolocalisé
Localisation
-
Aire d'étude et canton
Belle-Ile-en-Mer - Belle-Ile-en-Mer
-
Commune
Le Palais
-
Adresse
13 place Bigarré
-
Cadastre
1968
AB
330
-
Dénominationsmaison
-
Période(s)
- Principale : milieu 17e siècle
-
Murs
- schiste
- revêtement
-
Toitsardoise
-
Étages1 étage carré
-
Couvertures
- toit à longs pans
- pignon couvert
-
État de conservationmauvais état
-
Statut de la propriétépropriété privée
- (c) Inventaire général, ADAGP
- (c) Inventaire général, ADAGP
- (c) Inventaire général, ADAGP
- (c) Inventaire général, ADAGP
- (c) Inventaire général, ADAGP
- (c) Inventaire général, ADAGP
- (c) Inventaire général, ADAGP
- (c) Inventaire général, ADAGP
Date(s) d'enquête :
1973;
Date(s) de rédaction :
1973,
1974
Le Louarn Geneviève
Le Louarn Geneviève
Cliquez pour effectuer une recherche sur cette personne.
Dossiers de synthèse
Articulation des dossiers