• inventaire topographique, Miniac-sous-Bécherel
Manoir, Lessart (Miniac-sous-Bécherel)
Œuvre étudiée

Dossier non géolocalisé

Localisation
  • Aire d'étude et canton Rennes Métropole - Bécherel
  • Commune Miniac-sous-Bécherel
  • Lieu-dit Lessart
  • Cadastre 1980 B1 48, 49
  • Dénominations
    manoir
  • Parties constituantes non étudiées
    cour, logement

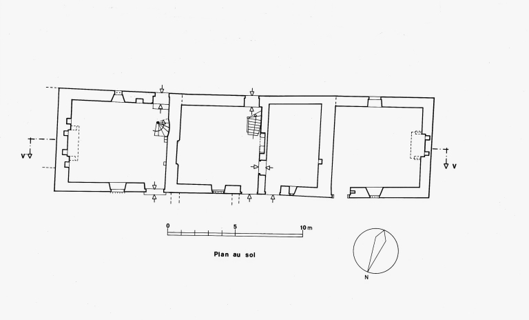
Situé au nord-ouest du bourg près de la retenue d’eau du moulin de Bécherel, le manoir de Lessart date de la 2e moitié du 17e siècle comme l’atteste la date 1655 portée sur la lucarne du logis est (date qui n’est plus lisible). L’accès au manoir se fait par un porche ménagé dans un alignement de dépendances ancien faisant face à l’alignement des logis. La cour redivisée en deux par des remises lors de la 2e moitié du 19e siècle était à l’origine fermée du côté ouest, comme le montre le cadastre de 1825. L’alignement des trois logis construits de 1655 (date de celui le plus à l’est) jusqu’en 168? (date peu lisible sur celui le plus à l’ouest) peu remaniés, celui du milieu a souffert de sa transformation en dépendance dans la 2e moitié du 19e siècle lors de la redivision de l’exploitation (pente de toit changée, souche de cheminée supprimée et remise venant buter contre sa façade). Suite au rescindement de l’édifice, l’aile qui fermait la cour à l’ouest a été supprimée et l’on a construit un nouveau logis orienté au sud.

Au 19e siècle, le manoir de Lessart appartient à trois propriétaires différents : le logis est à Jean- Baptiste Bellier du Verger, également propriétaire du manoir de la Croix Courte ; la partie centrale à Jean Touault, laboureur à Lessart ; le logis ouest à François Le Roux, rentier à Bécherel, qui le vend à Jean Touault en 1854.

  • Période(s)
    • Principale : 3e quart 17e siècle
  • Dates
    • 1655, porte la date

Bâti sur un plan carré, le logis est se compose d’un rez-de-chaussée, d’un étage et d’un étage sous combles. Construite en moyen appareil de granite assisé, la façade principale orientée nord est percée par cinq ouvertures : deux en rez-de-chaussée (une porte à linteau droit sous arc de décharge plein cintre et une fenêtre dotée d’une grille ouvragée en saillie) ; trois aux étages (une deuxième fenêtre dotée d’une grille ouvragée en saillie, un jour doté d’un barreau et une lucarne à fronton en pierre de taille ouvragée). L’emplacement des baies définit une élévation à travées. Le pignon est, contre lequel vient s’appuyer une extension en bauge, est en moellons de granite et percé d’une baie. La façade postérieure, composée en moyen appareil de granite, est percée par quatre ouvertures : deux en rez-de-chaussée (une porte à linteau droit sous arc de décharge plein cintre et une fenêtre dotée d’une grille) ; deux à l’étage dont une deuxième fenêtre dotée d’une grille ouvragée en saillie. L’arase des murs est constituée de corbelets moulurés supportant corniche, tous deux en calcaire. La couverture est en ardoises fixées aux crochets ; l’étanchéité du faîtage est assurée par des tuiles faîtières maçonnées à la chaux. À noter également que le pignon est dispose toujours de ses chevronnières qui témoignent d’une couverture antérieure en chaume. Les deux pignons soutiennent chacun une souche de cheminée en pierres maçonnées.

Bâti sur un plan rectangulaire, le logis central se compose d’un rez-de-chaussée, d’un étage et d’un comble. Construite en moellons de granite, la façade principale orientée nord est percée par six ouvertures : quatre en rez-de-chaussée dont deux portes à linteau droit sous arc de décharge plein cintre et un jour ; deux à l’étage (un jour et une fenêtre dotée d’une grille partiellement obstruée par le passage du rampant de la dépendance). Les pignons mitoyen sont aveugles. La façade postérieure, composée en moellons de granite, est percée par deux ouvertures : une porte en rez-de- chaussée surmontée d’une gerbière. L’arase des murs est constituée de corbelets en bois équarri supportant cache-moineau. La couverture est en ardoises fixées aux crochets ; l’étanchéité du faîtage est assurée par un semblant de lignolet. Aucune souche de cheminée pour ce logis.

Bâti sur un plan carré, le logis ouest se compose d’un rez-de-chaussée et d’un comble. Construite en moellon de granite, la façade principale orientée nord est percée par deux ouvertures (une porte à linteau clavé sous arc de décharge plein cintre et une fenêtre dotée d’une grille). Le pignon ouest aveugle, composé en moellons de granite, soutient une souche de cheminée en pierres maçonnées. La façade postérieure, également composée en moellons de granite, est percée par deux ouvertures : une porte en rez-de-chaussée obstruée en partie basse et surmontée d’une gerbière. L’arase des murs de la façade nord est constituée de corbelets moulurés supportant corniche, tous deux en calcaire. La couverture est en ardoises fixées aux crochets ; l’étanchéité du faîtage est assurée par des tuiles faîtières mécaniques. À noter que le pignon ouest dispose toujours de chevronnières qui témoignent d’une couverture antérieure en chaume.

Bâti sur un plan rectangulaire, la maison construite dans la 2e moitié du 19e siècle se compose d’un rez-de-chaussée, d’un étage et d’un comble. Construite en moellons de granite, la façade principale orientée sud est percée par sept ouvertures : quatre en rez-de-chaussée dont une porte ; trois à l’étage dont une gerbière. Le pignon est, composé de moellons de granite en rez-de-chaussée et en bauge en partie supérieure, est percée d’une porte. Le pignon ouest soutient un appentis en bauge. La façade postérieure, composée de moellons de granite en rez-de-chaussée et en bauge en partie supérieure, est percée par trois ouvertures : une fenêtre en rez-de-chaussée ; une fenêtre et un jour à l’étage. L’arase des murs est constituée de corbelets en bois équarri supportant cache-moineau. La couverture est en ardoises fixées pour son versant nord et en matériau synthétique (amiante) pour son versant sud ; l’étanchéité du faîtage est assurée par des tuiles faîtières mécaniques. Les deux pignons soutiennent chacun une souche de cheminée, en brique à l’est et en ciment à l’ouest.

Le manoir de Lessart dispose d’une grande dépendance en forme de ’T’ délimitant deux cours. Le four à pain, situé autrefois à l’est de la propriété, a aujourd’hui disparu. Une autre dépendance en bauge, possiblement fournil, se situe au sud du manoir.

Le manoir de Lessart a fait l’objet de quelques modifications ces dernières années. Les photographies réalisées à l’occasion du recensement de 1984-1985 attestent du remplacement des deux souches de cheminées sculptées en calcaire du Quiou. À remarquer également, le comblement de deux ouvertures en façade sud et le percement de deux autres pour le logis est.

Cet ensemble, malgré ses remaniements est remarquable, en particulier par la structure des portes à arc de décharge. Celle du logis ouest est dotée d’un linteau clavé surmonté d’une pierre démaigrie. Ce type de porte intermédiaire est un témoignage rare du passage de la porte plein cintre à la porte à linteau droit.

  • Murs
    • granite
    • calcaire
    • moellon
    • pierre de taille
  • Toits
    ardoise
  • Étages
    en rez-de-chaussée, 1 étage carré
  • Élévations extérieures
    élévation à travées
  • Couvertures
    • toit à longs pans
    • pignon découvert
    • pignon couvert
  • Escaliers
  • Typologies
    ancienne cour fermée ; alignement ; armoire murale
  • Statut de la propriété
    propriété privée
  • Intérêt de l'œuvre
    à signaler

Annexes

  • Informations complémentaires : dossier d'archivage de 1984 :
Date(s) d'enquête : 1986; Date(s) de rédaction : 2016
Articulation des dossiers