• inventaire topographique
  • inventaire topographique, L'Hermitage
Manoir du Boberil (L'Hermitage)
Œuvre étudiée

Dossier non géolocalisé

Localisation
  • Aire d'étude et canton Rennes Métropole - Mordelles
  • Commune L'Hermitage
  • Lieu-dit le Boberil
  • Cadastre ?
  • Dénominations
    manoir
  • Parties constituantes non étudiées
    colombier, fossé

Ancien logis construit du 14e au 16e siècle. Précédé d'un porche rare en charpente, du 16e ou 17e siècle, pavillon sur façade arrière détruit. (1986, Service régional de l'Inventaire de Bretagne)

Le manoir du Boberil est bâti à l’extrême sud de la commune de L’Hermitage, à l’écart de l’église paroissiale. Il est érigé à la fin du 14e siècle par la famille du Boberil qui détient ce fief depuis 1284 jusqu'à nos jours. Cette famille d'ancienne extraction chevaleresque, proche de la cour des ducs s’impose dès les 14 et 15e siècles sur l’ensemble du territoire à l’ouest de Rennes.

En 1578, la terre du Boberil est érigée en châtellenie par Henri III en faveur de Vincent du Boberil qui réside alors au château du Molant à Bréal-sous-Montfort. Cette promotion s’accompagne de nombreux aménagements sur le manoir. L’entrée de la cour reçoit un logis porte construit en terre (aujourd’hui disparu), ainsi qu’une fuie au nord du logis (symbole de la puissance seigneuriale). Un pavillon de deux étages à pans-de-bois, accolé au sud du logis principal, est construit pour accueillir le seigneur et recevoir les invités. Un châpitreau en bois, mentionné dans un aveu de 1609, protège l’entrée principale. Il serait pour certains, un ajout du 16e siècle et pour d’autres, un élément beaucoup plus ancien. Une étude dendrochronologique date les bois du 14e siècle, mais la structure est composée de nombreux bois de réemploi.

Enfin, une grange située au nord-est du manoir est construite à cette même période. Citée et décrite dans le même aveu de 1609, elle est composée de bauge en partie basse et d’adobe en caillebottis en partie haute. Elle serait la plus ancienne grange en terre recensée à ce jour en Ille-et-Vilaine. L’ensemble de ces modifications atteste d'un changement de destination du manoir qui devient principalement, au 17e siècle, une métairie. La famille du Boberil ayant transféré sa résidence au Molantoù elle s'est fait construire un nouveau manoir, ne réside que temporairement au Boberil. Elle habite plus particulièrement le pavillon, qui est indépendant avec le reste de l’édifice.

Le logis principal, à salle basse sous charpente, est alors plafonné pour créer un comble pour entreposer les récoltes produites. À partir de là, la cohabitation dans le bâtiment entre le fermier et le propriétaire apparaît nettement. D’autres travaux sont effectués sur l’édifice, notamment dans les années 1770-1780. Le logis principal perd en superficie à la suite de la reconstruction du pignon ouest, fragilisé par une lézarde conséquente. Au 19e siècle, l’utilisation agricole de plus en plus intensive du manoir mène à la construction d’une autre dépendance en terre à l’est de l’édifice. Elle est construite après 1829, car elle n’apparaît pas sur le cadastre Napoléonien. Détruite par un incendie en 1960, le pignon est du logis principal est le seul témoin de cette extension.

Aujourd’hui, le manoir est ni hors d’eau, ni hors d’air. Un important programme de restauration est actuellement en cours pour lui rendre son aspect du début du 17e siècle.

  • Période(s)
    • Principale : 14e siècle
    • Principale : 15e siècle
    • Principale : 16e siècle
    • Principale : 16e siècle
    • Principale : 17e siècle , (incertitude)

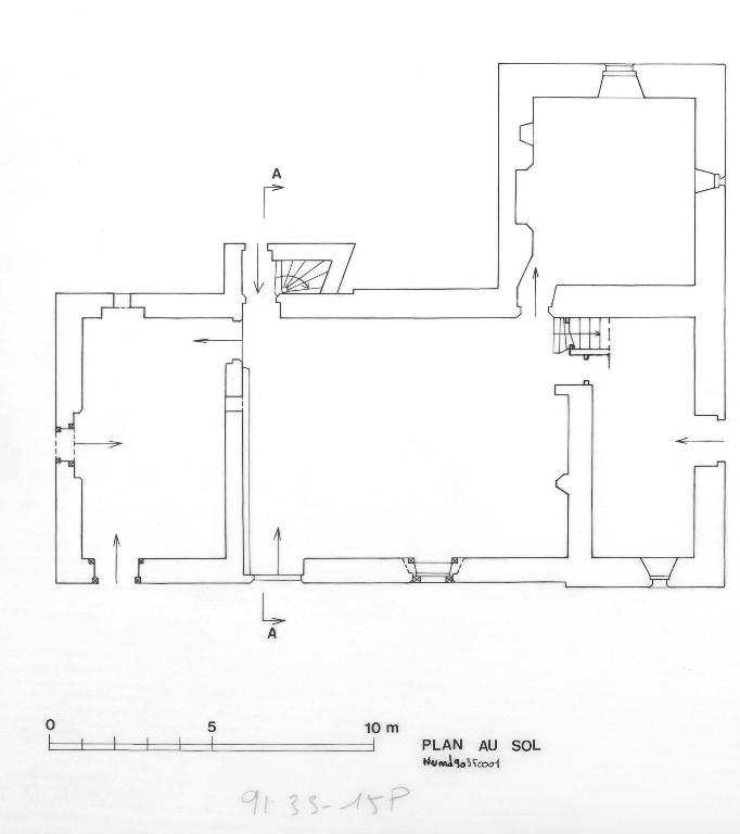
Le manoir du Boberil est un édifice majeur de la commune de L’Hermitage. Il s'inscrit dans un plan rectangulaire simple de 20,60 par 8,90m et est orienté au nord-ouest. Un réseau de douves polygonales ainsi qu’une petite levée de terre témoignent d’un ancien système défensif. Un colombier, à l’entrée du site symbolise le statut seigneurial du lieu. Construit en terre, il était surmonté d’un toit en ardoise, coiffé d’un petit lanterneau. Aujourd’hui disparu, il ne reste que le gros oeuvre du colombier. Une mare, se trouve également au nord-ouest de la parcelle. N’étant pas présente sur le cadastre Napoléonien, ce point d’eau est postérieur à 1829. Elle fait face à un grand chêne majestueux, indiquant l’entrée du manoir. Cette entrée était mise en scène par une grande avenue de deux kilomètres de long, reliant le bourg au manoir. Il fallait passer, depuis le bourg, par l’ancienne chapelle Saint-Marc, érigée en 1592 (aujourd’hui détruite), suivre le chemin de la chapelle en passant devant la ferme du manoir et ensuite emprunter la rabine menant au pied de l’entrée-porte. Au-delà des douves et du mur en terre, se trouve une cour empierrée où s’implante le manoir.

Celui-ci est en moellons de schiste et de poudingue maçonnés à la terre. La particularité de ce bâtiment réside dans l’utilisation de la terre pour certains murs porteurs, notamment l’actuel pignon est, reconstruit à la suite d’un incendie. Pour les modénatures et encadrements des baies, l’emploi du granite est systématique. Les principales ouvertures se situent sur la façade nord, donnant directement sur la cour du manoir. Une haute fenêtre dont l'ancienne croisée de pierre a été remplacée par un cadre de bois apporte la lumière nécessaire à l’intérieur de la salle. La porte principale est légèrement décalée à l’est. Elle est précédée par un châpitreau en bois. Dans ses versions primitives, l’intérieur suivait un plan ternaire. Au rez-de-chaussée, la salle basse, à l'origine directement sous charpente, occupe plus de la moitié de la surface au sol de l’ensemble (elle mesure 8m sur 10m). Cette pièce principale est encadrée à l’est par une cuisine et à l’ouest par un cellier. La cheminée se trouve actuellement sur le mur de refend à l’ouest. La présence d’un ancien chaînage dans le mur gouttereau sud indique qu’elle a été déplacée, au sûrement au 16e ou 17 siècle en même temps que le changement de fonction du manoir.

Deux escaliers, un à volée droite à l’ouest et le deuxième à vis dans une maçonnerie semi-hors-œuvre, donnent directement accès aux anciennes chambres. Avant que l'escalier n’existe, la porte de la chambre orientale s’ouvrait directement sur le vide de la salle. Il faut donc imaginer l’existence d’un escalier en bois montant le long du mur refend, un modèle restitué au manoir de la Grande Touche à Pacé.

Ces deux escaliers étaient indispensable dans une ancienne salle basse sous charpente. Étant toujours en chêne dans le bassin Rennais, ces charpentes se composent d’un entrait, assemblé avec un poinçon de fond. Ces deux éléments de charpente reçoivent la plupart du temps une finition de qualité (bagues et scoties moulurées sculptées dans la masse). Des pièces de bois cintrées (aisseliers et jambes de force) leur donne l'aspect épuré caractéristique des charpentes armoricaines. Le déplacement de la cheminée sur le refend pour permettre la mise en place d’un solivage se retrouve ainsi au manoir de la Grande Touche à Pacé, distant de quelques kilomètres du Boberil, mais aussi au manoir du Molant à Bréal-sous-Montfort.

  • Murs
    • schiste moellon
    • poudingue moellon
    • granite pierre de taille
    • bois pan de bois
    • terre
  • Toits
    ardoise
  • Étages
    1 étage carré
  • Couvertures
    • toit à longs pans
    • pignon couvert
  • Escaliers
    • escalier demi-hors-oeuvre : escalier en vis sans jour en maçonnerie
    • escalier dans-oeuvre : escalier droit
  • Typologies
    ferme de tête
  • État de conservation
    vestiges, mauvais état
  • Techniques
    • ferronnerie
    • maçonnerie
  • Précision représentations

    Ouverture à meneau trilobé. Ferronnerie protégeant les baies au Sud.

  • Statut de la propriété
    propriété privée
  • Intérêt de l'œuvre
    à signaler
  • Protections
    inscrit MH, 2018/05/03
  • Précisions sur la protection

    Par arrêté du 3 mai 2018, inscription au titre MH du manoir en totalité avec sa parcelle d'assiette, ses douves et son colombier (section AK, parcelles 55 et 56).

  • Référence MH

Documents d'archives

  • Notice archéologique et anecdotique pour servir à l'histoire de cette famille, tiré à 30 exemplaires

    Archives départementales d'Ille-et-Vilaine : 2J, 682/687.
  • Remarques historiques, 1910.

    Archives départementales d'Ille-et-Vilaine : 4J L’Hermitage, liasse 2
  • DRAC Bretagne, Etude préalable et instance de demande de classement du manoir du Boberil, ACMH Daniel Lefevre, 2015.

    Direction régionale des affaires culturelles de Bretagne - CID Documentation du Patrimoine

Bibliographie

  • Bardel, Philippe et Maillard, Jean-Luc, Architecture de terre en Ille-et-Vilaine, Rennes, éditions Apogée- Écomusée du Pays de Rennes, 2002

  • COLLECTIF. Le manoir en Bretagne : 1380-1600. Paris, Monum, Cahiers de l´Inventaire, Imprimerie nationale Editions, Inventaire général, 1993, 348 p.

Annexes

  • Enquête topographique rédigée en 1986 :
  • Armoiries
  • Diagnostic archéologique. Note intermédiaire
Date(s) d'enquête : 1986; Date(s) de rédaction : 1986, 2017