Vestiges romans dans le mur nord de la nef (?) . L'édifice a été en grande partie rebâti au 17e siècle : façade occidentale datée 1666, choeur, transept et sacristie construits en 1696. Percement d'une rose sur la façade occidentale en 1861. Réfection des fenêtres de la nef en 1861 et 1862.
Dossier d’œuvre architecture IA00007542
| Réalisé par
Barbedor Isabelle
;
Barbedor Isabelle
Cliquez pour effectuer une recherche sur cette personne.
- enquête thématique départementale, Inventaire des églises et chapelles d'Ille-et-Vilaine
Eglise paroissiale Saint-Donatien, Saint-Rogatien (Poligné)
Œuvre étudiée
Auteur
Dossier non géolocalisé
Localisation
-
Aire d'étude et canton
Ille-et-Vilaine - Bain-de-Bretagne
-
Commune
Poligné
-
Cadastre
1936
B
201
-
Dénominationséglise paroissiale
-
VocablesSaint-Donatien, Saint-Rogatien
-
Parties constituantes non étudiéescimetière
-
Période(s)
- Principale : 13e siècle , (incertitude)
- Principale : 2e moitié 17e siècle
- Principale : 3e quart 19e siècle
- Secondaire : 12e siècle , (incertitude)
-
Dates
- 1666, porte la date
- 1696, daté par source
- 1861, daté par source
- 1862, daté par source
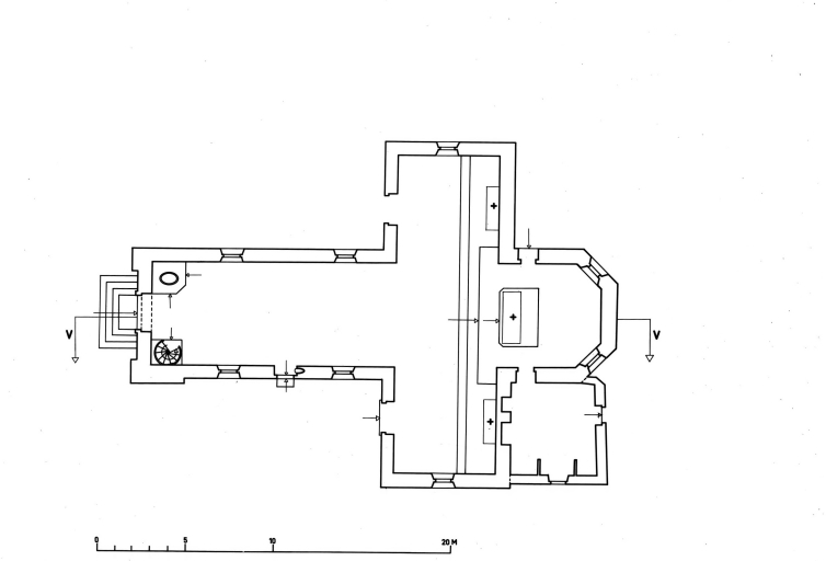
Plan en croix latine, lambris de couvrement, clocher en façade, chevet à pans coupés.
-
Murs
- grès
- schiste
- calcaire
- appareil mixte
- moellon sans chaîne en pierre de taille
-
Toitsardoise
-
Plansplan en croix latine
-
Étages1 vaisseau
-
Couvrements
- lambris de couvrement
-
Couvertures
- toit à longs pans
- flèche polygonale
- noue
- croupe
-
Typologiesclocher en façade ; chevet à pans coupés
-
Statut de la propriétépropriété publique
- (c) Inventaire général, ADAGP
- (c) Inventaire général, ADAGP
- (c) Inventaire général, ADAGP
- (c) Inventaire général, ADAGP
- (c) Inventaire général, ADAGP
- (c) Inventaire général, ADAGP
- (c) Inventaire général, ADAGP
- (c) Inventaire général, ADAGP
- (c) Inventaire général, ADAGP
- (c) Inventaire général, ADAGP
- (c) Inventaire général, ADAGP
- (c) Inventaire général, ADAGP
- (c) Inventaire général, ADAGP
- (c) Inventaire général, ADAGP
Date(s) d'enquête :
1977;
Date(s) de rédaction :
1994
Barbedor Isabelle
Barbedor Isabelle
Cliquez pour effectuer une recherche sur cette personne.
Articulation des dossiers
Photographe