• inventaire topographique, Fougères-Sud
  • enquête thématique départementale, Inventaire des églises et chapelles d'Ille-et-Vilaine
  • inventaire topographique, Fougères communauté
Église paroissiale Saint-Martin (Javené)
Œuvre étudiée

Dossier non géolocalisé

Localisation
  • Aire d'étude et canton Fougères sud - Fougères Sud
  • Commune Javené
  • Cadastre 1987 B 46
  • Dénominations
    église paroissiale
  • Vocables
    Saint-Martin
  • Parties constituantes non étudiées
    enclos, cimetière

Historique rédigé à partir des travaux de recherches menés par Marcel Hodebert

L'église paroissiale est mentionnée au 12e siècle, puis, reconstruite aux 15e et 16e siècles. De la seconde moitié du 15e siècle datent le volume de la nef et du chœur, une ancienne chapelle seigneuriale au nord, devenue sacristie, et deux chapelles accolées au nord, réunies au 16e siècle pour former un collatéral. A partir de 1520 (date portée sur sablière nord de la nef), les grandes arcades, la chapelle et le porche sud sont élevés. De 1544 à 1561, est édifié le clocher-porche de l'ouest. Au cours de cette campagne du 16e siècle, la plupart des baies de l'édifice sont reprises, à l'exception de la baie ouest du collatéral nord. Plusieurs inscriptions sur les sablières et les piles de la nef portent les dates 1520, 1539 et 1544 qui correspondent à cette campagne de travaux à l'initiative de plusieurs familles.

Les éléments intérieurs de l'édifice témoignent également de nombreuses campagnes de travaux. Ainsi, des fonts baptismaux du 15e siècle, composés de cuves doubles, sont surmontés d'un baldaquin de 1715. Au 16e siècle, des vitraux dont il reste d'importants fragments sont posés. La chaire semble dater du début du 18e siècle (recteur Pitteu, commanditaire de l'ancien presbytère en 1728). L'autel-retable du bras sud date du 17e siècle alors que le retable du maitre-autel, datant du 18e siècle, provient de la chapelle des Récollets de Fougères.

Au 18e siècle, l'arc diaphragme à l'entrée du chœur est reconstruit.

En 1861, le chœur, les stalles et les verrières sont réaménagés. Le pavage est achevé en 1866.

Au fil du temps, l'église a subi des dégradations et des transformations. Ainsi, vers 1700, la tour est foudroyée, la face sud en garde la trace.

A la fin du 18e siècle, le pignon entre le chœur et la nef est refait et on y pratique une grande arcade. En 1823, un mur de clôture est élevé autour du cimetière. Des réparations importantes ont lieu sur la tour en 1857, puis, en 1878, l'intérieur de l'édifice est restauré.

En 1937, un devis de réparation pour l'édifice s'élève à 44275, 49 francs. La tour est restaurée avant 1972.

  • Période(s)
    • Principale : 15e siècle
    • Principale : 16e siècle
    • Secondaire : 4e quart 18e siècle
    • Secondaire : 19e siècle
  • Dates
    • 1520, porte la date
    • 1539, porte la date
    • 1554, porte la date
    • 1559, porte la date
    • 1561, porte la date

L'édifice est élevé en moellon de grès, granite et schiste. La tour, les murs pignons sud de la chapelle sud et sud du porche sud, les chainages d'angles, les contreforts et les encadrements de baies sont réalisés en pierre de taille de granite. Les murs est et ouest de la chapelle sud et le mur est de la sacristie sont quant à eux élevés en appareil assisé de schiste granitisé. Le reste de l'édifice est réalisé en moellon de schiste et de grès.

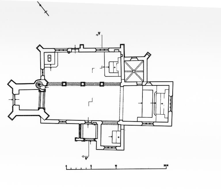
L'église est orienté (chœur à l'est) et possède un plan quadrangulaire. La nef et le collatéral nord sont séparés par quatre arcades en arc brisé. La nef et le chœur à chevet plat sont séparés par un arc diaphragme en plein cintre. La nef est séparée de la tour par une arcade en arc brisé.

La partie ouest de l'édifice est composée d'un clocher-porche. Un porche et une chapelle communiquant avec la nef par un arc brisé à deux rouleaux se trouvent au sud de l'édifice. La sacristie s'élève dans l'angle formé par le bas coté nord et le chœur, au nord-est.

La nef et le chœur sont couverts de lambris en berceau brisé. Le bas côté nord est couvert d'un lambris en berceau brisé perpendiculaire à celui de la nef.

Plusieurs inscriptions se trouvent encore à l'intérieur de l'édifice. La plus ancienne est celle de la sablière du côté nord de la nef : "En l'an Mil Cinq cc et vint / Phelippot le tort ceans homme (?) / Par Honor Go(uverne)E(u)R Et Sansui Luy / aussi Guill(aum)E Le Tort son Frere / Dieu les gart de mort amere." Il existe également des noms sans date sur le premier et troisième pilier : "G. POTIT ET JE(anne) BEARD SA FE(mme)." 3J De la rue Marie de la Tousche sa fe(mme) me fisdrent". Sur le second pilier : "1539 Maturi Dumeis". Sur une porte murée à l'angle sud Est du collatéral : 1544 : Mati. Sur une sablière : "G Tvolaye me fist faire 1544" et "NG Audiche charpatier".

A l'extérieur, le contrefort nord-ouest porte deux inscriptions : "CY DENYS" et "R: Thyolaye fraseliere".

La porte ouest est surmontée de l'inscription suivante : "INRI 1554 JE FVS Y POSEE" P Eudes M : MACON.

L'oculus ouest porte la date 1559, tandis que le linteau de la cheminée en haut de la tour, face nord, porte "I HAMON P(retre) 1561."

  • Murs
    • granite pierre de taille
    • grès moellon
    • schiste moellon
    • appareil mixte
    • pierre de taille
  • Toits
    ardoise
  • Plans
    plan allongé
  • Étages
    2 vaisseaux
  • Couvrements
    • lambris de couvrement
    • voûte d'ogives
  • Élévations extérieures
    élévation à travées
  • Couvertures
    • toit à longs pans
    • toit à l'impériale
    • noue
    • pignon découvert
  • Escaliers
    • escalier dans-oeuvre : escalier en vis sans jour
  • Typologies
    arc diaphragme ; clocher-porche ; porche latéral ; chevet plat
  • État de conservation
    restauré
  • Techniques
    • sculpture
    • vitrail
  • Représentations
    • armoiries
    • animal fantastique
  • Précision représentations

    Sujet : armoiries martelées non identifiées ; sujets : animaux fantastiques, engoulants, support : charpente et gargouilles.

  • Statut de la propriété
    propriété publique
  • Intérêt de l'œuvre
    à signaler

Bibliographie

  • BANEAT, Paul. Le département d'Ille-et-Vilaine, Histoire, Archéologie, Monuments. Rennes : J. Larcher, 1929.

    Région Bretagne (Service de l'Inventaire du patrimoine culturel)
  • Rennes : Fougeray, Paris : René Haton, 1884.

    Région Bretagne (Service de l'Inventaire du patrimoine culturel)
  • OGÉE, Jean-Baptiste. Dictionnaire historique et géographique de la province de Bretagne. Nlle éd. [1778-1780] rev. et augm. Rennes : Molliex, 1845.

  • Le patrimoine des communes d'Ille-et-Vilaine. Paris : Flohic éditions 2000, 2 tomes, (Le patrimoine des communes de France).

Périodiques

  • Bulletin et Mémoires du Club Javenéen d'Histoire Locale

Date(s) d'enquête : 1969; Date(s) de rédaction : 1979, 1994, 2014