• inventaire topographique, Fougères-Sud
  • inventaire topographique, Fougères communauté
Manoir, Launay Vendel (Dompierre-du-Chemin fusionnée en Luitré-Dompierre en 2019)
Œuvre étudiée

Dossier non géolocalisé

Localisation
  • Aire d'étude et canton Pays de Fougères - Fougères Sud
  • Commune Luitré-Dompierre
  • Lieu-dit Dompierre-du-Chemin, Launay Vendel
  • Cadastre 1936 B 815
  • Précisions commune fusionnée après inventaire Commune inventoriée sous le nom de Dompierre-du-Chemin
  • Dénominations
    manoir
  • Parties constituantes non étudiées
    édifice agricole

D'après Paul Banéat, la famille de Vendel y séjourne en 1513.

En 1654 l'état actuel paraît décrit dans un aveu. En 1805, le bâtiment existe tel quel, avec deux remises. L'étable à l'extrémité de la maison et la grange ne figurent pas sur le cadastre napoléonien.

Le manoir peut être médiéval par :

- le type de linteau sur corbelet (fenêtre de la façade antérieure),

- le revers de la fenêtre de l'étage, à coussiège,

- les cheminées affleurées dans des murs épais.

La partie étable avec porte en plein cintre et arc de décharge sur les claveaux est d'un type courant aux 17e et 18e siècles (coïncidence avec la description de 1654).

La remise semble dater du 18e siècle (toit à croupes) ; elle figure sur le cadastre de 1806. La grange est 19e siècle, bois de sciage, pièces moisées ; néanmoins la brique des ouvertures est cuite au feu de bois et le lien est au mortier.

Le manoir de Launay Vendel dépendait de la baronnie de Vitré et de la Châtellenie de de Châtillon. Vers la fin du 15e siècle, il appartient à Guyon de Vendel. Le logis est un bâtiment datant du 17e siècle qui a été remanié notamment au niveau des baies, et de l'escalier détruit. Les parties agricoles furent construites au 18e siècle et au 19e siècle.

  • Période(s)
    • Principale : 17e siècle
    • Principale : 18e siècle
    • Principale : 19e siècle

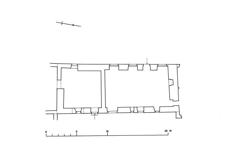
Le manoir de Launay Vendel est situé à environ 1km300 au sud-ouest du bourg et au sud de l'ancienne ligne de chemin de fer Vitré-Fougères, il est isolé. Transformé en ferme, les bâtiments sont implantés sur les côtés ouest et sud d'une cour ouverte.

Les murs sont élevés en petit appareil irrégulier de schiste, les encadrements des ouvertures sont en grand appareil de granite gris.

Le bâtiment aspecté à l'est, est de plan rectangulaire. Bâti sur un terre-plein en terre battue, le manoir n'a pas de cave, mais un rez-de-chaussée, un étage sous comble à deux versants avec des dépendances agricoles très importantes, le tout dominant la plaine. Un mur de refend au rez-de-chaussée et une cloison de bois à l'étage séparent le bâtiment en deux parties.

L'habitation se situe au nord et se compose d'une salle surmontée d'une chambre. L'étable et la grange sont au sud, sans différence de niveau entre les deux.

La façade antérieure orientée à l'est comporte deux niveaux d'ouvertures et le collage entre les deux parties du bâtiment est visible. La partie sud (étable-grange) est percée de deux portes superposées en plein cintre avec arc de décharge, elles sont chanfreinées. Il y a également deux fenêtres chanfreinées avec arc de décharge. La partie nord (habitation) est percée au deuxième niveau d'une fenêtre à linteau monolithe sur corbelets, les piédroits et le linteau sont moulurés en cavet. Les autres ouvertures sont transformées.

La façade postérieure ouest est percée d'ouvertures récentes, tandis que le mur pignon nord est à demi masqué par un bâtiment en appentis cependant au deuxième niveau on voit une porte obturée ; le mur pignon sud est mitoyen avec les dépendances.

Le comble est à deux versants, à coyaux, et couvert d'ardoise. Une souche de cheminée est située sur le pignon nord. La charpente est à fermes, arbalétriers, entrait, et faux-entrait lié au faîtage par poinçon. Le faîtage et le sous faîtage sont liés par des croix de saint André.

A l'intérieur, le plafond est à poutres et solives apparentes. Au rez-de-chaussée, une cheminée affleurée est située sur le mur nord. A l'étage, sur le mur nord également se trouve une cheminée affleurée, et une porte obturée. Le vantail de cette porte a un assemblage par clous de bois joints en doucine.

Sur le mur est, se trouve une fenêtre appareillée en granite, ébrasée, à coussièges. L'arrière a des voussure en segment et les sièges sont profilés en cavet.

  • Murs
    • granite
    • schiste
    • appareil mixte
  • Toits
    ardoise
  • Étages
    1 étage carré
  • Couvertures
    • toit à longs pans
    • pignon couvert
  • Statut de la propriété
    propriété privée
Date(s) d'enquête : 1979; Date(s) de rédaction : 1979, 2013