Dossier d’œuvre architecture IA00006476 | Réalisé par
  • inventaire topographique
Ferme, Luzunen Vihan (Plounévez-Lochrist)
Œuvre étudiée

Dossier non géolocalisé

Localisation
  • Aire d'étude et canton Plouescat - Plouescat
  • Commune Plounévez-Lochrist
  • Lieu-dit Luzunen Vihan
  • Cadastre 1983 D1 555, 557
  • Période(s)
    • Principale : 18e siècle
    • Principale : 19e siècle , (incertitude)

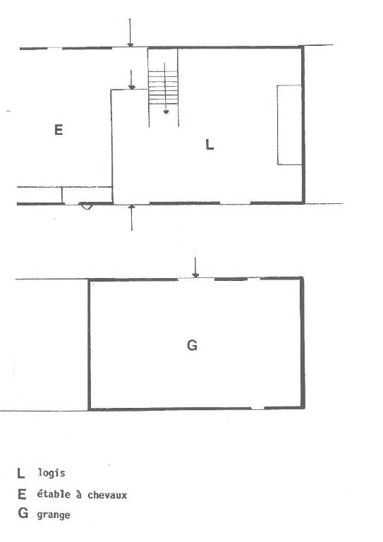
La ferme de Luzunen Vihan se compose de deux édifices :

Le premier bâtiment, le plus au nord, abritait le logis et l’étable à chevaux, séparés par une cloison de bois. La façade principale s’ouvre par une porte et une fenêtre chanfreinées. Sur la même façade, sous le jour de l’étable à chevaux, est encastrée une ancienne pierre triangulaire d’évier. Le sol du logis est en terre battue. On accède au grenier par un escalier droit en bois datant du 19e siècle. Le sol de l’étable à chevaux est pavé de même que l’accès à partir de la porte nord. Deux mangeoires anciennes sont encore en place.Ce bâtiment n’est plus utilisé.

Le second bâtiment, parallèle au premier, est construit en très grand appareil de granite et sert de grange. Il était aéré par deux jours, dont l’un, sur la façade sud, est aujourd’hui bouché.

(M. -D. Menant)

  • Murs
    • granite moellon
    • pierre de taille
  • Toits
    ardoise
  • Étages
    en rez-de-chaussée
  • Couvertures
    • toit à longs pans pignon couvert
  • Escaliers
    • escalier dans-oeuvre : escalier droit
  • Typologies
    logis à fonctions multiples juxtaposées
  • État de conservation
    mauvais état
  • Statut de la propriété
    propriété privée

Documents figurés

  • Plounévez-Lochrist. Cadastre napoléonien, section D1 de Kerguelen. Levée par M. Dyèvre, géomètre, 1837, échelle 1/2500 e.

    Archives départementales du Finistère : 3 P 207/9
Date(s) d'enquête : 1985; Date(s) de rédaction : 1986, 2015