Plouescat. Cadastre napoléonien, section B du Gorré. Levée par M. Grillot, géomètre, 1837, échelle 1/2500 e.
Dossier d’œuvre architecture IA00006430
| Réalisé par
Menant Marie-Dominique
(Contributeur)
Menant Marie-Dominique
Cliquez pour effectuer une recherche sur cette personne.
- inventaire topographique
Ferme, Prad Ar Goasvenn (Plouescat)
Œuvre étudiée
Auteur
Dossier non géolocalisé
Localisation
-
Aire d'étude et canton
Plouescat - Plouescat
-
Commune
Plouescat
-
Lieu-dit
Prad Ar Goasvenn
-
Cadastre
1984
AK
113
-
Dénominationsferme
-
Période(s)
- Principale : 1ère moitié 19e siècle
-
Murs
- granite
- moellon
-
Toitsroseau
-
Étagesen rez-de-chaussée
-
Couvertures
- toit à longs pans
- pignon découvert
-
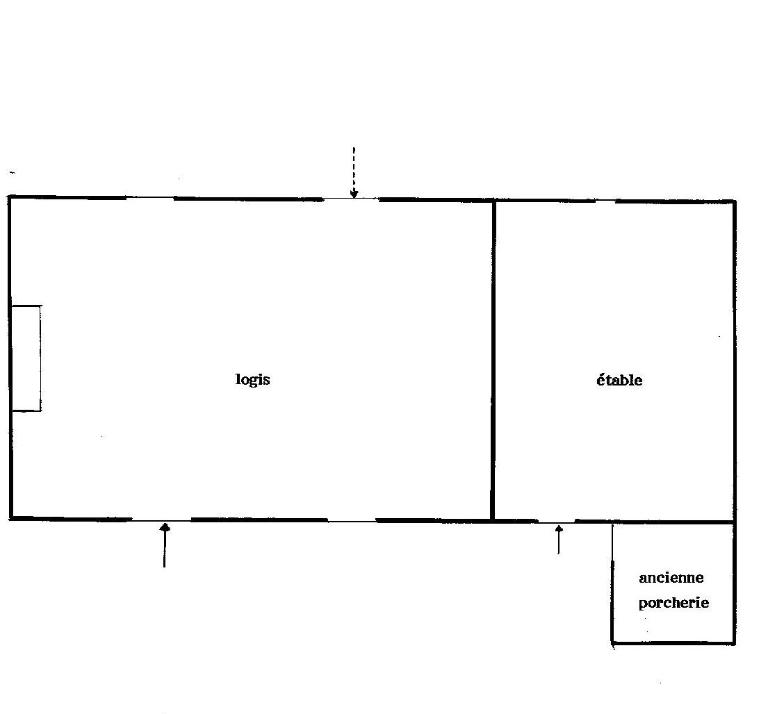
Typologieslogis à fonctions multiples juxtaposées
-
État de conservationmauvais état
-
Statut de la propriétépropriété privée
- (c) Conseil départemental du Finistère
- (c) Inventaire général
- (c) Région Bretagne
- (c) Inventaire général, ADAGP
- (c) Région Bretagne
- (c) Inventaire général, ADAGP
- (c) Région Bretagne
Documents figurés
-
Archives départementales du Finistère : 3 P 185/4
Date(s) d'enquête :
1985;
Date(s) de rédaction :
1986,
2015
Menant Marie-Dominique
Menant Marie-Dominique
Cliquez pour effectuer une recherche sur cette personne.
Dossiers de synthèse
Articulation des dossiers
Chercheur bénévole.