Dossier d’œuvre architecture IA00006418 | Réalisé par
  • inventaire topographique
Manoir, Poulvéas (Plouescat)
Œuvre étudiée

Dossier non géolocalisé

Localisation
  • Aire d'étude et canton Plouescat - Plouescat
  • Commune Plouescat
  • Lieu-dit Poulvéas
  • Cadastre 1984 AE 225
  • Dénominations
    manoir
  • Destinations
    ferme
  • Parties constituantes non étudiées
    étable à vaches

Manoir du début du 17e siècle ; transformé en ferme au 19e siècle : ajout d'une étable ; la partie occidentale du logis à subi des transformations au 20e siècle : remontage probable de la façade, ouverture de baies.

  • Période(s)
    • Principale : 1ère moitié 17e siècle
    • Principale : 19e siècle
    • Principale : 20e siècle
    • Secondaire : 20e siècle

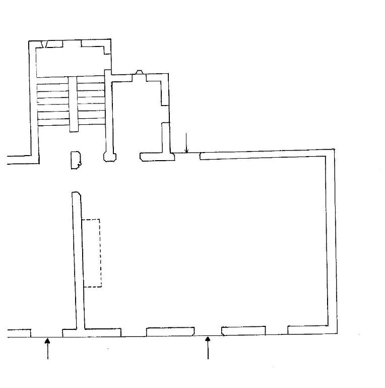
Le logis du manoir, orienté au sud, a adopté, à l’origine, un plan en T renversé, dont l’aile postérieure, hors œuvre, abrite un escalier à retours sans jour. L’autre partie du T était divisée en deux par un mur de refend et accueillait une salle et une cuisine.

Le logis a subi des modifications, surtout perceptibles dans son aile occidentale, mais qui n'ont pas affecté l'allure générale extérieure du bâtiment telle qu’on le voit sur le cadastre de 1837 : au 19e siècle, la pièce du rez-de-chaussée est transformée en partie agricole (grange ou étable) ; après 1974, le même espace redevient une pièce d'habitation telle que nous la voyons aujourd’hui.

On peut penser que c’était là la cuisine, puisqu’elle communique avec une petite pièce proche de l'escalier où subsiste encore une évacuation d'eau usée, une ancienne « souillarde », où l’on pouvait laver vaisselle et aliments. La grande cheminée a été supprimée.

À l’étage, dans l’angle nord-ouest, un second escalier, en vis, situé dans une tourelle en surplomb demi-hors œuvre, permet d’accéder à une chambre située au-dessus de l’escalier droit. Cette « pièce haute » est assez fréquente dans le haut Léon.

Quelques modifications ont eu lieu sur la façade nord : ouverture d’une fenêtre au premier étage au nord-ouest et d’une autre dans le pignon de la « pièce haute » ; le premier étage a été cloisonné. La charpente est récente.

On peut noter la construction soignée du bâtiment : il est réalisé en grand appareil de pierre de taille de granite, pour le mur de la façade principale et ceux des pignons ; les montants de portes intérieures sont moulurés.

(M. -D. Menant)

  • Murs
    • granite pierre de taille
    • moellon
  • Toits
    ardoise
  • Étages
    1 étage carré
  • Élévations extérieures
    élévation à travées
  • Couvertures
    • toit à longs pans pignon découvert
    • appentis
    • noue
  • Escaliers
    • escalier hors-oeuvre : escalier tournant à retours sans jour
    • escalier demi-hors-oeuvre : escalier en vis sans jour
  • Typologies
    tour d'escalier postérieure ; plan en T
  • Statut de la propriété
    propriété privée

Documents figurés

  • Plouescat. Cadastre napoléonien, section A2 de la Croix. Levée par M. Laplace, géomètre, 1837, échelle 1/2500 e.

    Archives départementales du Finistère : 3 P 185/3
Date(s) d'enquête : 1985; Date(s) de rédaction : 1986, 2015