Dossier d’œuvre architecture IA00006417 | Réalisé par
  • inventaire topographique
Manoir, Mesguen (Plouescat)
Œuvre étudiée

Dossier non géolocalisé

Localisation
  • Aire d'étude et canton Plouescat - Plouescat
  • Commune Plouescat
  • Lieu-dit Mesguen
  • Cadastre 1984 AT 266
  • Dénominations
    manoir
  • Destinations
    ferme
  • Parties constituantes non étudiées
    étable à chevaux, étable à vaches, puits, four à pain, écurie, cour, porcherie

Le premier manoir appartenait, au 15e siècle, à Jehan de Penfeuntenyo ; en 1567, à Hervé de Kersauzon ; en 1650 à François de Kersauzon.

Le manoir actuel fut construit au début du 17e siècle : une aile porte la date 1603 ; remaniements en façade sud de l'autre aile au 19e siècle ; pignon sud et une partie de la façade est remontés après 1922.

  • Période(s)
    • Principale : 1er quart 17e siècle
    • Principale : 19e siècle
  • Dates
    • 1603, porte la date, daté par travaux historiques

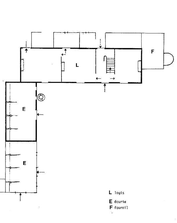
On accède au manoir par une entrée matérialisée par trois piliers en pierres de taille de granite qui encadrent un large passage et un passage piétonnier protégé par un échalier.

Le logis et les écuries sont disposés en équerre autour de la cour. Leurs murs, toujours autour de cette cour, sont constitués de pierres de taille de granite en grand appareil, pour le logis et la première écurie. Quant à la seconde écurie, au sud, des modifications dans la maçonnerie apparaissent, dues à la suppression d'un édifice en appentis encore présent en 1922 comme le montre le croquis d'H. Frotier de la Messelière. Le mur à pignon découvert faisant face au sud, lui aussi en pierres de taille, il a été remplacé par un simple mur de moellons.

Dans la première écurie, datée 1603, les mangeoires sont encore en place ; dans le comble, une pièce d'habitation à laquelle on avait accès par une porte donnant sur l’autre aile, était destinée au palefrenier.

(M. -D. Menant)

  • Murs
    • granite pierre de taille
    • grand appareil
    • moellon
  • Toits
    ardoise
  • Étages
    1 étage carré
  • Couvertures
    • toit à longs pans pignon découvert
  • Escaliers
    • escalier dans-oeuvre : escalier tournant à retours
  • Techniques
    • sculpture
  • Statut de la propriété
    propriété privée

Bibliographie

  • PÉRENNÈS, Henri. Plouescat. Notice sur la paroisse. 1941. Reprint : Le livre d'histoire-Lorisse éd., 2003.

    Région Bretagne (Service de l'Inventaire du patrimoine culturel)
    p. 23

Documents figurés

  • Plouescat. Cadastre napoléonien, section C2 de la Ville. Levée par M. Laplace, géomètre, 1837, échelle 1/2500 e.

    Archives départementales du Finistère : 3 P 185/6
  • FROTIER DE LA MESSELIÈRE, Henri. Mesguen en Plouescat, construit en 1603. Croquis du 5 août 1922. Saint-Brieuc, 1941.

Date(s) d'enquête : 1985; Date(s) de rédaction : 1986, 2015
Articulation des dossiers