Manoir portant les dates 1609 et 1663 et appartenant à la famille de Kersauzon ; transformations au 19e ou au 20e siècle dans la façade principale.
- inventaire topographique
Dossier non géolocalisé
-
Aire d'étude et canton
Plouescat - Plouescat
-
Commune
Plouescat
-
Lieu-dit
Keriaouen
-
Cadastre
1984
AH
7, 8
-
Dénominationsmanoir
-
Destinationsmaison
-
Parties constituantes non étudiéesétable à vaches, grange, cour, puits, étable à chevaux
-
Période(s)
- Principale : 1er quart 17e siècle , porte la date
- Principale : 3e quart 17e siècle , porte la date
- Principale : 19e siècle , (incertitude)
- Principale : 20e siècle , (incertitude)
-
Dates
- 1609, porte la date
- 1663, porte la date
-
Auteur(s)
- Personnalité :
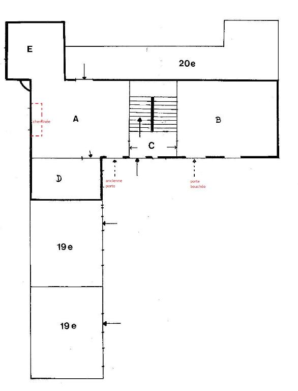
Le logis du manoir, orienté vers le sud-ouest, a adopté un plan L. La pièce de retour (D) a été refaite en 1950.
L’aile principale est divisée en deux salles (A) et (B), que sépare un escalier à retours sans jour. Cet escalier, constitué de grandes marches monolithes de granite, abrite sous ses deux premières volées une petite pièce accessible par la salle (B) et qui pouvait être un cellier ; présence d'une niche à lumière sur le premier palier.
La salle (B) n’a pas été vue. On accédait dans la salle A par une porte, située dans l’angle et qui a été transformée en fenêtre ; la cheminée qui était sur le mur ouest a été déplacée et remplacée par une large fenêtre.
Au premier étage, un passage en léger hors œuvre permet de passer de (A) en (E).
Les manques dans la corniche signalent la présence ancienne de trois lucarnes sur la façade ouest.
La charpente est ancienne sur le côté (B). Elle a été refaite au 19e siècle sur les parties occidentales. On accède au comble par un escalier en vis secondaire, partant du dernier palier de l'escalier principal.
(M. -D. Menant)
-
Murs
- granite pierre de taille
-
Toitsardoise
-
Étages1 étage carré, étage de comble
-
Élévations extérieuresélévation à travées
-
Couvertures
- toit à longs pans pignon découvert
- appentis
- noue
-
Escaliers
- escalier dans-oeuvre : escalier tournant à retours sans jour
-
Typologieskuz taol
-
Statut de la propriétépropriété privée
- (c) Conseil départemental du Finistère
- (c) Henri Frotier de la Messelière
- (c) Henri Frotier de la Messelière
- (c) Inventaire général
- (c) Région Bretagne
- (c) Inventaire général, ADAGP
- (c) Région Bretagne
- (c) Inventaire général, ADAGP
- (c) Région Bretagne
- (c) Inventaire général, ADAGP
- (c) Région Bretagne
- (c) Inventaire général, ADAGP
- (c) Région Bretagne
- (c) Inventaire général, ADAGP
- (c) Région Bretagne
- (c) Inventaire général, ADAGP
- (c) Région Bretagne
- (c) Inventaire général, ADAGP
- (c) Région Bretagne
- (c) Inventaire général, ADAGP
- (c) Région Bretagne
Bibliographie
-
Région Bretagne (Service de l'Inventaire du patrimoine culturel)
PÉRENNÈS, Henri. Plouescat. Notice sur la paroisse. 1941. Reprint : Le livre d'histoire-Lorisse éd., 2003.
p. 28-31
Documents figurés
-
Archives départementales du Finistère : 3 P 185/3
Plouescat. Cadastre napoléonien, section A2 de la Croix. Levée par M. Laplace, géomètre, 1837, échelle 1/2500 e.
-
FROTIER DE LA MESSELIÈRE, Henri. Keriaouen en Plouescat, construit en 1609. Croquis du 5 août 1922. Saint-Brieuc, 1941.
Famille de Kersauzon.