Dossier collectif IA00006382 | Réalisé par
  • inventaire topographique
Les maisons et les fermes du canton de Plouescat
  • Dénominations
    maison, ferme
  • Aires d'études
    Plouescat

OBSERVATIONS GÉNÉRALES

INTRODUCTION

Le territoire du canton de Plouescat est bordé au nord par la Manche sur laquelle s’ouvrent, d’ouest en est, les territoires de Tréflez, de Plounévez-Lochrist et de Plouescat. La côte, sableuse dans l’anse de Goulven puis rocheuse à l’ouest de Plouescat, n’a jamais permis la création d’un port de pêche ou de commerce.

Le relief est vallonné de longues collines orientées nord-sud, de faible hauteur, sur lesquelles l’habitat s’est implanté tout comme dans les petites vallées qu’elles déterminent. Pendant la première moitié du 19e siècle, un marais de 150 à 200 ha a été conquis sur la mer grâce à un système de digues et de canaux (voir Tréflez, Keremma).

La richesse économique du 19e siècle, source d’une grande campagne de construction, est également à l’origine de nombreuses modifications du patrimoine ancien, qui ont deux conséquences sur cette enquête :

  • aucune sélection n’a pu être faite sur le territoire de Plougar ;
  • pratiquement aucun édifice n’est homogène en milieu rural et l’on trouve :
    • logis ancien avec dépendances d’époques plus récentes
    • logis du 19e siècle utilisant des bâtiments plus anciens comme dépendances.

I - CARACTÈRES HISTORIQUES

Le corpus des maisons-fermes repérées se répartit de la façon suivante :

16e siècle

2

2, 2 %

17e siècle

14

15, 5 %

18e siècle

7

7, 5 %

1800 - 1850

18

20 %

1850 - 1900

31

34, 4 %

1900 - 1930

15

16, 6 %

Les édifices des 16e, 17e et 18e siècles ne représentent que 25,4% du corpus total ; encore ont-ils subi des transformations au 19e ou au 20e siècle, et quelques-uns sont en ruine (Tréflez, Kerveltoc).

54,4 % des maisons-fermes ont été construites durant le 19e siècle, dont 34,4 % pendant la seconde moitié. Cette vague de construction est confirmée par le nombre des chronogrammes puisque 73 % de c eux relevés apparaissent au 19e siècle ; en revanche, on était plus porté à dater pendant la première moitié du siècle puisque 50 % des chronogrammes concernent la période 1807-1848 (Plounévez-Lochrist, Frédé 1808, fig. 1). Au 20e siècle, les constructions retenues sont proches du tout début du siècle ; une seule maison est datée 1913, une autre 1930.

II - CARACTÈRES ARCHITECTURAUX

1 - Situation

31 % des fermes sont isolées, contre 60 % situées dans des écarts, ce qui reflète un habitat assez regroupé.

2 - Composition d’ensemble

Elle a été étudiée sur les 15 fermes sélectionnées sur le canton. Le logis et les dépendances agricoles s’ordonnent selon trois types principaux :

  • Type 1 : logis et dépendances groupés autour d’une cour ouverte : 6 cas, sur les 4 communes.

Ce sont des ensembles spontanés, très courants en Bretagne, où l’on a, au fil du temps, associé des dépendances agricoles à un logis.

  • Type 2 : logis et dépendances en alignement : 3 cas, sur Plouescat et Plounévez-Lochrist.

C’est le type, fréquemment rencontré en Bretagne, du logis prolongé à des pignons d’une étable ou d’une grange. Elles datent du 19e siècle (Plounévez-Lochrist, Palud Ker Emma, fig. 2).

  • Type 3 : logis et dépendances parallèles : 6 cas, sur Plouescat et Plounévez-Lochrist.

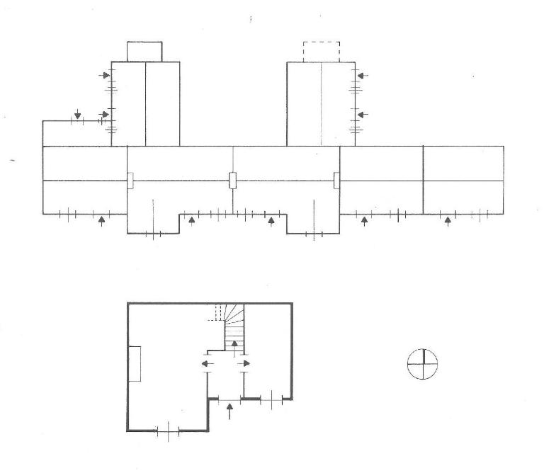
L’ensemble se compose de 2 corps de bâtiments : l’un abrite le logis, prolongé d’une grange et d’une étable ou d’une écurie ; l’autre abrite une étable ou une écurie, accompagnée parfois d’une porcherie (Plouescat, Cornamis, plan au sol, fig. 3). Le logis est généralement situé dans le corps de bâtiment le plus au sud et est orienté vers le sud. Les deux édifices sont reliés à une de leurs extrémités par un mur percé d’une porte cintrée qui donne sur le chemin d’accès à la ferme. Cornamis, à Plouescat, est l’exemple le plus représentatif de ce type (fig. 4). Il semble que cette disposition soit assez ancienne. À Poulhazec (Plouescat), les écuries sont datées de 1646 et le logis a été surhaussé en 1850. À Kergoal Bihan (Plouescat), le logis est daté de 1682 ; l’étable parallèle a disparu mais est encore visible sur le cadastre de 1837, de même qu’à Ker Scouarnec dont le logis remonte également au 17e siècle. C’est le type le plus caractéristique du canton, voire de la commune de Plouescat.

Répartition par type des fermes sélectionnées

TYPE 1

TYPE 2

TYPE 3

l' Arvor (Tréflez)

Palud Ker Emma (Plounévez-Lochrist)

Poulhazec (Plouescat)

Kerveltoc (Tréflez)

Kernic (Tréflez)

Kergoal Bihan (Plouescat)

Brénavalan (Plouescat)

Prad ar Goasvenn (Plouescat)

Cornamis (Plouescat)

Gorré Bloué Izella (Plouescat)

Ker Scouarnec (Plouescat)

le Fers Vras (Lanhouarneau)

Kerzéan (Plouescat)

Leuzeudeuzi (Plounévez-Lochrist)

Luzunen Vihan (Plounévez-Lochrist)

L’une des fermes repérées, Lanneunoc à Plounévez-Lochrist, construite vers 1880, présente une structure originale pour le canton. Il s’agit d’une composition symétrique avec logis double flanqué d’une grange au pignon et d’une étable surmontée d’un fenil sur la façade postérieure (fig. 5 & 6).

Les maisons urbaines sont construites en bordure de parcelle, près de la rue et comportent un jardin par derrière.

Annexes : 4 fours à pain et 20 puits (Lanhouarneau, ferme au bourg, fig. 7) dont 2 puits-guérite à Plougar, ont été repérés sur le canton.

3 - Matériaux

  • Gros œuvre

granite

pierre de taille

10

granite

moellon

64

granite + gneiss ou schiste

appareil mixte

15

enduit

13

82 % des maisons sont construites en granite, majoritairement utilisé sous forme de moellon (71 %). L’usage de la pierre de taille pour le gros œuvre est plus fréquent à Plouescat. La pierre de taille accompagne généralement le moellon dans l’encadrement des baies. Au Valy, à Tréflez, la façade du logis et des dépendances agricoles est en pierre de taille, comme c’est l’usage dans les fermes dites de Guébriant (fig. 8 & 9).

L’appareil mixte de granite et de gneiss ou de schiste est surtout utilisé à Plougar et à Tréflez ; c’est dans cette dernière commune que l’on trouve également le plus de façades enduites.

  • Toiture

L’ardoise est d’utilisation constante. Elle a probablement remplacé le chaume ou le roseau encore visible à Kerveltoc (Tréflez), Prad ar Goasvenn ou sur la grange de Cornamis (Plouescat). À Tréflez, le roseau est encore utilisé et renouvelé régulièrement sur les abris précaires servant à abriter les betteraves. À Plougar, c'est la paille qui sert à couvrir les mêmes hangars agricoles précaires, dont le toit repose à même le sol (Langeoger, fig. 10 & 11).·

  • Sol

On trouve encore des sols en terre battue, là où le logis est abandonné ou transformé en dépendance.

4 - Structure

  • Parti de plan

Les données sont ici incomplètes, tous les repérés n’ayant pas pu être visités.

On a adopté un plan rectangulaire simple en profondeur pour le logis des fermes. Très souvent l’espace intérieur n’y est pas divisé (Tréflez, l’Arvor, fig. 12 ; Plouescat, Cornamis ou Brénavalan). Au 19e siècle, il peut être divisé par des cloisons de bois (Plounévez-Lochrist, Leuzeudeuzi).

Dans les fermes les plus anciennes et les mieux soignées, ce sont des murs de refend qui constituent les divisions (Plouescat, Kergoal Bihan ou Kerscouarnec).

Les maisons sont toutes de plan rectangulaire double en profondeur (Tréflez, Toul Louarn, fig. 13). L’espace intérieur y est divisé en 4 ou 5 pièces par des murs de refend (Plouescat, maison rue du Général Leclerc, fig. 14).

21 édifices, du 19e siècle ou remaniés au 19e siècle, comportent une légère avancée, le kuz taol, perpendiculaire à la longueur de la maison sur la façade antérieure. Cet espace est destiné à abriter la table et les bancs dans la salle (Plounévez-Lochrist, Roc’h ar Groas, fig. 15). À l’étage, il peut être abrité par la pente du toit principal (Plounévez-Lochrist, Kermingam, fig. 16) ou comporter un pignon (Plounévez-Lochrist, Lannener, fig. 17).

  • Parti de coupe

Les édifices repérés se répartissent ainsi :

penty

1

en rez-de-chaussée

8

comble à surcroît

13

1 étage

59

1 étage + 1 étage de comble

8

2 étages + 1 étage de comble

1

Les maisons et les fermes qui comportent un étage carré représentent 74 % du corpus, soit 67 édifices ; 8 d’entre elles comportent également un étage de comble : ce sont toutes des maisons (Plouescat, 12 rue de Saint-Pol, fig. 18 & 19). La maison située place de Gaulle à Plouescat comprend 2 étages et un étage de comble.

Le reste du corpus se compose de fermes en rez-de-chaussée (8,8 %) ou avec un étage à surcroît (14, 4 %) (Plounévez-Lochrist, Brétouaré, fig. 20). Un seul penty, Keruzoc à Plounévez-Lochrist (fig. 21), avait été repéré lors de l’enquête bénévole de 1972, mais il a été trop transformé depuis pour être sélectionné. Le penty - tête de la maison, en breton – constitue la forme minimum d’habitation puisqu’il ne comprend qu’une seule pièce en rez-de-chaussée et n’est associé à aucune dépendance agricole.

5 - Élévation

  • Composition

aucune travée

25

2 travées

16

3 travées

40

4 travées

3

5 travées

3

+ de 5 travées

1

44 % des édifices comportent 3 travées en élévation. Ils datent généralement de la seconde moitié du 19e siècle et du début eu 20e. Un nombre important de travée correspond généralement aux maisons urbaines.

6 - Couverture

  • Forme des toits

Tous les édifices sont couverts de toits à longs pans. Seuls à Plounévez-Lochrist, Traonjulien (avant-corps d’entrée) et à Plouescat, maison de la place de Gaulle (pavillons du jardin) ont un toit en pavillon. Environ la moitié des pignons sont couverts.

  • Accessoires

Les souches de cheminée n’offrent pas d'intérêt quant à leur décor. On peut cependant noter qu’il existe très souvent une fausse souche destinée à améliorer l’équilibre visuel.

Un seul épi de faîtage est conservé sur la grange de Kergoal Bihan à Plouescat ; il est en granite à décor cordé à la base (fig. 22).

7 - Distribution intérieure

Là encore, l’information est partielle suivant la visite des édifices.

  • Répartition des fonctions dans les fermes
    • Logis seul sur un seul niveau ; peu d’exemples : Keruzoc à Plounévez-Lochrist, Kerveltoc à Tréflez
    • Logis sur plusieurs niveaux : Leuzeudeuzi à Plounévez-Lochrist, l’Arvor à Tréflez
    • Logis à fonctions multiples : on trouve comme partout ailleurs des logis à fonctions multiples juxtaposées ou superposées ; à Plounévez-Lochrist 2 exemples sont plus originaux :
      • Kerjean Vihan an Arvor présente la particularité d’abriter sous le même toit de chaume le logis et l’étable à chevaux, sans que les espaces soient séparés par une cloison ; un mur de refend est amorcé de chaque côté (environ 1 m) ; une armoire le prolonge. L'édifice est trop dégradé pour être sélectionné.
      • À Luzunen Vihan, le parti est plus élaboré : une cloison de bois séparait hommes et chevaux.

  • Communication

Dans les fermes, chaque pièce ouvre sur l’extérieur et tous les espaces communiquent entre eux, qu’ils aient une fonction de logement, de grange ou d’étable.

Les escaliers sont droits, en bois et dans œuvre, sauf à Kerzéan (Plouescat), où l’escalier en vis est abrité dans une tourelle (fig. 23).

Dans les maisons de Plouescat, mise à part Kernéac’h dont l’escalier reproduit celui des fermes, un couloir central mène à un escalier tournant à retour sans jour, dans œuvre. La maison de la place de Gaulle, elle, reprend une des caractéristiques des manoirs du canton : l’escalier tournant à retour sans jour est situé ans une aile perpendiculaire au milieu de la façade postérieure.

8 - Aménagements intérieurs

Les éléments de confort sont très inégalement répartis dans les différentes fermes. On a trouvé 3 armoires murales avec pierre d’évier (Kerveltoc, Kerscouarnec ; Brénavalan avec saloir incorporé) et 4 saloirs indépendants, incorporés dans un mur de façade (Gorre Bloue Izella, Kergoal Bihan, Cornamis) ou dans le mur séparant les deux pièces du logis (Kerscouarnec).

À Kerscouarnec encore, on trouve, au premier étage, des fenêtres à coussiège.

L’aménagement des maisons est plus difficile à apprécier à cause des modernisations apportées.

Traonjulien et la maison de la rue du Général Leclerc semblent les moins transformées. Elles ont conservé leurs lambris et leurs cheminées ainsi que des placards muraux.

  • Période(s)
    • Principale : 17e siècle
    • Principale : 18e siècle
    • Principale : 19e siècle
    • Principale : 20e siècle
  • Toits
    ardoise, chaume
  • Murs
    • granite moellon
    • gneiss moellon
    • schiste moellon
    • granite pierre de taille enduit
    • granite grand appareil
    • moellon sans chaîne en pierre de taille
    • appareil mixte
  • Décompte des œuvres
    • bâti INSEE 3 926
    • repérés 90
    • étudiés 20
Date(s) d'enquête : 1985; Date(s) de rédaction : 1986